Prodej rodinného domu 3+kk s garáží, dílnou a pozemkem 1345 m2, Vrbová Lhota
Prodej rodinného domu 3+kk s velkorysou zahradou, garáží, dílnou a velkým potenciálem pro další rozšíření v malebné obci Vrbová Lhota v okrese Nymburk. Podlahová plocha domu činí 113 m2, pozemek o výměře 1345 m2.
Vrbová Lhota je obec nedaleko Poděbrad s veškerou občanskou vybaveností v blízkosti. Velkou výhodou je skvělá dostupnost po dálnici D11 – z Prahy jste tu do 30 minut. Pokud hledáte dům v klidném prostředí a zároveň s rychlým spojením do města, tato nabídka je pro vás ideální.
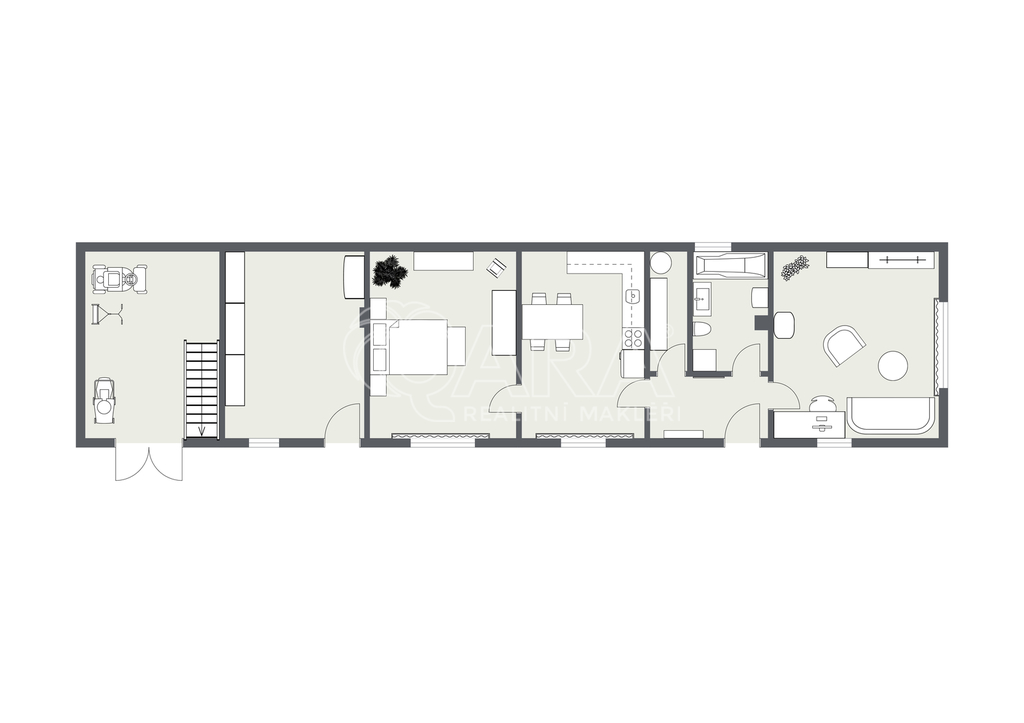
Dispozice - dům má dvě podlaží
V přízemí se nachází obytná část - obývací pokoj se severovýchodní orientací, s kamny a výhledem do zeleně, prostorná kuchyň, ložnice, komora/technická místnost, koupelna s vanou a toaletou a vstupní chodba. V přízemí je dále technická místnost s kotlem, která je přístupná samostatným vchodem ze zahrady. Na tomto podlaží se nachází také dřevník, který je přístavbou domu.
V patře je velkorysá půda nabízející skrytý potenciál pro rozšíření domu o další 2-3 místnosti.
Doplňkové stavby
K dispozici je samostatná garáž s vjezdem z ulice a s průchodem do zahrady. V garáži je v podlaze montážní jáma, což ocení domácí kutilové. Ke garáži náleží dílna také se vstupem ze zahrady.
Na zahradě je dvoupodlažní hospodářská budova, ve které se nachází sklep, chlév, kurník a úložné prostory.
Zahrada a zázemí
Zahrada je rozdělená do dvou částí. Přední část u domu je osázena okrasnými rostlinami, slouží zejména pro relax a potěchu oka. V této části zahrady se nachází garáž, hospodářská budova a studna. Druhá část zahrady nabízí dostatek prostoru pro zahradničení i volnočasové aktivity, zákoutí s posezením a několik vzrostlých stromů.
Technické řešení
Dům je vytápěný elektrokotlem, v obývacím pokoji jsou kamna na dřevo (typu Petry) a v ložnici je příprava na krbová kamna. Ohřev vody je zajištěn bojlerem. Zdroj vody je z vlastní studny, která je na pozemku. Hloubka study cca 6 m. Na pozemek je nově přivedena také přípojka k vodovodnímu řadu. Dům je napojený na kanalizaci.
V posledních letech dům prošel rekonstrukcí – nová střecha, nová elektroinstalace a elektrokotel. Výměna oken a dveří, plovoucí podlahy, proběhla také rekonstrukce koupelny.
Lokalita:
Vrbová Lhota je klidná obec se skvělým napojením na dálnici D11 v blízkosti města Poděbrady či Nymburk, kde je veškerá občanská vybavenost. Ve Vrbové Lhotě je autobus, který vás za pár minut dopraví právě do Poděbrad nebo do sousední obce Pečky, kde je retail park se supermarketem a dalšími obchody. Okolí je zároveň ideální pro procházky a odpočinek v přírodě – Naučná stezka Pňovský luh, Poděbradské jezero, Hradiště Libice na Cidlinou.
V tomto článku shrneme nejdůležitější věci, které byste si měli promyslet, pokud se chystáte prodat svou nemovitost a chcete, abyste s kupujícím nemusel následně řešit vzniklé problémy.
Jako prodávající nesete rizika spojená nejen se samotným obchodem, ale i se stavem nemovitosti v době prodeje a pro minimalizaci rizik, je dobré se zamyslet nad uvedenými oblastmi.
Realitní makléř má své nezastupitelné místo v realitním obchodu. Realitním makléřem nemyslím nevzdělané jelito, které absolvovalo dvoudenní školení a ví, jak se nahraje inzerát na inzertní portál.
Realitním makléřem, který se Vám skutečně vyplatí, je zkušený profesionál, který je schopen Vám dobře poradit jak prodat za co nejvíc a s nejmenším rizikem a hlavně je Vás schopen obratně provést celým realitním obchodem.
Uživatel serveru RealityMIX.iprima.cz (dále jen „Server“) dostupného na internetové adrese (URL) https://realitymix.iprima.cz, který provozuje společnost DALTEN media s.r.o., se sídlem Na Harfě 916/9a, Praha 9, 190 00, IČO: 271 35 306 (dále jen „Správce“) jako provozovateli tohoto Serveru uděluje svůj výslovný souhlas v souladu s ustanovením § 5 zákona č. 101/2000 Sb. O ochraně osobních údajů a o změně některých zákonů, v platném znění (dále jen „zákon o ochraně osobních údajů“), se zpracováním uživatelem poskytnutých osobních údajů a dalších dat.
Uživatel poskytuje Správci osobní údaje v rozsahu: jméno, příjmení, e-mailová adresa, telefonický kontakt a další data, a to z důvodu projeveného zájmu o nemovitost, kde prostřednictvím služby Serveru Správce osloví Uživatel inzerenta uvedeného v detailu
nemovitosti - QARA s.r.o. (IČ 01740113) se zájmem o jeho služby. Tato společnost je součástí seskupení/sítě/franšízového modelu realitních kanceláří, jejich seznam můžete zobrazit kliknutím na tento odkaz.
QARA s.r.o. Ostrava (IČ 01740113) , QARA s.r.o. Brno (IČ 01740113) , QARA s.r.o. (IČ 01740113)
Uživatel tyto osobní údaje poskytuje dobrovolně a bere na vědomí, že součástí služeb Správce, které Správce Uživateli poskytuje, je vyhledání všech Uživateli vyhovujících (dle parametrů - cena, typ nemovitosti, lokalita atd.) nemovitostí. Správce za tímto účelem provozuje aplikace Hlídací pes a newsletter. Tyto služby je možné z každého zaslaného emailu odhlásit. Souhlas se zpracováním osobních údajů Uživatel poskytuje Správci na dobu neurčitou s tím, že svůj udělený souhlas může Uživatel kdykoliv na drese správce info@realitymix.cz odvolat. Správce garantuje Uživateli i další práva uvedené v ustanovení §11 a §21 zákoba č. 101/200 Sb. Ve znění pozdějších předpisů.
Více informací o zpracování údajů získáte zde (realitymix.cz/zasady-ochrany-osobnich-udaju)