Vícegenerační dům + wellness + dílna - Horní Počaply, 705 m2
Vícegenerační rodinný dům s wellness, zahradou a podnikatelským potenciálem - 705 m2 užitné plochy
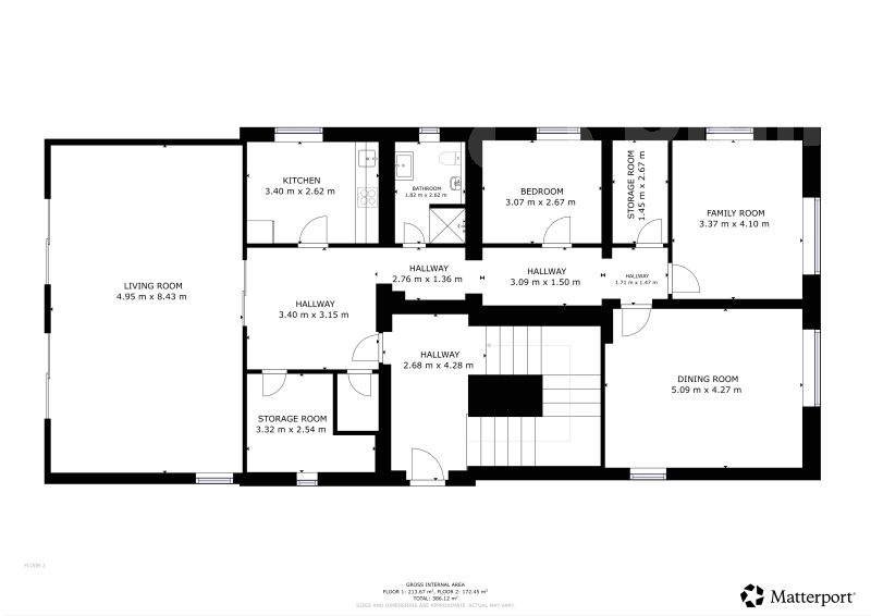
Hledáte místo, kde může pohodlně žít celá rodina - a přitom si každý zachová své soukromí? Tento vícegenerační rodinný dům o užitné ploše 327 m2 nabízí tři samostatné bytové jednotky, přičemž ve druhém podlaží je prostor pro vybudování čtvrté. Ideální řešení pro vícečlennou rodinu, kombinaci bydlení a podnikání, nebo jako investiční příležitost.
Dům prošel kompletní a nákladnou rekonstrukcí - stačí se nastěhovat a začít si užívat pohodlí, které nabízí. Každá jednotka v přízemí má svou vlastní zimní zahradu, ideální pro ranní kávu, čtení nebo klidné večery s výhledem do zeleně. Komfort bydlení zajišťuje podlahové vytápění, které oceníte zejména v chladnějších měsících.
Na udržované zahradě o rozloze 1 436 m2, najdete klidné zákoutí s jezírkem i bazén pro letní osvěžení. Prostor je jako stvořený pro rodinné oslavy, relaxaci nebo dětské hry.
Součástí prodeje je i druhá budova o užitné ploše 378 m2, která posouvá možnosti tohoto místa ještě dál:
Wellness zóna s finskou saunou, vířivkou a místností, která v současné době slouží jako masážní salon. Možnost využít i jako kosmetický nebo kadeřnický salon.
Samostatná bytová jednotka pro hosty, pronájem nebo personál
Prostorná garáž, kterou lze přestavět na dílnu - ideální pro truhlárnu, servis, kovovýrobu nebo jinou menší výrobu.
Solární panely pro energetickou efektivitu a úsporu nákladů.
Další bonus: jen pár kroků od domu se nachází vlaková zastávka, odkud se pohodlně dostanete za hodinu na Masarykovo nádraží v Praze. Ideální pro každodenní dojíždění nebo víkendové výlety.
Shrnutí výhod:
3 bytové jednotky s možností předělání na čtyři bytové jednotky v hlavní budově
Wellness, masáže a další zázemí v druhé budově
Podlahové vytápění, zimní zahrady, solární panely
Celková užitná plocha obou budov: 705 m2
Zahrada s jezírkem a bazénem - 1 436 m2
Skvělý potenciál pro bydlení, podnikání i investici
Výborná dopravní dostupnost do Prahy
Tento komplex není jen nemovitost - je to prostor pro život, práci i relaxaci. Místo, kde může růst několik generací, kde se tvoří vzpomínky a kde každý najde svůj kout. Přijďte se přesvědčit, že právě tady může začít vaše nová životní etapa.
Cena:
21 000 000 Kč
Poznámka:
cena včetně služeb a provize RK
Datum k nastěhování:
30.10.2025
Číslo zakázky:
REALITYMIX-231679
Podrobné informace
Poloha objektu:samostatný
Druh objektu:cihlová
Stav objektu:velmi dobrý
Počet podlaží objektu:2
Typ domu:patrový
Zastavěná plocha:961 m²
Plocha parcely:1436 m²
Zahrada:1436 m²
Dílna:241 m²
Užitná plocha:655 m²
Sklep:40 m²
Balkon:7 m²
Umístění objektu:klidná část obce
Doprava:vlak, silnice, autobus
Komunikace:asfaltová
Elektřina:Elektro - 230 V, Elektro - 380 V
Voda:Zdroj pro celý objekt, Voda - dálkový vodovod, Voda - rozvod studené a teplé vody
Telekomunikace:Internet
Topení:Ústřední - dálkové
Odpad:Kanalizace
Ostatní rozvody:Kabelová televize, Ostatní rozvody
V tomto článku shrneme nejdůležitější věci, které byste si měli promyslet, pokud se chystáte prodat svou nemovitost a chcete, abyste s kupujícím nemusel následně řešit vzniklé problémy.
Jako prodávající nesete rizika spojená nejen se samotným obchodem, ale i se stavem nemovitosti v době prodeje a pro minimalizaci rizik, je dobré se zamyslet nad uvedenými oblastmi.
Realitní makléř má své nezastupitelné místo v realitním obchodu. Realitním makléřem nemyslím nevzdělané jelito, které absolvovalo dvoudenní školení a ví, jak se nahraje inzerát na inzertní portál.
Realitním makléřem, který se Vám skutečně vyplatí, je zkušený profesionál, který je schopen Vám dobře poradit jak prodat za co nejvíc a s nejmenším rizikem a hlavně je Vás schopen obratně provést celým realitním obchodem.
Uživatel serveru RealityMIX.iprima.cz (dále jen „Server“) dostupného na internetové adrese (URL) https://realitymix.iprima.cz, který provozuje společnost DALTEN media s.r.o., se sídlem Na Harfě 916/9a, Praha 9, 190 00, IČO: 271 35 306 (dále jen „Správce“) jako provozovateli tohoto Serveru uděluje svůj výslovný souhlas v souladu s ustanovením § 5 zákona č. 101/2000 Sb. O ochraně osobních údajů a o změně některých zákonů, v platném znění (dále jen „zákon o ochraně osobních údajů“), se zpracováním uživatelem poskytnutých osobních údajů a dalších dat.
Uživatel poskytuje Správci osobní údaje v rozsahu: jméno, příjmení, e-mailová adresa, telefonický kontakt a další data, a to z důvodu projeveného zájmu o nemovitost, kde prostřednictvím služby Serveru Správce osloví Uživatel inzerenta uvedeného v detailu
nemovitosti - Bidli reality, a.s. (IČ 06790763) se zájmem o jeho služby. Tato společnost je součástí seskupení/sítě/franšízového modelu realitních kanceláří, jejich seznam můžete zobrazit kliknutím na tento odkaz.
Hypocentrum modré pyramidy - Praha (IČ ) , Hypocentrum modré pyramidy - Brno (IČ ) , Hypocentrum Modré pyramidy - Hradec Králové (IČ ) , Hypocentrum Modré pyramidy - České Budějovice (IČ ) , Hypocentrum Modré pyramidy - Pardubice (IČ ) , Hypocentrum Modré pyramidy - Plzeň (IČ ) , Hypocentrum Modré pyramidy - Ústí nad Labem (IČ ) , Hypocentrum Modré pyramidy - Ostrava (IČ ) , Hypocentrum Modré pyramidy - Olomouc (IČ ) , Bidli reality, a.s. (IČ 06790763)
Uživatel tyto osobní údaje poskytuje dobrovolně a bere na vědomí, že součástí služeb Správce, které Správce Uživateli poskytuje, je vyhledání všech Uživateli vyhovujících (dle parametrů - cena, typ nemovitosti, lokalita atd.) nemovitostí. Správce za tímto účelem provozuje aplikace Hlídací pes a newsletter. Tyto služby je možné z každého zaslaného emailu odhlásit. Souhlas se zpracováním osobních údajů Uživatel poskytuje Správci na dobu neurčitou s tím, že svůj udělený souhlas může Uživatel kdykoliv na drese správce info@realitymix.cz odvolat. Správce garantuje Uživateli i další práva uvedené v ustanovení §11 a §21 zákoba č. 101/200 Sb. Ve znění pozdějších předpisů.
Více informací o zpracování údajů získáte zde (realitymix.cz/zasady-ochrany-osobnich-udaju)