Vyhledávání nemovitostí v kategorii Kutná Hora. Vyberte si z naší nabídky nemovitostí, případně si upravte filtr vyhledávání.
Bojovníků za svobodu, Čáslav-Nové Město, Kutná Hora
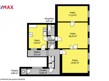
Pražská, Čáslav-Nové Město, Kutná Hora
Pražská, Čáslav-Nové Město, Kutná Hora
Pražská, Čáslav-Nové Město, Kutná Hora
Pražská, Čáslav-Nové Město, Kutná Hora
Malešov, Kutná Hora
Vlašimská, Zruč nad Sázavou, Kutná Hora
Zehuby, Kutná Hora
Ing. Petr Jůza
Kontaktovat makléře© 1999—2026 DALTEN media s.r.o
Provozovatelem serveru RealityMIX.iprima.cz je DALTEN media s.r.o., se sídlem Na Harfě 916/9a, Vysočany, 190 00 Praha 9, IČ: 27135306, zapsaná v obchodním rejstříku vedeném Městským soudem v Praze, oddíl C, vložka 98915.