V exkluzivním zastoupení nabízíme k prodeji prostorný rodinný dům v obci Suchdol u Kutné Hory, situovaný v klidné části obce s příjemnou venkovskou atmosférou a zároveň velmi dobrou dostupností do Kutná Hora, Kolína i Prahy.
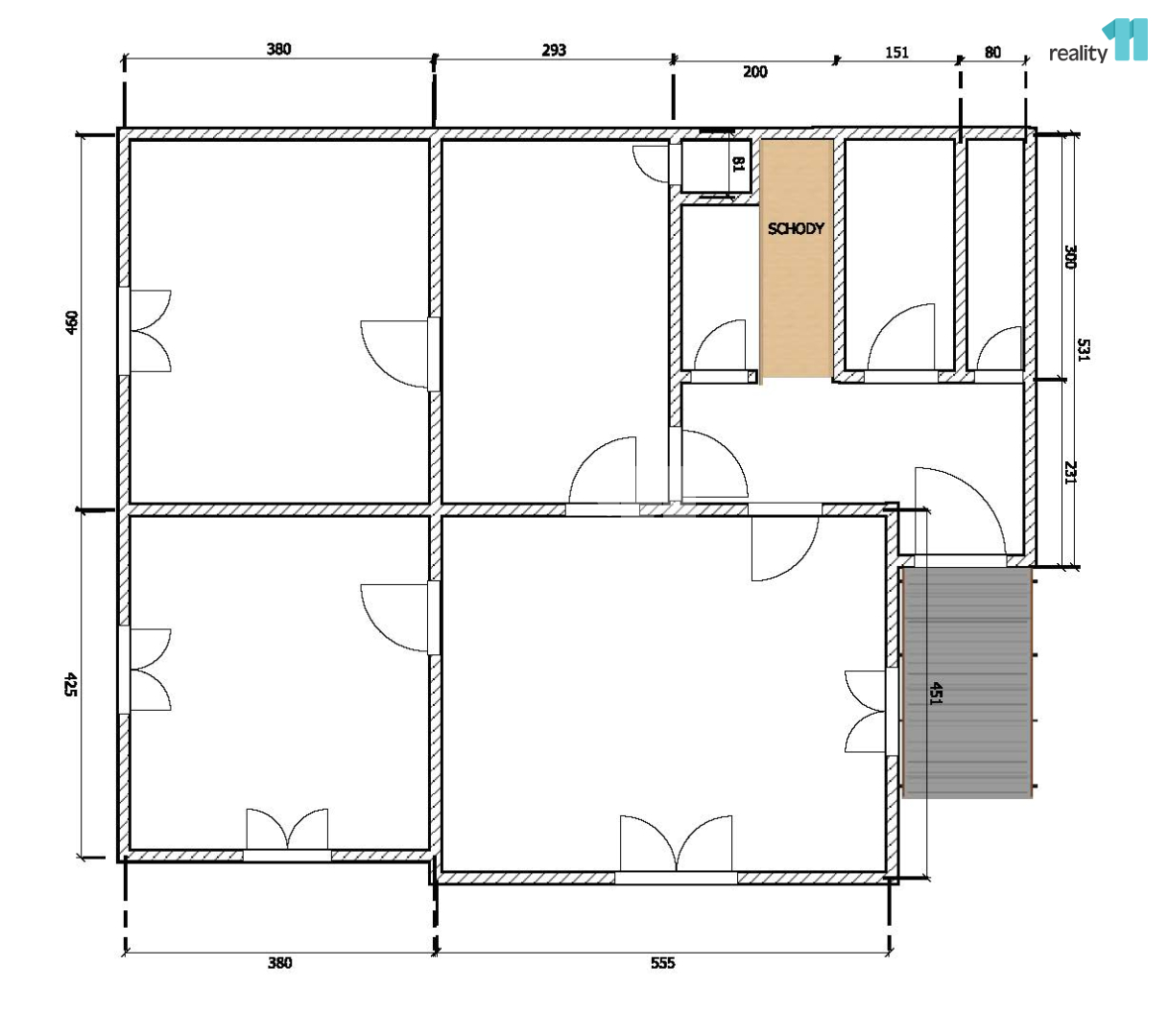
Nemovitost je dispozičně řešena jako dvě bytové jednotky, což nabízí široké možnosti využití – od komfortního vícegeneračního bydlení až po kombinaci vlastního užívání a pronájmu.
Velkou výhodou domu je možnost vybudování samostatného vstupu do horního patra. Díky tomu lze nemovitost plně rozdělit na dvě nezávislé bytové jednotky, což zvyšuje její užitnou i investiční hodnotu.
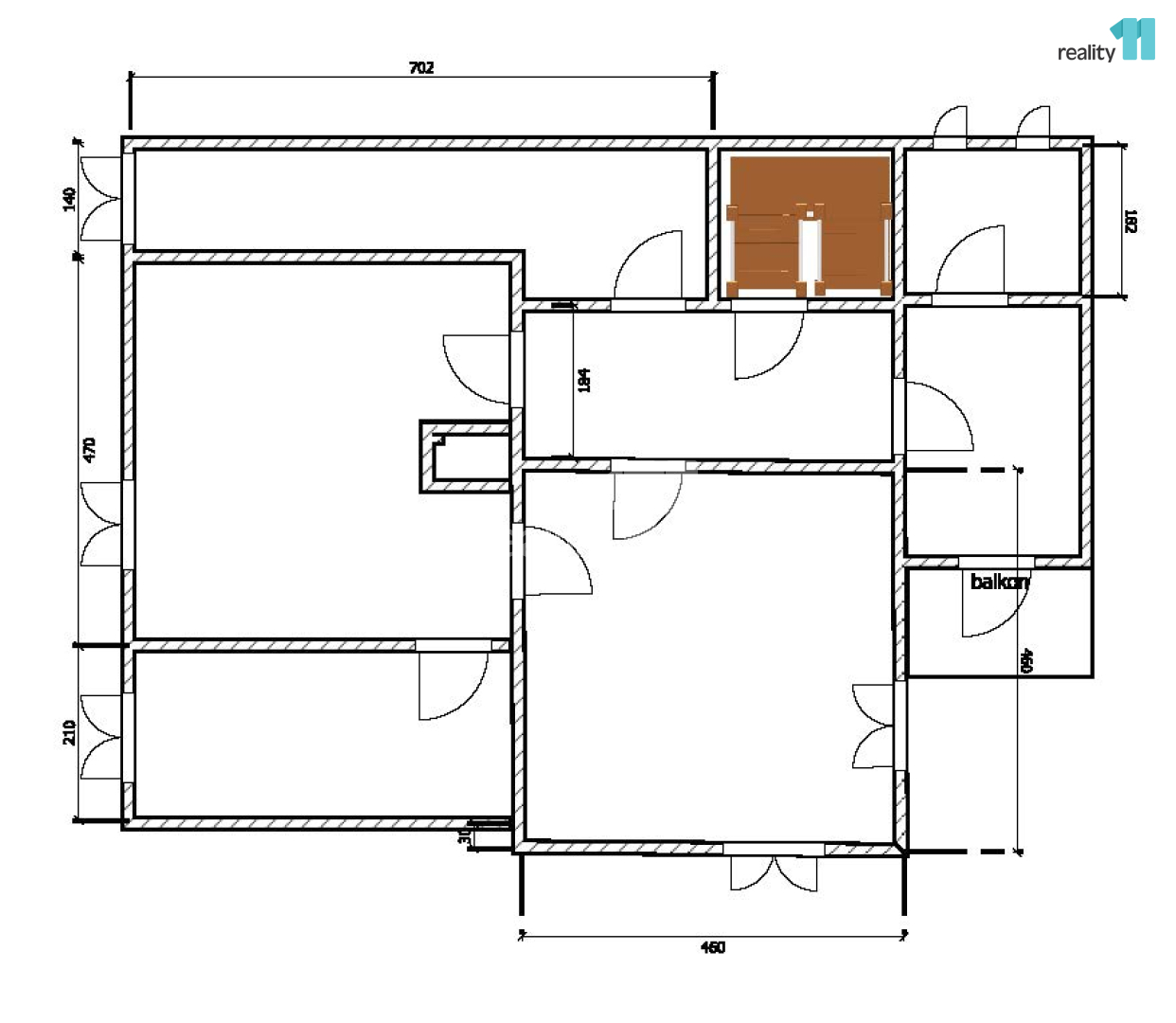
Horní bytová jednotka o výměře 85 m² prošla v roce 2011 kompletní rekonstrukcí, včetně rozvodů vody a elektřiny. Interiér působí nadčasově a velmi příjemně, přičemž byt je připraven k okamžitému nastěhování bez nutnosti dalších investic.
Spodní podlaží o podlahové ploše 93 m² je v původním stavu a představuje ideální příležitost pro rekonstrukci dle vlastních představ. Budoucí majitel zde může vytvořit bydlení přesně podle svých požadavků a vkusu.
K domu náleží prostorný sklep s garáží o ploše 93 m², který poskytuje dostatek úložného prostoru i zázemí například pro dílnu či hobby využití. Součástí je také zahrada o výměře 664 m², která nabízí dostatek soukromí i prostoru pro relaxaci, rodinné aktivity či zahradničení. Praktickým benefitem je vlastní studna, přičemž voda je zavedena přímo do domu. Vytápění zajišťuje automatický kotel Benekov C27.
Obec Suchdol nabízí základní občanskou vybavenost – mateřskou a základní školu, obchod, poštu i restauraci – a poskytuje příjemné a bezpečné prostředí vhodné pro rodinné bydlení. Okolní krajina je ideální pro procházky, cyklistiku i aktivní odpočinek.
Dopravní dostupnost je velmi dobrá:
• Kutná Hora: cca 10 minut jízdy
• Kolín: cca 15–20 minut jízdy
• Praha: cca 60 minut jízdy
Díky své dispozici, technickému zázemí a umístění představuje tato nemovitost ideální kombinaci klidného bydlení, dostatku prostoru a investičního potenciálu.
U této nemovitosti nebyl dodán PENB, uvádíme tedy v souladu s novelou zákona č. 406/2000 Sb. energetickou třídu G.
S financováním Vám pomůže náš certifikovaný hypoteční specialista. Společně najdete to správné řešení přímo odpovídající Vašim požadavkům a potřebám.
Právní servis zajištěný renomovanou právní kanceláří je u nás samozřejmostí. Nenechte si tuto skvělou příležitost ujít a staňte se majitelem tohoto Rodinného domu s velkým potenciálem v Suchdole u Kutné Hory.
Kontaktujte mě pro více informací a domluvte si prohlídku. Tato nemovitost určitě stojí za váš zájem! Ev. číslo: 28157.
V tomto článku shrneme nejdůležitější věci, které byste si měli promyslet, pokud se chystáte prodat svou nemovitost a chcete, abyste s kupujícím nemusel následně řešit vzniklé problémy.
Jako prodávající nesete rizika spojená nejen se samotným obchodem, ale i se stavem nemovitosti v době prodeje a pro minimalizaci rizik, je dobré se zamyslet nad uvedenými oblastmi.
Realitní makléř má své nezastupitelné místo v realitním obchodu. Realitním makléřem nemyslím nevzdělané jelito, které absolvovalo dvoudenní školení a ví, jak se nahraje inzerát na inzertní portál.
Realitním makléřem, který se Vám skutečně vyplatí, je zkušený profesionál, který je schopen Vám dobře poradit jak prodat za co nejvíc a s nejmenším rizikem a hlavně je Vás schopen obratně provést celým realitním obchodem.
Uživatel serveru RealityMIX.iprima.cz (dále jen „Server“) dostupného na internetové adrese (URL) https://realitymix.iprima.cz, který provozuje společnost DALTEN media s.r.o., se sídlem Na Harfě 916/9a, Praha 9, 190 00, IČO: 271 35 306 (dále jen „Správce“) jako provozovateli tohoto Serveru uděluje svůj výslovný souhlas v souladu s ustanovením § 5 zákona č. 101/2000 Sb. O ochraně osobních údajů a o změně některých zákonů, v platném znění (dále jen „zákon o ochraně osobních údajů“), se zpracováním uživatelem poskytnutých osobních údajů a dalších dat.
Uživatel poskytuje Správci osobní údaje v rozsahu: jméno, příjmení, e-mailová adresa, telefonický kontakt a další data, a to z důvodu projeveného zájmu o nemovitost, kde prostřednictvím služby Serveru Správce osloví Uživatel inzerenta uvedeného v detailu
nemovitosti - Reality 11 (IČ 29132886) se zájmem o jeho služby. Tato společnost je součástí seskupení/sítě/franšízového modelu realitních kanceláří, jejich seznam můžete zobrazit kliknutím na tento odkaz.
Dumrealit.cz (IČ 00537861) , HOME 4 PEOPLE (IČ 29132886) , Reality 11 (IČ 29132886) , REAL ESTATE CZECH REPUBLIC a.s. (IČ 29132886) , Národní Realitní Holding a.s. (IČ 02918897)
Uživatel tyto osobní údaje poskytuje dobrovolně a bere na vědomí, že součástí služeb Správce, které Správce Uživateli poskytuje, je vyhledání všech Uživateli vyhovujících (dle parametrů - cena, typ nemovitosti, lokalita atd.) nemovitostí. Správce za tímto účelem provozuje aplikace Hlídací pes a newsletter. Tyto služby je možné z každého zaslaného emailu odhlásit. Souhlas se zpracováním osobních údajů Uživatel poskytuje Správci na dobu neurčitou s tím, že svůj udělený souhlas může Uživatel kdykoliv na drese správce info@realitymix.cz odvolat. Správce garantuje Uživateli i další práva uvedené v ustanovení §11 a §21 zákoba č. 101/200 Sb. Ve znění pozdějších předpisů.
Více informací o zpracování údajů získáte zde (realitymix.cz/zasady-ochrany-osobnich-udaju)