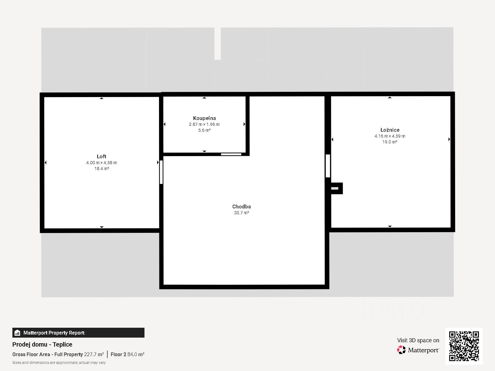
V zastoupení majitele si Vám dovoluji nabídnout prodej luxusního rodinného domu o užitné ploše 227 m², nacházejícího se na adrese Na Bramši v Teplicích, části Trnovany. Dům byl postaven v roce 2015 a kolaudován v roce 2017, jedná se tedy o moderní, patrovou a nízkoenergetickou stavbu s velmi dobrou energetickou třídou A – mimořádně úsporná.
Dispozice domu nabízí 6 pokojů, které zajišťují dostatek místa i pro vícečlennou rodinu. Kuchyň je vybavena na míru vyrobenou kuchyňskou linkou s vestavěnými spotřebiči, jako je myčka, indukční varná deska a trouba. Koupelna splňuje vysoké standardy a nabízí vanu i sprchový kout. Samozřejmostí jsou vestavěné skříně, které poskytují dostatek úložného prostoru. Dům je vybaven moderními technologiemi – podlahovým vytápěním napojeným na tepelné čerpadlo, příprava na zabezpečovací systém, plastovými okny se žaluziemi a sítěmi proti hmyzu. Interiér je světlý, vzdušný, s příjemnou výškou stropů 2,65 m a kvalitními obložkovými zárubněmi.
K domu náleží rozsáhlý vlastní pozemek o celkové rozloze 1819 m², z toho zahrada činí 1400 m². K dispozici je prostorná terasa, která je přímo propojena s obývacím prostorem velkými francouzskými okny, což podtrhuje propojení interiéru s exteriérem. Na pozemku je připraveno parkování až pro 4 vozy, celý prostor je oplocen a situován v klidné části obce.
Lokalita nabízí kompletní občanskou vybavenost a velmi dobrou dopravní dostupnost – v blízkosti najdete MHD, vlakové spojení, autobus i rychlé napojení na dálnici. V okolí jsou nákupní centra, restaurace, školy, kulturní i sportovní zařízení, například Aquacentrum Teplice, Botanická zahrada, Metropole Teplice nebo Nákupní centrum Fontána.
Prohlídkový den se bude konat 10.4.2026 od 13:00 - 18:00 hod
Pokud Vás tato nemovitost zaujala, nebo chcete přijít na prohlídku, neváhejte nás kontaktovat pro více informací. Rádi Vám poskytneme další podrobnosti a odpovíme na veškeré vaše dotazy.
V tomto článku shrneme nejdůležitější věci, které byste si měli promyslet, pokud se chystáte prodat svou nemovitost a chcete, abyste s kupujícím nemusel následně řešit vzniklé problémy.
Jako prodávající nesete rizika spojená nejen se samotným obchodem, ale i se stavem nemovitosti v době prodeje a pro minimalizaci rizik, je dobré se zamyslet nad uvedenými oblastmi.
Realitní makléř má své nezastupitelné místo v realitním obchodu. Realitním makléřem nemyslím nevzdělané jelito, které absolvovalo dvoudenní školení a ví, jak se nahraje inzerát na inzertní portál.
Realitním makléřem, který se Vám skutečně vyplatí, je zkušený profesionál, který je schopen Vám dobře poradit jak prodat za co nejvíc a s nejmenším rizikem a hlavně je Vás schopen obratně provést celým realitním obchodem.
Uživatel serveru RealityMIX.iprima.cz (dále jen „Server“) dostupného na internetové adrese (URL) https://realitymix.iprima.cz, který provozuje společnost DALTEN media s.r.o., se sídlem Na Harfě 916/9a, Praha 9, 190 00, IČO: 271 35 306 (dále jen „Správce“) jako provozovateli tohoto Serveru uděluje svůj výslovný souhlas v souladu s ustanovením § 5 zákona č. 101/2000 Sb. O ochraně osobních údajů a o změně některých zákonů, v platném znění (dále jen „zákon o ochraně osobních údajů“), se zpracováním uživatelem poskytnutých osobních údajů a dalších dat.
Uživatel poskytuje Správci osobní údaje v rozsahu: jméno, příjmení, e-mailová adresa, telefonický kontakt a další data, a to z důvodu projeveného zájmu o nemovitost, kde prostřednictvím služby Serveru Správce osloví Uživatel inzerenta uvedeného v detailu
nemovitosti - JUSTO Česká republika (IČ 04419995) se zájmem o jeho služby.
Uživatel tyto osobní údaje poskytuje dobrovolně a bere na vědomí, že součástí služeb Správce, které Správce Uživateli poskytuje, je vyhledání všech Uživateli vyhovujících (dle parametrů - cena, typ nemovitosti, lokalita atd.) nemovitostí. Správce za tímto účelem provozuje aplikace Hlídací pes a newsletter. Tyto služby je možné z každého zaslaného emailu odhlásit. Souhlas se zpracováním osobních údajů Uživatel poskytuje Správci na dobu neurčitou s tím, že svůj udělený souhlas může Uživatel kdykoliv na drese správce info@realitymix.cz odvolat. Správce garantuje Uživateli i další práva uvedené v ustanovení §11 a §21 zákoba č. 101/200 Sb. Ve znění pozdějších předpisů.
Více informací o zpracování údajů získáte zde (realitymix.cz/zasady-ochrany-osobnich-udaju)