Máte rádi Krkonoše? Pokud ano, pak právě Vám nabízíme jedinečnou příležitost ke koupi domu v místě, kde si budete užívat lyžařských středisek, hrát golf, podnikat výlety na kole po cyklotrasách, procházet se krásnou přírodou národního parku, nebo jen tak relaxovat na přírodním lesním koupališti Sejfy. Toto vše můžete mít v dosahu 15 minut jízdy autem a přitom bydlet v jedné z nejžádanějších částí Svobody nad Úpou - na Sluneční stráni. Autobusové a vlakové nádraží se zastávkou cyklo a SKI busu je jen pár minut od domu.
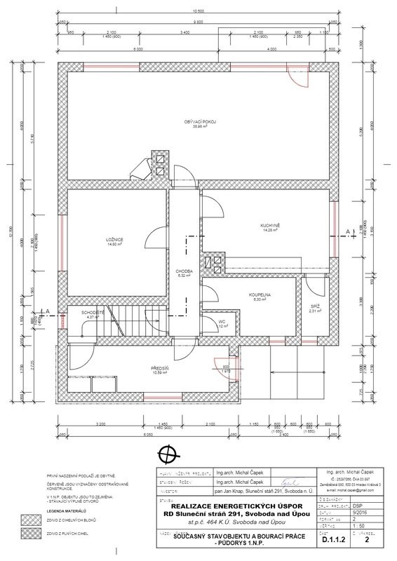
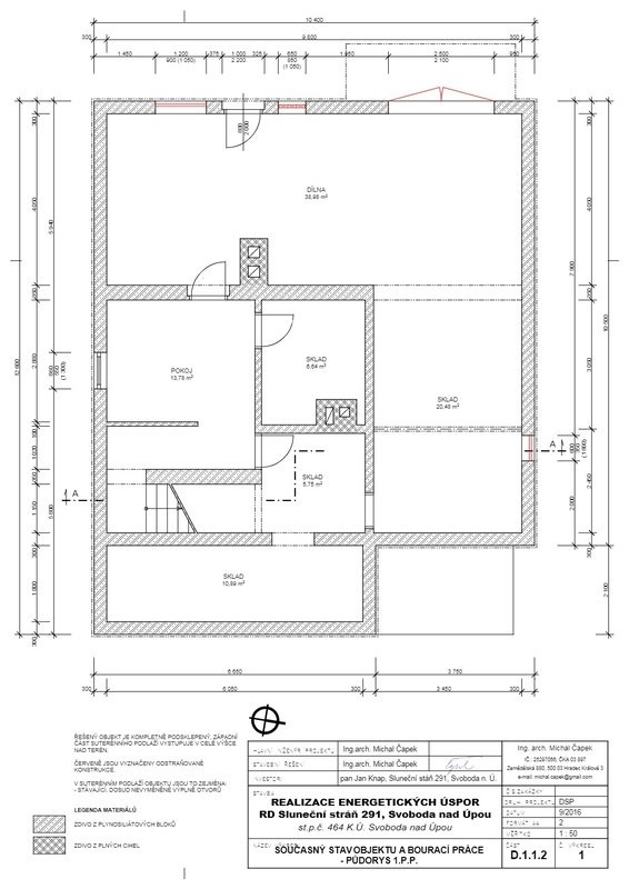
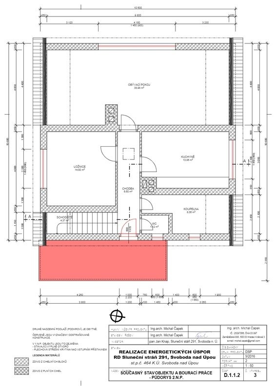
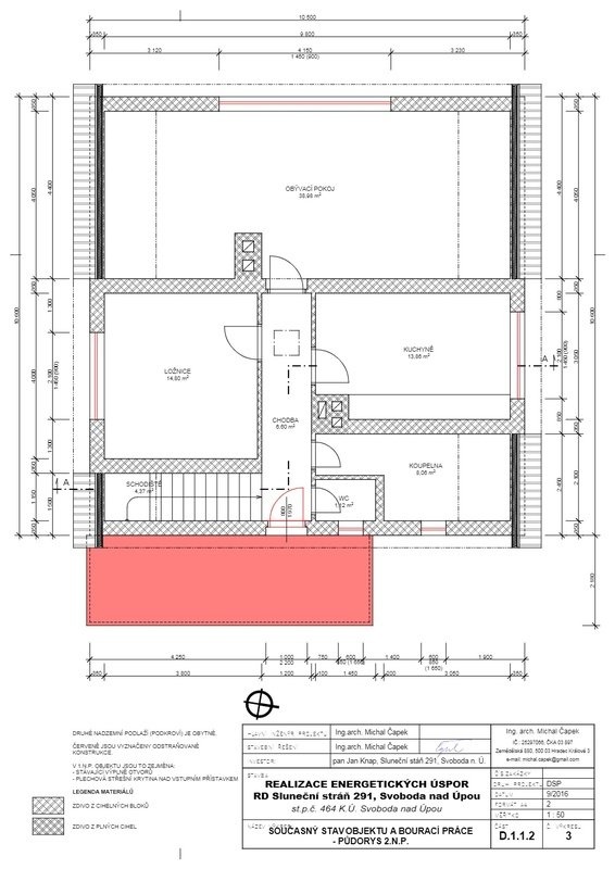
K rodinnému domu, který je situován uprostřed pozemku, vede slepá ulice, což majiteli zaručuje absolutní klid. Dům je dispozičně řešen ve třech podlažích, kdy první je částečně zapuštěné do svažitého terénu s plochou 96,9m2 a se samostatným vchodem. Ve druhém podlaží je bytová jednotka s dispozicí 3+1 (98,8m2 + balkon 4,8m2). Do třetího podlaží o dispozici 3+1 (88,4m2 + terasa 10,6m2) vede samostatné schodiště. Podrobnosti najdete na plánku půdorysů. Vnitřní prostory jsou vhodné k celkovým úpravám, které si nový majitel navrhne podle svých představ.
V roce 2019 bylo provedeno zateplení celého domu včetně výměny oken. Před domem je nově vydlážděné prostranství, které umožňuje parkování minimálně 6 vozů. Voda je vedena z veřejného vodovodu, topení je v domě zajištěno dálkovým horkovodem, odpady jsou svedeny do kanalizace.
Koupě tohoto domu je ale také neopakovatelnou investiční příležitostí. V domě je možné prostory upravit na tři samostatné bytové jednotky, které lze velmi dobře krátkodobě pronajímat.
Svoboda nad Úpou má unikátní polohu, můžete se z ní vydat do různých směrů, ať to jsou Jánské Lázně s lanovkou na Černou horu, nebo některé z lyžařských středisek - Pec pod Sněžkou, Mladé Buky, či Pomezní Boudy. V okolí najdete nepřeberné sportovní vyžití s relaxací a odpočinkem v čisté přírodě Krkonošského národního parku.
Rádi Vás přivítáme na prohlídce této výjimečné nemovitosti s velkým investičním potenciálem. Nechte své peníze vydělávat a zároveň si užívejte krásného prostředí Krkonoš.
V tomto článku shrneme nejdůležitější věci, které byste si měli promyslet, pokud se chystáte prodat svou nemovitost a chcete, abyste s kupujícím nemusel následně řešit vzniklé problémy.
Jako prodávající nesete rizika spojená nejen se samotným obchodem, ale i se stavem nemovitosti v době prodeje a pro minimalizaci rizik, je dobré se zamyslet nad uvedenými oblastmi.
Realitní makléř má své nezastupitelné místo v realitním obchodu. Realitním makléřem nemyslím nevzdělané jelito, které absolvovalo dvoudenní školení a ví, jak se nahraje inzerát na inzertní portál.
Realitním makléřem, který se Vám skutečně vyplatí, je zkušený profesionál, který je schopen Vám dobře poradit jak prodat za co nejvíc a s nejmenším rizikem a hlavně je Vás schopen obratně provést celým realitním obchodem.
Uživatel serveru RealityMIX.iprima.cz (dále jen „Server“) dostupného na internetové adrese (URL) https://realitymix.iprima.cz, který provozuje společnost DALTEN media s.r.o., se sídlem Na Harfě 916/9a, Praha 9, 190 00, IČO: 271 35 306 (dále jen „Správce“) jako provozovateli tohoto Serveru uděluje svůj výslovný souhlas v souladu s ustanovením § 5 zákona č. 101/2000 Sb. O ochraně osobních údajů a o změně některých zákonů, v platném znění (dále jen „zákon o ochraně osobních údajů“), se zpracováním uživatelem poskytnutých osobních údajů a dalších dat.
Uživatel poskytuje Správci osobní údaje v rozsahu: jméno, příjmení, e-mailová adresa, telefonický kontakt a další data, a to z důvodu projeveného zájmu o nemovitost, kde prostřednictvím služby Serveru Správce osloví Uživatel inzerenta uvedeného v detailu
nemovitosti - VIP service (IČ 04352289) se zájmem o jeho služby.
Uživatel tyto osobní údaje poskytuje dobrovolně a bere na vědomí, že součástí služeb Správce, které Správce Uživateli poskytuje, je vyhledání všech Uživateli vyhovujících (dle parametrů - cena, typ nemovitosti, lokalita atd.) nemovitostí. Správce za tímto účelem provozuje aplikace Hlídací pes a newsletter. Tyto služby je možné z každého zaslaného emailu odhlásit. Souhlas se zpracováním osobních údajů Uživatel poskytuje Správci na dobu neurčitou s tím, že svůj udělený souhlas může Uživatel kdykoliv na drese správce info@realitymix.cz odvolat. Správce garantuje Uživateli i další práva uvedené v ustanovení §11 a §21 zákoba č. 101/200 Sb. Ve znění pozdějších předpisů.
Více informací o zpracování údajů získáte zde (realitymix.cz/zasady-ochrany-osobnich-udaju)