Pronájem luxusně zařízeného designového bytu 2+1 s vysokými stropy 91m2 s lodžii - Bubeneč, Praha 6.
Ve výhradním zastoupení majitele nabízím k pronájmu exkluzivní byt ve vyhledávané lokalitě Bubeneč, která se pyšní skvělou dopravní dostupností a veškerou občanskou vybaveností.
Výsledný luxusní interiér prošel předtím kompletní rekonstrukcí pod vedením interiérové designérky, která věnovala maximální pozornost detailům a vytvořila prostor plný elegance, komfortu a originality – inspirovaný stylem bydlení v New Yorku. Vysoké stropy dodávají bytu vzdušnost a jedinečnou atmosféru.
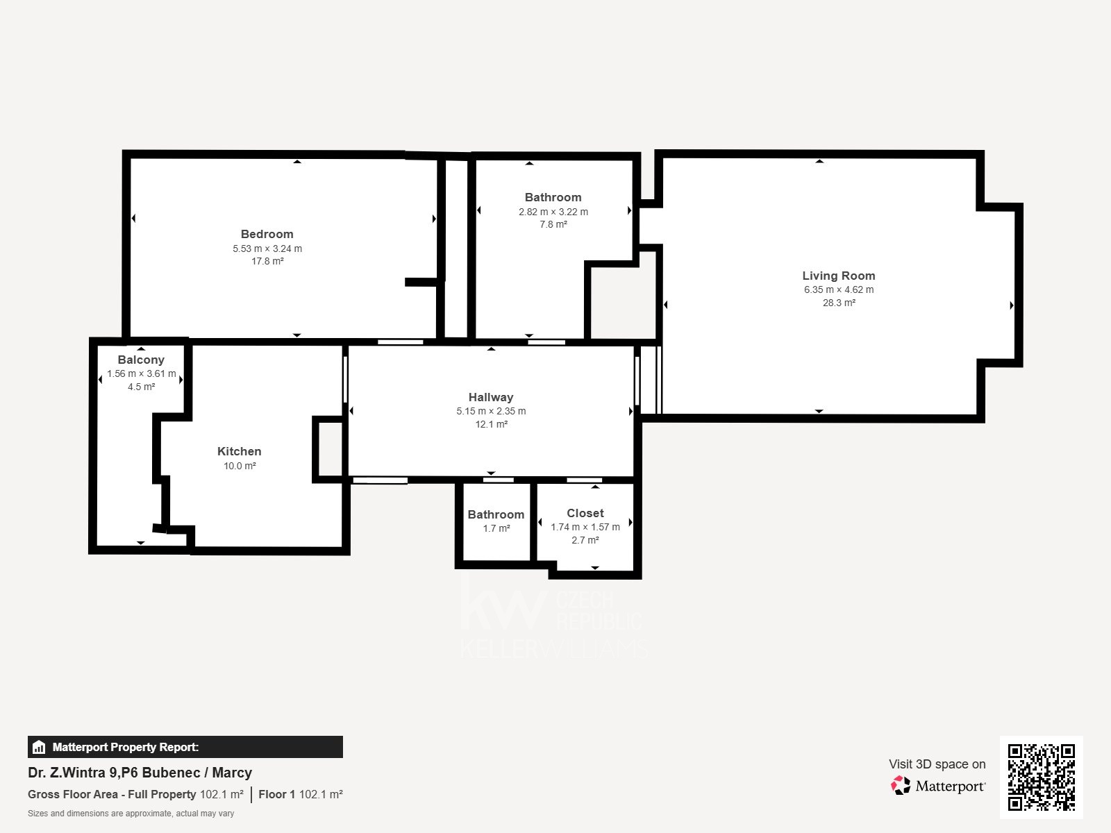
Dispozice bytu byla navržena s ohledem na maximální funkčnost a komfort. Všechny pokoje jsou neprůchozí. Prostorný obývací pokoj, který zahrnuje jak jídelní část se stolem pro 6 lidí a relaxační část pro posezení v křeslech u kávy anebo na rozkládací pohovce nejvyšší kvality u televize, která je připravená pro vaši případnou návštěvu na přespání. Celou atmosféru umocňuje dekorační krb, nástěnná svítidla a elegantní šestiramenný lustr.
Elegantní ložnice je s klimatizací a je vybavená designovou luxusní manželskou postelí s vysokými matracemi, nočními stolky s krásnými svítidly. Knihovna naproti posteli poskytuje dostatek prostoru pro uložení knih, fotek i dokumentů ve spodních skřínkách. Zde je umístněná i TV. Kosmetický stolek se zrcadlem, lampou a pohodlným křeslem, je další bonus v této prostorné ložnici. Úložné prostory jsou schované ve velké vestavné skříni.
Samostatná kuchyň je plně vybavená spotřebiči, pracovní deskou z Technistone, kávovarem Nespresso a varnou konvicí, jídelním setem. Snídaňový stůl pro 4 osoby doplňují prostor, který se otevírá na prostornou lodžii s výhledem do klidného vnitrobloku, ideální pro relaxaci.
Stylová koupelna je vskutku prémiová, jak se sprchovým koutem, tak s velkou vanou, elegantním umyvadlem se šuplíkovou skřínkou se zrcadlem s postranními svítidly. Toaletu doplňuje bidetová sprška. Ve vestavné skříni se ukrývá pračka a sušička. Další toaleta je v samostatné místnosti s umyvadlem a otopným žebříkem.
Prostorná vstupní hala podtrhuje nadčasovou eleganci celého bytu, doplněná velkým designovým zrcadlem, nástěnnými svítidly a stylovým lustrem. Praktickou součástí je samostatná walk-in šatna s množstvím úložného prostoru. Celý byt zdobí kvalitní dřevěné parkety, které umocňují luxusní atmosféru.
Součástí pronájmu je praktický sušák na prádlo, žehlící prkno a žehlička, lux, schůdky a žebřík.
Ideální pro náročné klienty, kteří hledají kombinaci prestiže, pohodlí a moderního bydlení v srdci Prahy 6.
Pro zajištění exkluzivní prezentace a osobní prohlídky mne prosím kontaktujte. Tento jedinečný byt čeká právě na Vás.
Cena:
47 000 Kč / (za měsíc)
Poznámka:
+ zálohy 900Kč/1osoba - 1.630Kč/2osoby, přepis elektřiny a plynu na nájemce, kauce 2 nájmy, bez DPH,
Uživatel serveru RealityMIX.iprima.cz (dále jen „Server“) dostupného na internetové adrese (URL) https://realitymix.iprima.cz, který provozuje společnost DALTEN media s.r.o., se sídlem Na Harfě 916/9a, Praha 9, 190 00, IČO: 271 35 306 (dále jen „Správce“) jako provozovateli tohoto Serveru uděluje svůj výslovný souhlas v souladu s ustanovením § 5 zákona č. 101/2000 Sb. O ochraně osobních údajů a o změně některých zákonů, v platném znění (dále jen „zákon o ochraně osobních údajů“), se zpracováním uživatelem poskytnutých osobních údajů a dalších dat.
Uživatel poskytuje Správci osobní údaje v rozsahu: jméno, příjmení, e-mailová adresa, telefonický kontakt a další data, a to z důvodu projeveného zájmu o nemovitost, kde prostřednictvím služby Serveru Správce osloví Uživatel inzerenta uvedeného v detailu
nemovitosti - Keller Williams Czech Republic (IČ 07796340) se zájmem o jeho služby. Tato společnost je součástí seskupení/sítě/franšízového modelu realitních kanceláří, jejich seznam můžete zobrazit kliknutím na tento odkaz.
Keller Williams Czech Republic (IČ 07796340) , Nemovito by Keller Williams (IČ 10826971) , Keller Williams Czech Republic (IČ 07796340) , Keller Williams - centrála (IČ 06521924)
Uživatel tyto osobní údaje poskytuje dobrovolně a bere na vědomí, že součástí služeb Správce, které Správce Uživateli poskytuje, je vyhledání všech Uživateli vyhovujících (dle parametrů - cena, typ nemovitosti, lokalita atd.) nemovitostí. Správce za tímto účelem provozuje aplikace Hlídací pes a newsletter. Tyto služby je možné z každého zaslaného emailu odhlásit. Souhlas se zpracováním osobních údajů Uživatel poskytuje Správci na dobu neurčitou s tím, že svůj udělený souhlas může Uživatel kdykoliv na drese správce info@realitymix.cz odvolat. Správce garantuje Uživateli i další práva uvedené v ustanovení §11 a §21 zákoba č. 101/200 Sb. Ve znění pozdějších předpisů.
Více informací o zpracování údajů získáte zde (realitymix.cz/zasady-ochrany-osobnich-udaju)