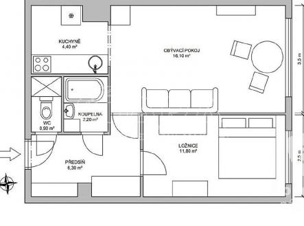
Pronájem bytu 3+kk/L, 68m2, ul. Křejpského, Praha 4 - Chodov, u metra C, bez nábytku
Nabízíme k pronájmu byt 3+kk, byt o rozloze 68m² + lodžie, v 7. patře v panelovém domě s výtahem, ulice Křejpského, Praha 4 - Chodov.
Byt je ve velmi dobrém stavu a je připraven k nastěhování.
K dispozici je kuchyňská linka, plynový sporák a trouba. Jinak bez nábytku.
V koupelně je vana, wc samostatné.
Součástí bytu je sklep o rozloze 3m².
Vynikající dopravní dostupnost - v docházkové vzdálenosti je metro C Opatov.
V okolí domu je veškerá občanská vybavenost - školky, školy, obchod, zdravotní středisko, restaurace, atd..
Nedaleko je Milíčovský les nebo Hostivařská přehrada.
Volný od 1. ledna 2026.
Pronajímatel si vyhrazuje právo výběru nájemce.
Cena:
22 800 Kč / (za měsíc)
Poznámka:
+ poplatky 5.000 Kč pro 2 osoby + energie na nájemce. Kauce 35.000 Kč + provize RK.
Uživatel serveru RealityMIX.iprima.cz (dále jen „Server“) dostupného na internetové adrese (URL) https://realitymix.iprima.cz, který provozuje společnost DALTEN media s.r.o., se sídlem Na Harfě 916/9a, Praha 9, 190 00, IČO: 271 35 306 (dále jen „Správce“) jako provozovateli tohoto Serveru uděluje svůj výslovný souhlas v souladu s ustanovením § 5 zákona č. 101/2000 Sb. O ochraně osobních údajů a o změně některých zákonů, v platném znění (dále jen „zákon o ochraně osobních údajů“), se zpracováním uživatelem poskytnutých osobních údajů a dalších dat.
Uživatel poskytuje Správci osobní údaje v rozsahu: jméno, příjmení, e-mailová adresa, telefonický kontakt a další data, a to z důvodu projeveného zájmu o nemovitost, kde prostřednictvím služby Serveru Správce osloví Uživatel inzerenta uvedeného v detailu
nemovitosti - Realitní kancelář Donna s.r.o. (IČ 02518546) se zájmem o jeho služby.
Uživatel tyto osobní údaje poskytuje dobrovolně a bere na vědomí, že součástí služeb Správce, které Správce Uživateli poskytuje, je vyhledání všech Uživateli vyhovujících (dle parametrů - cena, typ nemovitosti, lokalita atd.) nemovitostí. Správce za tímto účelem provozuje aplikace Hlídací pes a newsletter. Tyto služby je možné z každého zaslaného emailu odhlásit. Souhlas se zpracováním osobních údajů Uživatel poskytuje Správci na dobu neurčitou s tím, že svůj udělený souhlas může Uživatel kdykoliv na drese správce info@realitymix.cz odvolat. Správce garantuje Uživateli i další práva uvedené v ustanovení §11 a §21 zákoba č. 101/200 Sb. Ve znění pozdějších předpisů.
Více informací o zpracování údajů získáte zde (realitymix.cz/zasady-ochrany-osobnich-udaju)