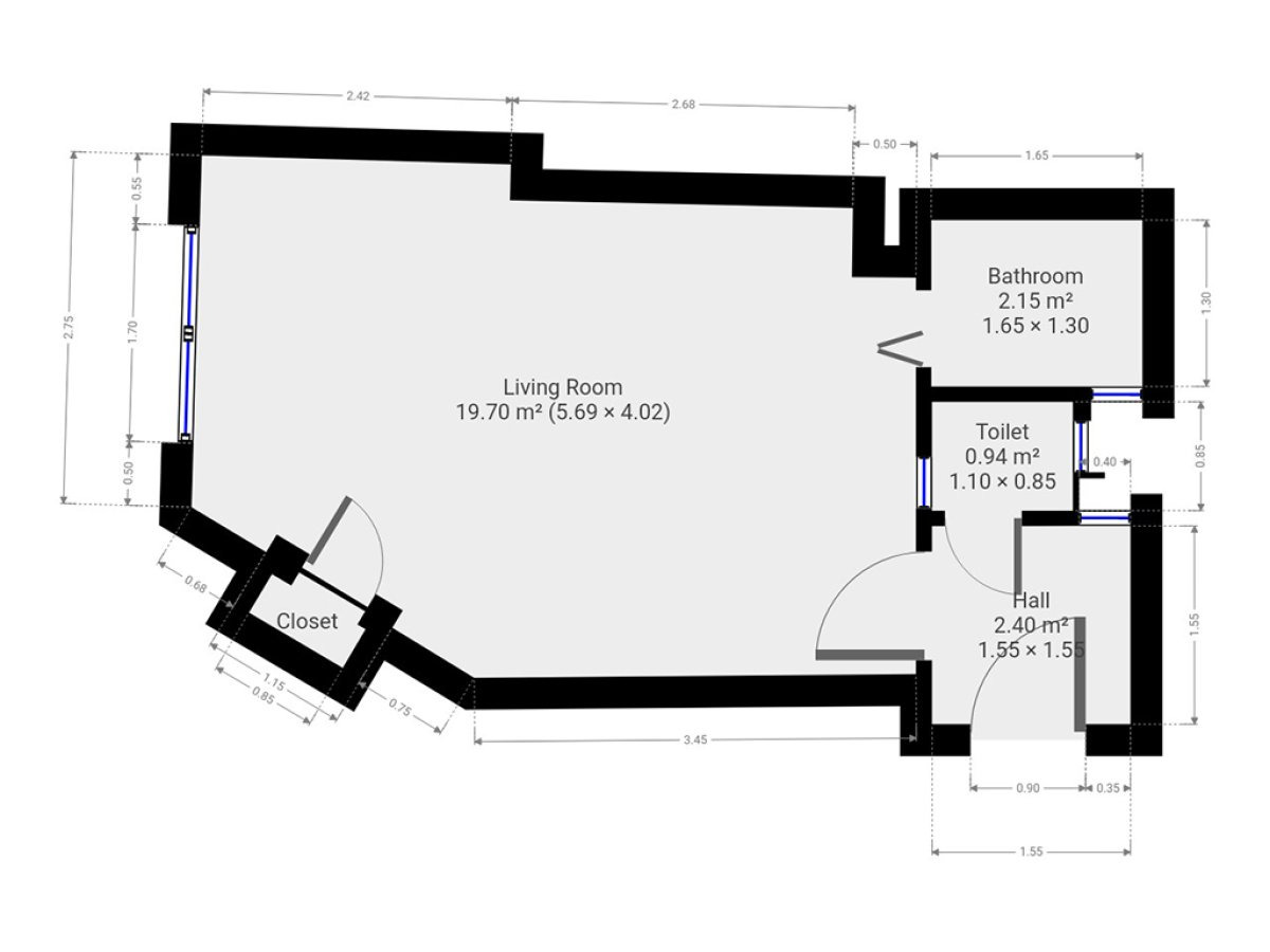
K dlouhodobému podnájmu nabízíme příjemný byt o dispozici 1+kk na ulici Adamovská v klidné lokalitě Praha - Michle. Byt o celkové výměře 25 m2 se nachází v prvním patře cihlového domu.
Byt se nabízí plně vybavený. Kuchyňský kout disponuje linkou se spotřebiči - trouba, sporák a lednice. Obývací část disponuje pohovkou a skříní. Je zde i šatna. V koupelně se nachází sprchový kout, umyvadlo a zrcadlo. Toaleta je oddělená. Předsíň disponuje botníkem, věšákem a pračkou.
V okolí domu se nachází veškerá občanská vybavenost - restaurace, obchody, potraviny, školy a parky. Výborná dopravní dostupnost - zastávky Pod Jezerkou a Kloboučnická.
Byt je volný k nastěhování od 1.1.2026.
Uvedena energetická kategorie G, jelikož nemáme k dispozici PENB.
Byt pronajímá Ideální nájemce - služba, se kterou budete bydlet bezstarostně a za férových podmínek. Když se něco přihodí, k dispozici jsou správci, kteří s vámi vše vyřeší. Pomůžeme s veškerou administrativou, s nastavením plateb a zajistíme vám speciální pojištění. Pojďte bydlet s námi!
Cena:
14 500 Kč / (za měsíc)
Poznámka:
vratná jistota, náklady na bydlení 3900 Kč, poplatek za podnájem
Dispozice/podlahová plocha:
1+kk/25 m²
Číslo zakázky:
REALITYMIX-2961
Podrobné informace
Dispozice bytu:1+kk
Číslo podlaží v domě:1
Počet podlaží objektu:5
Celková podlahová plocha:25 m²
Druh objektu:cihlová
Stav objektu:velmi dobrý
Vlastnictví:osobní
Vybaveno:ano
Umístění objektu:klidná část obce
Doprava:vlak, dálnice, silnice, MHD, autobus
Občanská vybavenost:Škola, Školka, Zdravotnická zařízení, Pošta, Supermarket, Kompletní síť obchodů a služeb
Uživatel serveru RealityMIX.iprima.cz (dále jen „Server“) dostupného na internetové adrese (URL) https://realitymix.iprima.cz, který provozuje společnost DALTEN media s.r.o., se sídlem Na Harfě 916/9a, Praha 9, 190 00, IČO: 271 35 306 (dále jen „Správce“) jako provozovateli tohoto Serveru uděluje svůj výslovný souhlas v souladu s ustanovením § 5 zákona č. 101/2000 Sb. O ochraně osobních údajů a o změně některých zákonů, v platném znění (dále jen „zákon o ochraně osobních údajů“), se zpracováním uživatelem poskytnutých osobních údajů a dalších dat.
Uživatel poskytuje Správci osobní údaje v rozsahu: jméno, příjmení, e-mailová adresa, telefonický kontakt a další data, a to z důvodu projeveného zájmu o nemovitost, kde prostřednictvím služby Serveru Správce osloví Uživatel inzerenta uvedeného v detailu
nemovitosti - Ideální nájemce (IČ 29300631) se zájmem o jeho služby.
Uživatel tyto osobní údaje poskytuje dobrovolně a bere na vědomí, že součástí služeb Správce, které Správce Uživateli poskytuje, je vyhledání všech Uživateli vyhovujících (dle parametrů - cena, typ nemovitosti, lokalita atd.) nemovitostí. Správce za tímto účelem provozuje aplikace Hlídací pes a newsletter. Tyto služby je možné z každého zaslaného emailu odhlásit. Souhlas se zpracováním osobních údajů Uživatel poskytuje Správci na dobu neurčitou s tím, že svůj udělený souhlas může Uživatel kdykoliv na drese správce info@realitymix.cz odvolat. Správce garantuje Uživateli i další práva uvedené v ustanovení §11 a §21 zákoba č. 101/200 Sb. Ve znění pozdějších předpisů.
Více informací o zpracování údajů získáte zde (realitymix.cz/zasady-ochrany-osobnich-udaju)