Prodej bytu 3+1 s lodžií a komorou na Praze 9 - Střížkov
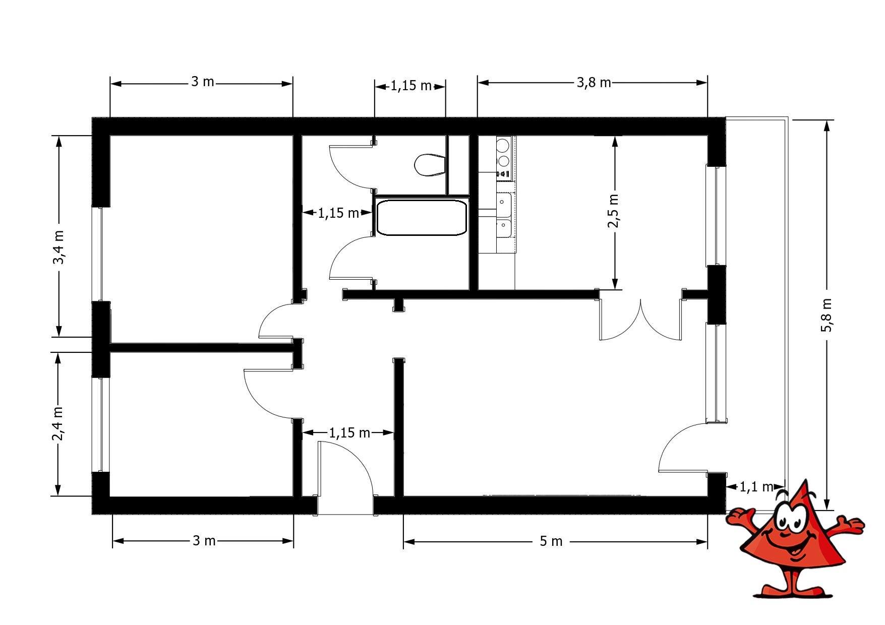
Prodej družstevního bytu 3+1 s lodžií v ulici Rumburská na Praze 9, pouhých 300 metrů od stanice metra "C" Střížkov. Plocha bytu je 53,4 m2 + lodžie cca 6 m2 a komora na chodbě. Přiložený půdorys (vč. naznačených výměr) považujte za orientační.
V bytě nebyly provedeny žádné rekonstrukce, jádro je původní umakartové - je vhodný k realizaci vlastních představ o skvělém bydlení ve slušném domě na klidném místě. Dům je zateplen a velmi dobře udržován.
V nejbližším okolí jsou k dispozici veškeré myslitelné služby, počínaje školami, školkami, obchody, poštou a lékaři, ale i dostatek parkové zeleně, hřiště a prostor pro sportovní vyžití. Cesta do centra je možná vícero způsoby, nezabere déle než 20 minut, díky čemuž je ideální i k pronajímání. Aktuálně je byt do konce února 2026 pronajatý platícímu podnájemci a bez dalších nákladů pronajímatele může ve svém podnájmu pokračovat.
Právní servis zajištěn, kupující neplatí žádnou provizi.
Cena:
Rezervováno
Dispozice/podlahová plocha:
3+1/53 m²
Číslo zakázky:
REALITYMIX-NS02534
Podrobné informace
Dispozice bytu:3+1
Číslo podlaží v domě:8
Počet podlaží objektu:8
Celková podlahová plocha:53 m²
Druh objektu:panelová
Stav objektu:dobrý
Vlastnictví:družstevní
Lodžie:6 m²
Umístění objektu:sídliště
Energetická náročnost budovy:B - Velmi úsporná
Ukazatel energetické náročnosti budovy:150 kWh/m²
Energetický ukazatel podle vyhlášky:č. 78/2013 Sb.
Uživatel serveru RealityMIX.iprima.cz (dále jen „Server“) dostupného na internetové adrese (URL) https://realitymix.iprima.cz, který provozuje společnost DALTEN media s.r.o., se sídlem Na Harfě 916/9a, Praha 9, 190 00, IČO: 271 35 306 (dále jen „Správce“) jako provozovateli tohoto Serveru uděluje svůj výslovný souhlas v souladu s ustanovením § 5 zákona č. 101/2000 Sb. O ochraně osobních údajů a o změně některých zákonů, v platném znění (dále jen „zákon o ochraně osobních údajů“), se zpracováním uživatelem poskytnutých osobních údajů a dalších dat.
Uživatel poskytuje Správci osobní údaje v rozsahu: jméno, příjmení, e-mailová adresa, telefonický kontakt a další data, a to z důvodu projeveného zájmu o nemovitost, kde prostřednictvím služby Serveru Správce osloví Uživatel inzerenta uvedeného v detailu
nemovitosti - TRIO Reality s.r.o. (IČ 26443538) se zájmem o jeho služby.
Uživatel tyto osobní údaje poskytuje dobrovolně a bere na vědomí, že součástí služeb Správce, které Správce Uživateli poskytuje, je vyhledání všech Uživateli vyhovujících (dle parametrů - cena, typ nemovitosti, lokalita atd.) nemovitostí. Správce za tímto účelem provozuje aplikace Hlídací pes a newsletter. Tyto služby je možné z každého zaslaného emailu odhlásit. Souhlas se zpracováním osobních údajů Uživatel poskytuje Správci na dobu neurčitou s tím, že svůj udělený souhlas může Uživatel kdykoliv na drese správce info@realitymix.cz odvolat. Správce garantuje Uživateli i další práva uvedené v ustanovení §11 a §21 zákoba č. 101/200 Sb. Ve znění pozdějších předpisů.
Více informací o zpracování údajů získáte zde (realitymix.cz/zasady-ochrany-osobnich-udaju)