Nový byt 2+kk/T, gar. stání, 64,3 m2, DV, Praha 9 - Vysočany, ul. Pod Harfou
Nabízíme k prodeji luxusní, skvěle dispozičně vyřešený a velmi světlý byt v novostavbě Harfa Park (kolaudace 2024) v Praze 9 - Vysočany, ul. Pod Harfou.
Absolutní klid, množství zeleně, nádherný výhled a výborná dostupnost MHD (12 min. chůze na |M| Vysočanská, nebo 7 minut tramvají na |M| Palmovka - zastávka 270 m od domu).
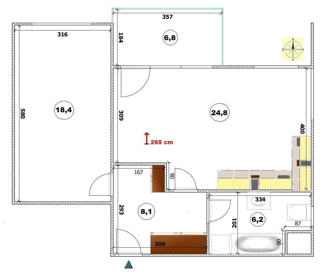
Byt 2+kk (57,5 m2) se zastřešenou terasou (6,8 m2) a garážovým stáním. 7. patro z 8 se dvěma výtahy.
Cena za převod družstevního podílu 6.420.000,-Kč + zbývající anuita ve výši 4.780.000,-Kč s 3% úrokovou sazbou bez nutnosti prokazování příjmů! Měsíční splátka ve výši 21.439,-Kč. Možnost financování prostřednictvím hypotéčního úvěru.
Převod do OV není aktuálně možný, více informací na vyžádání.
Velké vestavěné šatní skříně, věšáky a botník v předsíni. Kuchyňská linka s vestavěnou indukční deskou, horkovzdušnou troubou, myčkou a digestoří s odtahem a lednicí s mrazákem.
V obývacím pokoji 4 okna včetně francouzského se vstupem na terasu. Orientace oken do volného prostoru bez zástavby! Velmi prostorná koupelna s oknem, vanou, závěsným WC a pračkou. Na podlahách dlažba, vinyl a koberec. Vytápění dálkové - měřič vstupního tepla do bytu. Stropy vysoké 265 cm.
Společné prostory (kočárkárna a kolárna).
Internet (optický kabel – 1 Gb/s) zaveden do bytu, datové a televizní zásuvky v každé místnosti. Bezpečnostní dveře.
Krásné okolí s plnou občanskou vybaveností a sportovního vyžití. Cyklostezka (Outdoor fitness stezka Rokytka) A26 přímo u domu. Skvěle vybavená venkovní posilovna, lezecká stěna, bazén, OC Fénix, pizzerie, restaurace, …
Měsíční zálohy za služby 6.345,-Kč, včetně fondu oprav a správy 2.080,-Kč.
Skvělá investice! Byt je v současné době obsazen řádně platícím nájemcem za 23.000,-Kč + poplatky. Nájemní smlouva končí za 3 měsíce. Pokud bude mít nový majitel zájem o prodloužení, nájemce toto uvítá.
Více fotografií (34) na stránkách blanikreality pod ID: 26105.
Třída energetické náročnosti (PENB) - B - velmi úsporná.
Realitní makléř má své nezastupitelné místo v realitním obchodu. Realitním makléřem nemyslím nevzdělané jelito, které absolvovalo dvoudenní školení a ví, jak se nahraje inzerát na inzertní portál.
Realitním makléřem, který se Vám skutečně vyplatí, je zkušený profesionál, který je schopen Vám dobře poradit jak prodat za co nejvíc a s nejmenším rizikem a hlavně je Vás schopen obratně provést celým realitním obchodem.
Uživatel serveru RealityMIX.iprima.cz (dále jen „Server“) dostupného na internetové adrese (URL) https://realitymix.iprima.cz, který provozuje společnost DALTEN media s.r.o., se sídlem Na Harfě 916/9a, Praha 9, 190 00, IČO: 271 35 306 (dále jen „Správce“) jako provozovateli tohoto Serveru uděluje svůj výslovný souhlas v souladu s ustanovením § 5 zákona č. 101/2000 Sb. O ochraně osobních údajů a o změně některých zákonů, v platném znění (dále jen „zákon o ochraně osobních údajů“), se zpracováním uživatelem poskytnutých osobních údajů a dalších dat.
Uživatel poskytuje Správci osobní údaje v rozsahu: jméno, příjmení, e-mailová adresa, telefonický kontakt a další data, a to z důvodu projeveného zájmu o nemovitost, kde prostřednictvím služby Serveru Správce osloví Uživatel inzerenta uvedeného v detailu
nemovitosti - BLANÍK REALITY s.r.o. (IČ 27657558) se zájmem o jeho služby.
Uživatel tyto osobní údaje poskytuje dobrovolně a bere na vědomí, že součástí služeb Správce, které Správce Uživateli poskytuje, je vyhledání všech Uživateli vyhovujících (dle parametrů - cena, typ nemovitosti, lokalita atd.) nemovitostí. Správce za tímto účelem provozuje aplikace Hlídací pes a newsletter. Tyto služby je možné z každého zaslaného emailu odhlásit. Souhlas se zpracováním osobních údajů Uživatel poskytuje Správci na dobu neurčitou s tím, že svůj udělený souhlas může Uživatel kdykoliv na drese správce info@realitymix.cz odvolat. Správce garantuje Uživateli i další práva uvedené v ustanovení §11 a §21 zákoba č. 101/200 Sb. Ve znění pozdějších předpisů.
Více informací o zpracování údajů získáte zde (realitymix.cz/zasady-ochrany-osobnich-udaju)