Novostavba rodinného domu exkluzivní místo k bydlení.
Dnes vám chceme představit kvalitní novostavbu rodinného domu, který se nachází před dokončením vnitřních prostor.
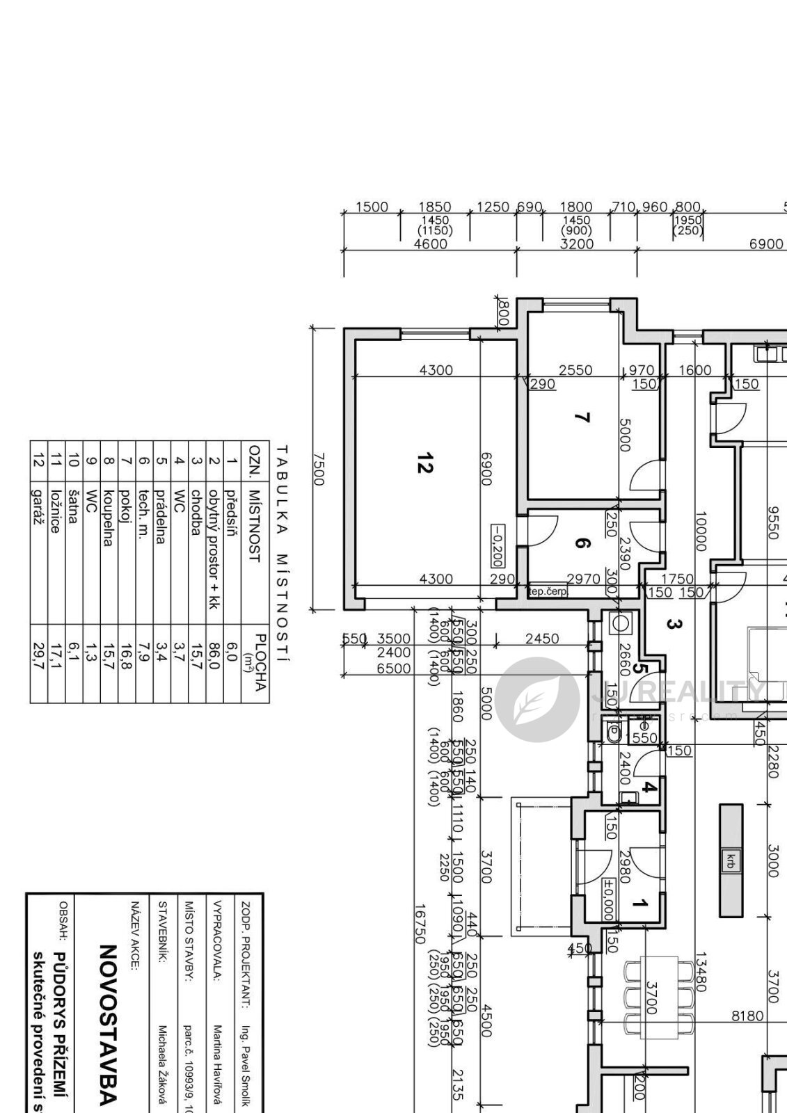
Tento nádherný prosvětlený dům je dispozičně velmi dobře řešený a nabízí komfortní prostorné bydlení, ideální pro vaši rodinu. Při vstupu projdeme chodbou, která nás zavede do srdce tohoto nízkoenergetického domu – obývacího prostoru s kuchyňským koutem. Tento prostor je dokonale prosvětlený a nabízí dostatek místa pro rodinné chvíle i sluneční paprsky, jeho plocha je s kuchyňským koutem 86m2 a uprostřed stěny, která odděluje otevřený a vzdušný prostor najdeme krb.
Vpravo od obývacího pokoje projdeme do další části domu , kde najdeme další místnosti: pokoj, ložnici, prostornou koupelnu, technickou a úklidovou místnost. Ženy jistě ocení samostatnou šatnu, která se nachází u ložnice, což přidává na praktičnosti a komfortu.
K domu náleží garáž o výměře 29 m², do které projdeme z technické místnosti. Dům je přízemní a z obývacího prostoru se dostaneme na krytou terasu, kde si můžete užívat klidné chvíle s rodinou.
Celý dům je postaven na rovinatém pozemku s výhledem na Plzeň, a to v krásné lokalitě nad ZOO Plzeň. Na jedné straně pozemku najdeme úchvatnou gabionovou zeď, která plní jak praktickou, tak estetickou funkci. Toto místo je opravdovým rájem klidu, přitom jen kousek od centra města.
Dům je před dokončením a kolaudací a prodává se v tomto stavu. Je jen na vás, jaké barevné provedení si vyberete a jak dotvoříte dům ke své dokonalosti. K této dokonalosti chybí zařizovací předměty a obklady koupelny, kuchyňská linka, poslední povrch podlah ( podlahová krytina), vnitřní dveře, obložky a tepelné čerpadlo. Veškerá dokumentace k domu je pro vás připravena. U této nemovitosti lze převzít hypotéka s fixací do roku 2029.
A protože vlastní zážitek je více než tisíc slov, těšíme se na vás na prohlídce tohoto domu na místě , které je jedinečné.
V tomto článku shrneme nejdůležitější věci, které byste si měli promyslet, pokud se chystáte prodat svou nemovitost a chcete, abyste s kupujícím nemusel následně řešit vzniklé problémy.
Jako prodávající nesete rizika spojená nejen se samotným obchodem, ale i se stavem nemovitosti v době prodeje a pro minimalizaci rizik, je dobré se zamyslet nad uvedenými oblastmi.
Realitní makléř má své nezastupitelné místo v realitním obchodu. Realitním makléřem nemyslím nevzdělané jelito, které absolvovalo dvoudenní školení a ví, jak se nahraje inzerát na inzertní portál.
Realitním makléřem, který se Vám skutečně vyplatí, je zkušený profesionál, který je schopen Vám dobře poradit jak prodat za co nejvíc a s nejmenším rizikem a hlavně je Vás schopen obratně provést celým realitním obchodem.
Uživatel serveru RealityMIX.iprima.cz (dále jen „Server“) dostupného na internetové adrese (URL) https://realitymix.iprima.cz, který provozuje společnost DALTEN media s.r.o., se sídlem Na Harfě 916/9a, Praha 9, 190 00, IČO: 271 35 306 (dále jen „Správce“) jako provozovateli tohoto Serveru uděluje svůj výslovný souhlas v souladu s ustanovením § 5 zákona č. 101/2000 Sb. O ochraně osobních údajů a o změně některých zákonů, v platném znění (dále jen „zákon o ochraně osobních údajů“), se zpracováním uživatelem poskytnutých osobních údajů a dalších dat.
Uživatel poskytuje Správci osobní údaje v rozsahu: jméno, příjmení, e-mailová adresa, telefonický kontakt a další data, a to z důvodu projeveného zájmu o nemovitost, kde prostřednictvím služby Serveru Správce osloví Uživatel inzerenta uvedeného v detailu
nemovitosti - JJ Reality a správa nemovitostí s.r.o. (IČ 22581430) se zájmem o jeho služby.
Uživatel tyto osobní údaje poskytuje dobrovolně a bere na vědomí, že součástí služeb Správce, které Správce Uživateli poskytuje, je vyhledání všech Uživateli vyhovujících (dle parametrů - cena, typ nemovitosti, lokalita atd.) nemovitostí. Správce za tímto účelem provozuje aplikace Hlídací pes a newsletter. Tyto služby je možné z každého zaslaného emailu odhlásit. Souhlas se zpracováním osobních údajů Uživatel poskytuje Správci na dobu neurčitou s tím, že svůj udělený souhlas může Uživatel kdykoliv na drese správce info@realitymix.cz odvolat. Správce garantuje Uživateli i další práva uvedené v ustanovení §11 a §21 zákoba č. 101/200 Sb. Ve znění pozdějších předpisů.
Více informací o zpracování údajů získáte zde (realitymix.cz/zasady-ochrany-osobnich-udaju)