Prodej rozestavěného RD 5+kk, zast. pl. 99m², pozemek 359 m², obec Nový Vestec
Nabízíme k prodeji rozestavěný rodinný dům 5+kk s obytnou plochou 152 m², zastavěnou plochou 99 m² a celkovou výměrou pozemku 359 m². Nemovitost se nachází v klidné lokalitě v ulici Pod Bažantnicí v obci Nový Vestec. Dům je situován na okraji lesoparku u soutoku Jizery a Labe, v malebném a klidném prostředí ideálním pro rodinné bydlení, procházky i odpočinek v přírodě. Současně nabízí výbornou dopravní dostupnost – do Prahy, Brandýsa nad Labem i Staré Boleslavi se pohodlně dostanete během několika minut, k metru Černý Most zhruba za 17 minut jízdy.
Pozemek je kompletně zasíťovaný – k dispozici je napojení na elektřinu, veřejný vodovod, kanalizaci i plynovod. Je oplocený a přístupný z veřejné komunikace.
Dům má platné stavební povolení a kompletní projektovou dokumentaci. Je plně podsklepený, obvodové zdivo je z tvárnic Ytong o tloušťce 30 cm a počítá se se zateplením 18cm. Střešní krytinu tvoří pálené betonové tašky KMB Beta Elegant (v ceně stavby, dosud nepoložené, realizace proběhne v následujících týdnech), střešní okna jsou zn. Roto.
V současné době probíhají terénní úpravy pozemku. Dům je připraven k dokončení podle představ nového majitele, přičemž je možné zajistit dokončení stavby prověřenou stavební firmou.
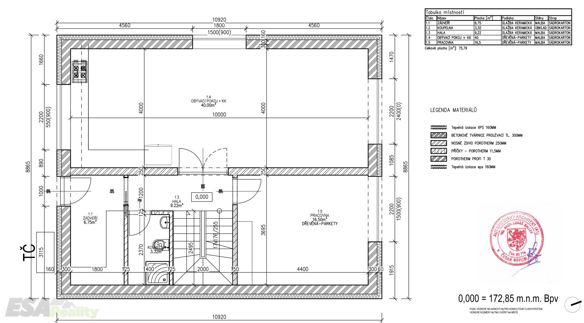
Dispozice domu:
1.PP: Sklep 61m², technická místnost 12,5m².
1.NP: Zádveří 6,8m², vstupní chodba 9,2m², koupelna se sprchovým koutem a WC 3,3m², ložnice 16,5m², obývací pokoj se vstupem do zahrady a kuchyňský kout 40m².
2.NP: Chodba 11m², tři ložnice 23,3m², 17,2m² 16,1m², koupelna s vanou a WC 8,6m².
Obec leží v malebné krajině Polabí, obklopená přírodou a množstvím rekreačních možností. V blízkosti se nachází koupací jezero u Káraného, slatinné lázně Toušeň, lesopark Houšťka se sportovišti či přírodní památka Černý orel – pozůstatek někdejších královských lesů.
Občanská vybavenost obce zajišťuje veškeré základní potřeby pro pohodlné bydlení. V docházkové vzdálenosti je obchod s potravinami a autobusová zastávka. Kompletní infrastrukturu – školy, zdravotní péči i sportovní zařízení – nabízí nedaleký Brandýs nad Labem – Stará Boleslav.
Možnost financování hypotečním úvěrem.
Cena:
7 900 000 Kč
Poznámka:
Cena je včetně provize a veškerého právního servisu
V tomto článku shrneme nejdůležitější věci, které byste si měli promyslet, pokud se chystáte prodat svou nemovitost a chcete, abyste s kupujícím nemusel následně řešit vzniklé problémy.
Jako prodávající nesete rizika spojená nejen se samotným obchodem, ale i se stavem nemovitosti v době prodeje a pro minimalizaci rizik, je dobré se zamyslet nad uvedenými oblastmi.
Realitní makléř má své nezastupitelné místo v realitním obchodu. Realitním makléřem nemyslím nevzdělané jelito, které absolvovalo dvoudenní školení a ví, jak se nahraje inzerát na inzertní portál.
Realitním makléřem, který se Vám skutečně vyplatí, je zkušený profesionál, který je schopen Vám dobře poradit jak prodat za co nejvíc a s nejmenším rizikem a hlavně je Vás schopen obratně provést celým realitním obchodem.
Uživatel serveru RealityMIX.iprima.cz (dále jen „Server“) dostupného na internetové adrese (URL) https://realitymix.iprima.cz, který provozuje společnost DALTEN media s.r.o., se sídlem Na Harfě 916/9a, Praha 9, 190 00, IČO: 271 35 306 (dále jen „Správce“) jako provozovateli tohoto Serveru uděluje svůj výslovný souhlas v souladu s ustanovením § 5 zákona č. 101/2000 Sb. O ochraně osobních údajů a o změně některých zákonů, v platném znění (dále jen „zákon o ochraně osobních údajů“), se zpracováním uživatelem poskytnutých osobních údajů a dalších dat.
Uživatel poskytuje Správci osobní údaje v rozsahu: jméno, příjmení, e-mailová adresa, telefonický kontakt a další data, a to z důvodu projeveného zájmu o nemovitost, kde prostřednictvím služby Serveru Správce osloví Uživatel inzerenta uvedeného v detailu
nemovitosti - Bc. Jaroslav Boucník - ESA Reality (IČ 28362888) se zájmem o jeho služby.
Uživatel tyto osobní údaje poskytuje dobrovolně a bere na vědomí, že součástí služeb Správce, které Správce Uživateli poskytuje, je vyhledání všech Uživateli vyhovujících (dle parametrů - cena, typ nemovitosti, lokalita atd.) nemovitostí. Správce za tímto účelem provozuje aplikace Hlídací pes a newsletter. Tyto služby je možné z každého zaslaného emailu odhlásit. Souhlas se zpracováním osobních údajů Uživatel poskytuje Správci na dobu neurčitou s tím, že svůj udělený souhlas může Uživatel kdykoliv na drese správce info@realitymix.cz odvolat. Správce garantuje Uživateli i další práva uvedené v ustanovení §11 a §21 zákoba č. 101/200 Sb. Ve znění pozdějších předpisů.
Více informací o zpracování údajů získáte zde (realitymix.cz/zasady-ochrany-osobnich-udaju)