Prodej dvou ubytovacích zařízení 968 m2 užitné plochy, s pozemkem 4150 m2, Lučany nad Nisou
Váš sen o podnikání v srdci Jizerských hor se stává skutečností! Exkluzivní nabídka dvou rekreačních objektů v Lučanech nad Nisou. Představujeme vám jedinečnou investiční příležitost v malebné lokalitě Lučan nad Nisou, ideální brány do Jizerských hor. Tento rozsáhlý areál, obklopený horami, lesy a panenskou přírodou, nabízí dvě samostatné budovy s celkovým pozemkem o výměře 4150 m2. Připraveno pro okamžitý provoz a generování zisku, s flexibilním využitím pro krátkodobé i dlouhodobé pobyty.
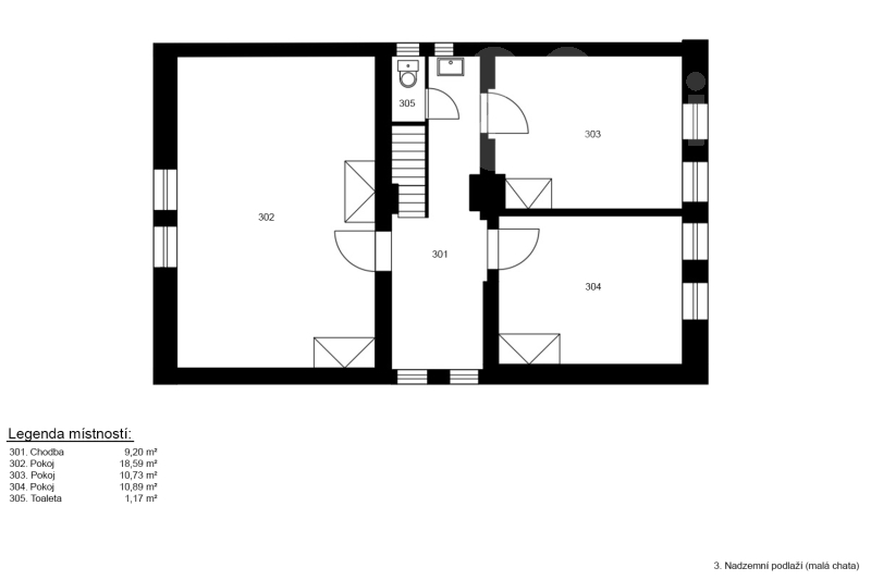
Hlavní chata - centrum zážitků (Užitná plocha 715 m2 + 90 m2 terasy): Dominantou areálu je prostorná hlavní chata, zčásti zděná (suterén a přízemí) a zčásti dřevěná (patro a podkroví). Její impozantní rozměry a vybavení ji předurčují pro skupinové akce, firemní teambuildingy, školy v přírodě nebo rodinné srazy.
Gurmánské zázemí: Plně zařízená profesionální kuchyň pro přípravu plné penze, velká jídelna s kapacitou 60 osob a oddělený bar pro 30 osob. K dispozici je i samostatná kuchyň pro vlastní vaření hostů.
Ubytování: 13 pokojů v patrech se společným sociálním zařízením na chodbě.
Zábava a relax: Dětský koutek, lyžárna a rozlehlá terasa pro více než 50 osob.
Technické zázemí: Prostorný suterén zajišťuje bezproblémový provoz.
Druhá chata - soukromí a flexibilita (Užitná plocha 253 m2;): Třípodlažní chata nabízí větší míru soukromí a variability ubytování.
Přízemí: Lyžárna, sklady, garáže a jeden samostatný obytný pokoj (24 m2) s vlastním sociálním zařízením.
Druhé podlaží: Dva pokoje a apartmán v hlavní části, v přístavbě pak další prostorný apartmán se dvěma pokoji, samostatnou kuchyňkou, koupelnou a toaletou.
Podkroví: Další tři pokoje. Tato chata je ideální pro menší skupiny, rodiny nebo jako doplňkové ubytování k hlavnímu objektu.
Potenciál, který se nabízí: Oba objekty, oddělené obecní komunikací, mohou fungovat nezávisle, což otevírá dveře k mnoha podnikatelským modelům. Nemovitosti jsou v původním, avšak pečlivě udržovaném stavu, vybaveny novými plastovými okny a novou kotelnou. Prodávají se kompletně zařízené, připravené k okamžitému převzetí a provozu.
A co dál? Vaše vize pro Jizerské hory:
Wellness a relaxační centrum: Proměňte areál v oázu klidu s možností saun, vířivek či masáží, lákající individuální i firemní klientelu.
Sportovní akademie/rekondiční pobyty: Díky poloze přímo u turistických, cyklistických a běžkařských tras je areál ideální pro sportovní soustředění, kempy či rehabilitační pobyty.
Umělecké workshopy/retreaty: Inspirující přírodní prostředí pro kreativní setkání a tvůrčí dílny.
Rodinné sídlo s příjmem: Bydlete v jedné chatě a druhou pronajímejte pro generování stabilního příjmu.
Kombinace privátního ubytování a služeb: Nabídka prémiových apartmánů v kombinaci s prostory pro akce a firemní prezentace.
Financování: Za určitých podmínek je možné financování hypotékou. Případně zajistíme jiné financování.
Nenechte si ujít tuto výjimečnou šanci! Pro více informací nás neváhejte kontaktovat.
Cena:
18 500 000 Kč
Poznámka:
Cena včetně právních služeb a provize.
Číslo zakázky:
REALITYMIX-230837
Podrobné informace
Zastavěná plocha:406 m²
Užitná plocha:968 m²
Plocha parcely:4150 m²
Počet podlaží objektu:3
Druh objektu:smíšená
Stav objektu:dobrý
Typ zařízení:Penzion
Terasa:90 m²
Doprava:silnice, autobus
Elektřina:Elektro - 230 V, Elektro - 380 V
Voda:Voda - dálkový vodovod
Telekomunikace:Internet
Topení:Ústřední - plynové
Odpad:Kanalizace
Ostatní rozvody:Satelit, Ostatní rozvody
Energetická náročnost budovy:F - Velmi nehospodárná
Ukazatel energetické náročnosti budovy:453 kWh/m²
Popis vybavení:Kompletní vybavení pro penzion, včetně kuchyně.
V tomto článku shrneme nejdůležitější věci, které byste si měli promyslet, pokud se chystáte prodat svou nemovitost a chcete, abyste s kupujícím nemusel následně řešit vzniklé problémy.
Jako prodávající nesete rizika spojená nejen se samotným obchodem, ale i se stavem nemovitosti v době prodeje a pro minimalizaci rizik, je dobré se zamyslet nad uvedenými oblastmi.
Realitní makléř má své nezastupitelné místo v realitním obchodu. Realitním makléřem nemyslím nevzdělané jelito, které absolvovalo dvoudenní školení a ví, jak se nahraje inzerát na inzertní portál.
Realitním makléřem, který se Vám skutečně vyplatí, je zkušený profesionál, který je schopen Vám dobře poradit jak prodat za co nejvíc a s nejmenším rizikem a hlavně je Vás schopen obratně provést celým realitním obchodem.
Uživatel serveru RealityMIX.iprima.cz (dále jen „Server“) dostupného na internetové adrese (URL) https://realitymix.iprima.cz, který provozuje společnost DALTEN media s.r.o., se sídlem Na Harfě 916/9a, Praha 9, 190 00, IČO: 271 35 306 (dále jen „Správce“) jako provozovateli tohoto Serveru uděluje svůj výslovný souhlas v souladu s ustanovením § 5 zákona č. 101/2000 Sb. O ochraně osobních údajů a o změně některých zákonů, v platném znění (dále jen „zákon o ochraně osobních údajů“), se zpracováním uživatelem poskytnutých osobních údajů a dalších dat.
Uživatel poskytuje Správci osobní údaje v rozsahu: jméno, příjmení, e-mailová adresa, telefonický kontakt a další data, a to z důvodu projeveného zájmu o nemovitost, kde prostřednictvím služby Serveru Správce osloví Uživatel inzerenta uvedeného v detailu
nemovitosti - Bidli reality, a.s. (IČ 06790763) se zájmem o jeho služby. Tato společnost je součástí seskupení/sítě/franšízového modelu realitních kanceláří, jejich seznam můžete zobrazit kliknutím na tento odkaz.
Hypocentrum modré pyramidy - Praha (IČ ) , Hypocentrum modré pyramidy - Brno (IČ ) , Hypocentrum Modré pyramidy - Hradec Králové (IČ ) , Hypocentrum Modré pyramidy - České Budějovice (IČ ) , Hypocentrum Modré pyramidy - Pardubice (IČ ) , Hypocentrum Modré pyramidy - Plzeň (IČ ) , Hypocentrum Modré pyramidy - Ústí nad Labem (IČ ) , Hypocentrum Modré pyramidy - Ostrava (IČ ) , Hypocentrum Modré pyramidy - Olomouc (IČ ) , Bidli reality, a.s. (IČ 06790763)
Uživatel tyto osobní údaje poskytuje dobrovolně a bere na vědomí, že součástí služeb Správce, které Správce Uživateli poskytuje, je vyhledání všech Uživateli vyhovujících (dle parametrů - cena, typ nemovitosti, lokalita atd.) nemovitostí. Správce za tímto účelem provozuje aplikace Hlídací pes a newsletter. Tyto služby je možné z každého zaslaného emailu odhlásit. Souhlas se zpracováním osobních údajů Uživatel poskytuje Správci na dobu neurčitou s tím, že svůj udělený souhlas může Uživatel kdykoliv na drese správce info@realitymix.cz odvolat. Správce garantuje Uživateli i další práva uvedené v ustanovení §11 a §21 zákoba č. 101/200 Sb. Ve znění pozdějších předpisů.
Více informací o zpracování údajů získáte zde (realitymix.cz/zasady-ochrany-osobnich-udaju)