Lahošť, Teplice
2 400 000 KčLahošť, Teplice
| Cena: | 2 400 000 Kč |
| Poznámka: | Včetně provize a právních služeb |
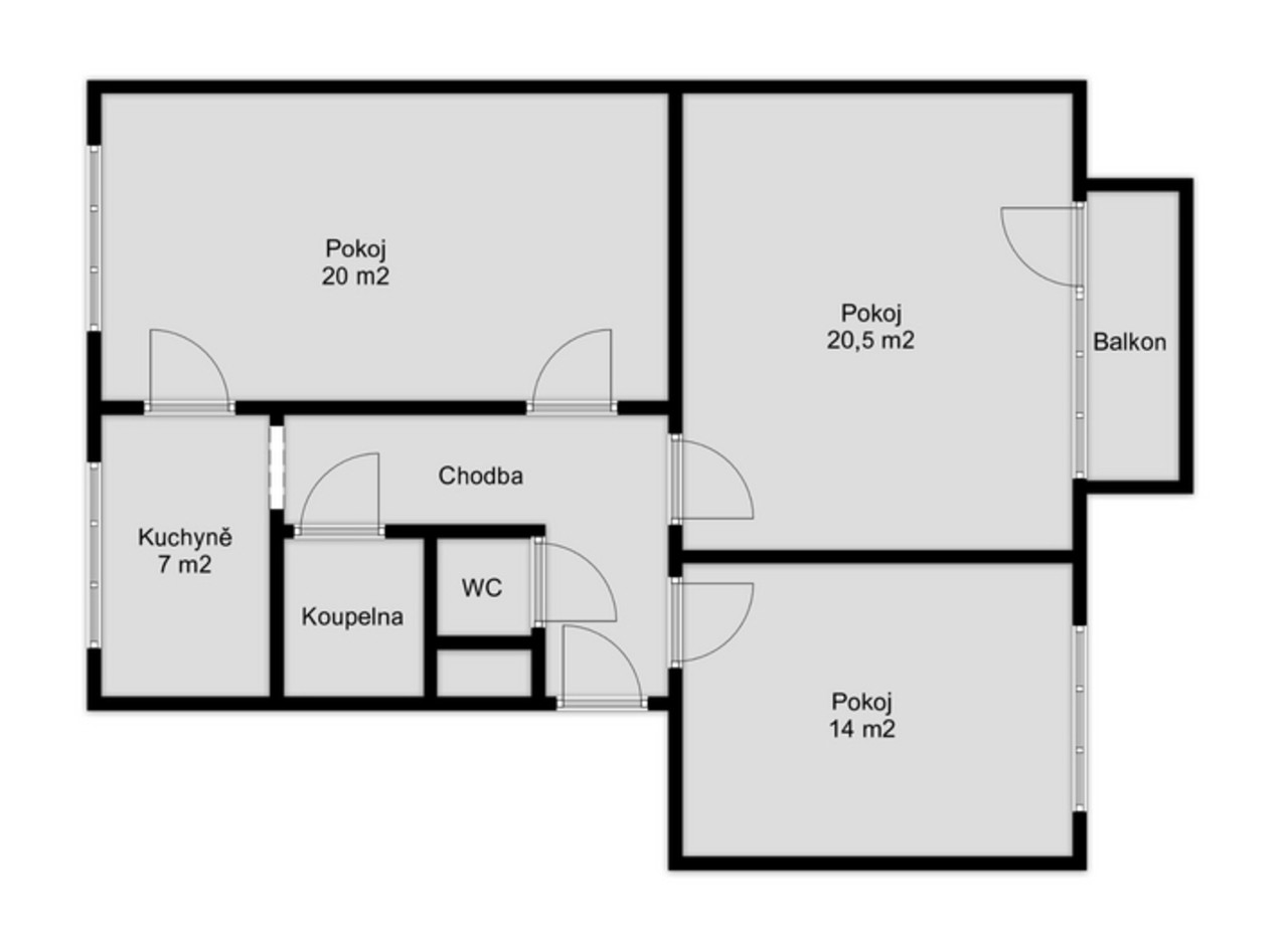
| Dispozice/podlahová plocha: | 3+1/70 m² |
| Číslo zakázky: | REALITYMIX-941 |
V tomto článku shrneme nejdůležitější věci, které byste si měli promyslet, pokud se chystáte prodat svou nemovitost a chcete, abyste s kupujícím nemusel následně řešit vzniklé problémy.
Jako prodávající nesete rizika spojená nejen se samotným obchodem, ale i se stavem nemovitosti v době prodeje a pro minimalizaci rizik, je dobré se zamyslet nad uvedenými oblastmi.