Kladno, to je to město! Možná Vám to tak nepřipadá, ale bydlení v Kladně je jedna z nejchytřejších věcí, co můžete udělat. Za velmi slušnou cenu dostanete nadstandardní nový byt 4+kk, které má vše, co ke spokojenému životu potřebujete a navíc s jistotou, že díky budoucí rychlodráze (se stanicí nedaleko domu) se pohodlně dostanete do centra Prahy za 30min. Pořád váháte?
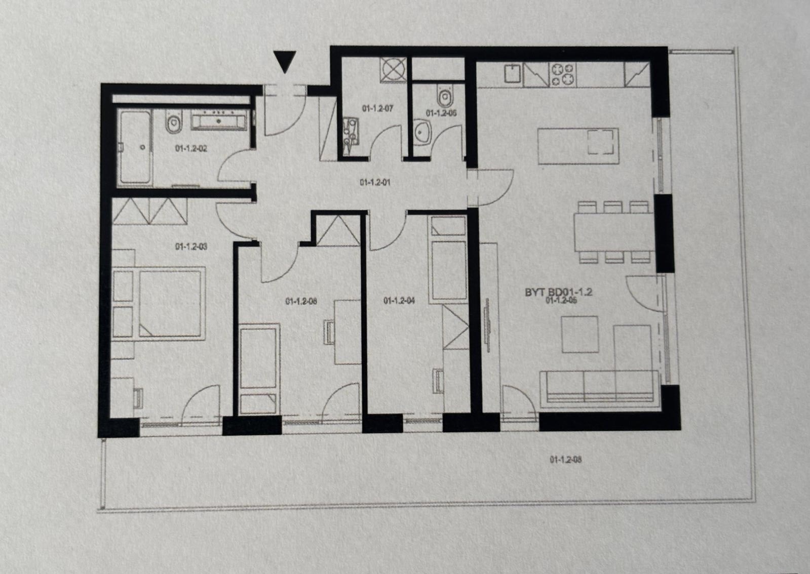
Byt se nachází ve zvýšeném prvním podlaží novostavby z roku 2026, je koncipovaný jako 4+kk s čistou podlahovou plochou 90,28m2, má velkou lodžii (+33,8m2), koupelnu s vanou, technickou místnost, dvě toalety, sklep a garážové stání. Pojďme se na to podívat podrobněji.
Vnitřní členění bytu je přesně jak má být, prakticky řešené, účelné i reprezentativní, dotažené do detailu. Srdcem bytu je 31,4m2 velký obývací pokoj s přípravou na kuchyňskou linku. Prostor je chytře řešený a je v nadčasovém designu. Vzdušnost a přirozené světlo pokoji dodávají velká okna a vstupy na zmíněnou prostornou lodžii s jižní a východní orientací.
Všechny tři ložnice jsou neprůchozí a mají pěknou výměru (13m2, 10,1m2, 10,8m2). Pěknou velikost má i koupelna (4,9m2) a je vybavena toaletou. Druhá toaleta je vedena samostatně. Úložné prostory řeší mj. zmíněná technická místnost a prostory na budoucí vestavěné skříně.
Velkolepým finále bytu je prostorná lodžie - ta se dozajista stane skvělým místem pro soukromá setkání s přáteli, ranní jógu, pěstování bylinek a večerní skleničku či víkendová grilování. Bytová jednotka je řešena ve vysokém standardu mj. kvalitní plovoucí podlaha, velkoformátová keramická dlažba, vnitřní dveře Hormann v bílé barvě, dřevěné zárubně, moderní sanita, podomítkové baterie.
Kvalitně postavený dům je zaměřen na energetickou úspornost, energetická náročnost budovy - A (mimořádně úsporná). V bytě je k dispozici rekuperace, přístup do domu je bezbariérový.
Jedná se o nový byt tj. doposavad nebydlený, kolaudace bytu proběhne v březnu letošního roku, následné předání v červnu tohoto roku.
Pro investory může být zajímavou informací, že od 1. ledna 2026 mohou členové bytových družstev odečítat od základu daně poměrnou část úroků z úvěru čerpaného samotným družstvem, pokud tyto úroky hradí v rámci anuity, čímž se rozšiřuje dřívější možnost odpočtu jen pro přímé úvěry poplatníků.
Poloha domu je zasazena do klidné a bezpečné kladenské čtvrti, s dobře dostupnou občanskou vybaveností a spoustou zeleně v okolí neboli možností rychlého úprku do přírody třeba za sportovními aktivitami.
Cena za převod družstevních práv a povinností činí 3.599.000.-Kč, budoucí nabyvatel přebírá zbývající anuitu ve výši 6.875.250.-Kč (měsíční splátka bude v rozmezí 30.269,-Kč - 34.480,-Kč). Možný převod do OV po 3 letech.
Garantujeme naprosto harmonický a bezproblémový proces převodu družstevního podílu + bezpečný převod úhrady za převod členského podílu - výběr schovatele dle preference klienta.
V tomto článku shrneme nejdůležitější věci, které byste si měli promyslet, pokud se chystáte prodat svou nemovitost a chcete, abyste s kupujícím nemusel následně řešit vzniklé problémy.
Jako prodávající nesete rizika spojená nejen se samotným obchodem, ale i se stavem nemovitosti v době prodeje a pro minimalizaci rizik, je dobré se zamyslet nad uvedenými oblastmi.
Realitní makléř má své nezastupitelné místo v realitním obchodu. Realitním makléřem nemyslím nevzdělané jelito, které absolvovalo dvoudenní školení a ví, jak se nahraje inzerát na inzertní portál.
Realitním makléřem, který se Vám skutečně vyplatí, je zkušený profesionál, který je schopen Vám dobře poradit jak prodat za co nejvíc a s nejmenším rizikem a hlavně je Vás schopen obratně provést celým realitním obchodem.
Uživatel serveru RealityMIX.iprima.cz (dále jen „Server“) dostupného na internetové adrese (URL) https://realitymix.iprima.cz, který provozuje společnost DALTEN media s.r.o., se sídlem Na Harfě 916/9a, Praha 9, 190 00, IČO: 271 35 306 (dále jen „Správce“) jako provozovateli tohoto Serveru uděluje svůj výslovný souhlas v souladu s ustanovením § 5 zákona č. 101/2000 Sb. O ochraně osobních údajů a o změně některých zákonů, v platném znění (dále jen „zákon o ochraně osobních údajů“), se zpracováním uživatelem poskytnutých osobních údajů a dalších dat.
Uživatel poskytuje Správci osobní údaje v rozsahu: jméno, příjmení, e-mailová adresa, telefonický kontakt a další data, a to z důvodu projeveného zájmu o nemovitost, kde prostřednictvím služby Serveru Správce osloví Uživatel inzerenta uvedeného v detailu
nemovitosti - Myšák reality (IČ 76070816) se zájmem o jeho služby.
Uživatel tyto osobní údaje poskytuje dobrovolně a bere na vědomí, že součástí služeb Správce, které Správce Uživateli poskytuje, je vyhledání všech Uživateli vyhovujících (dle parametrů - cena, typ nemovitosti, lokalita atd.) nemovitostí. Správce za tímto účelem provozuje aplikace Hlídací pes a newsletter. Tyto služby je možné z každého zaslaného emailu odhlásit. Souhlas se zpracováním osobních údajů Uživatel poskytuje Správci na dobu neurčitou s tím, že svůj udělený souhlas může Uživatel kdykoliv na drese správce info@realitymix.cz odvolat. Správce garantuje Uživateli i další práva uvedené v ustanovení §11 a §21 zákoba č. 101/200 Sb. Ve znění pozdějších předpisů.
Více informací o zpracování údajů získáte zde (realitymix.cz/zasady-ochrany-osobnich-udaju)