Prodej NOVOSTAVBY rodinného domu 4 kk 155 m2 Holýšov
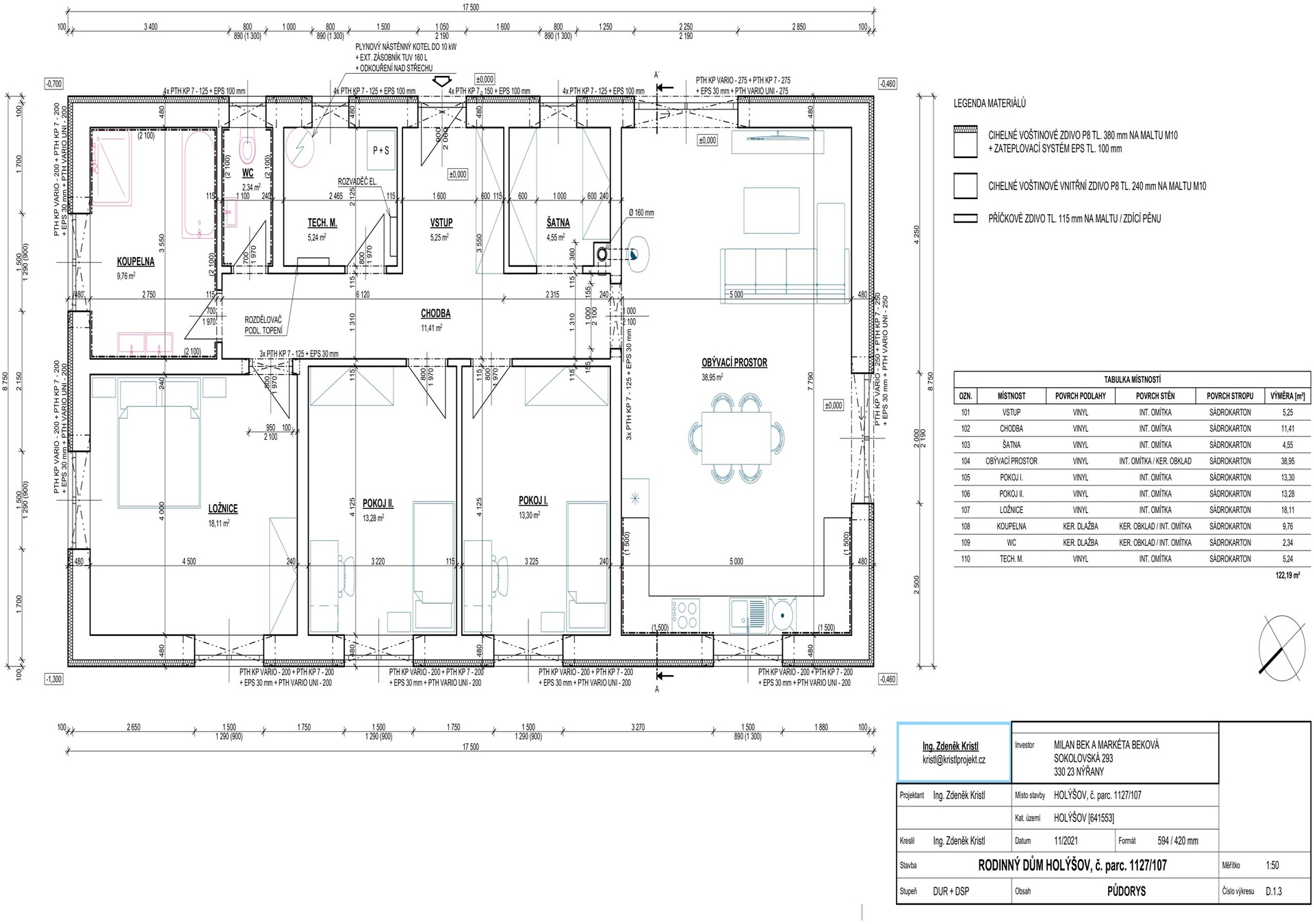
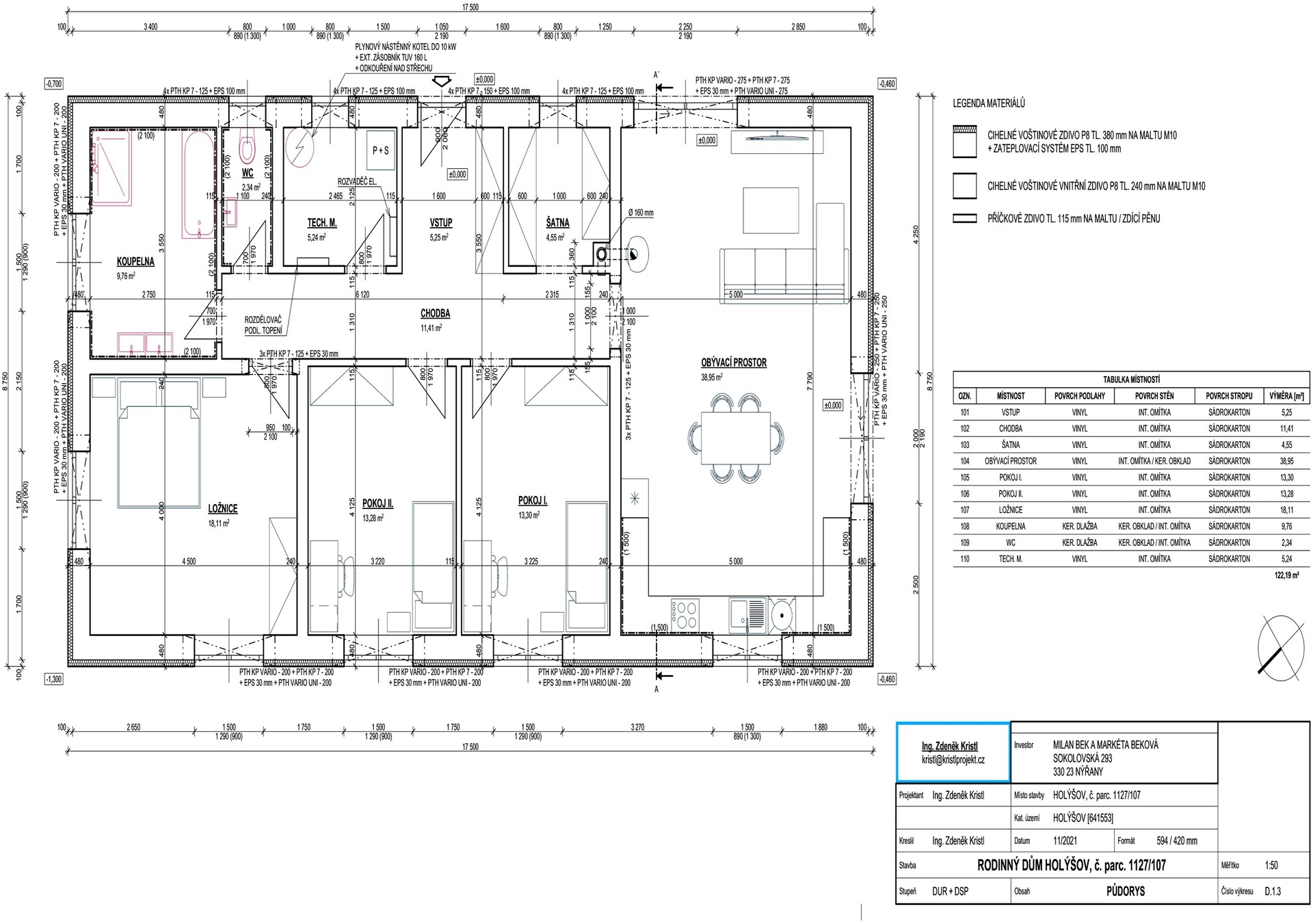
Nabízíme k prodeji novostavbu rodinného domu o celkové užitné ploše 122,2 m2 a zastavěné ploše 155 m2
- čistá užitná plocha obytných místností je 122,2 m2
- obývací pokoj s kuchyňským a jídelním koutem s vchodem na terasy domu
- 3 samostatné pokoje
- šatna
- koupelna, samostatná toaleta
- velká technická místnost s druhou toaletou
- vytápění a ohřev vody plynový kotel
- boiler obsah 120 l
- velmi nízké provozní náklady celého domu PENB C
- topení plyn - podlahového topení celého domu
- topení je možné doplnit i kombinací elektrokotel, či tepelné čerpadlo
- voda - městský vodovod
- odpady - obecní kanalizace
- možnost umístění krbu či krbových kamen
- kvalitní plastová okna s izolačními trojskly
- venkovní předokenní žaluzie "Z" na elektrické ovládání
Při výstavbě a celkové realizaci domu byl kladen velký důraz na použití kvalitních materiálů.
- výstavba 2024 , kolaudace 2025
- prodávající poskytne zájemci kompletní fotodokumentaci z průběhu výstavby, elektroinstalací,
instalace topení, vody, zateplovaní atd
- nový majitel dokončí nemovitost přesně dle svých představ a designu materiálů jako jsou krytiny podlah,
obklady a sanita koupelny a wc a realizace kuchyně, zahrady a oplocení
- poloha domu a umístění domu na pozemku poskytuje absolutní soukromí
- krásný pozemek v blízkosti lesa
- perfektní dostupnost dálnice D5, centra města Plzně a dalších měst
- velmi klidná část obce v dostupnosti přírody, cyklostezky a další možnosti aktivního odpočinku
- v blízkosti zároveň veškerá občanská vybavenost, školky, školy, lékárna, obchody, restaurace, kavárny a další
- minimální provoz v této lokalitě, vjezd pouze rezidenti
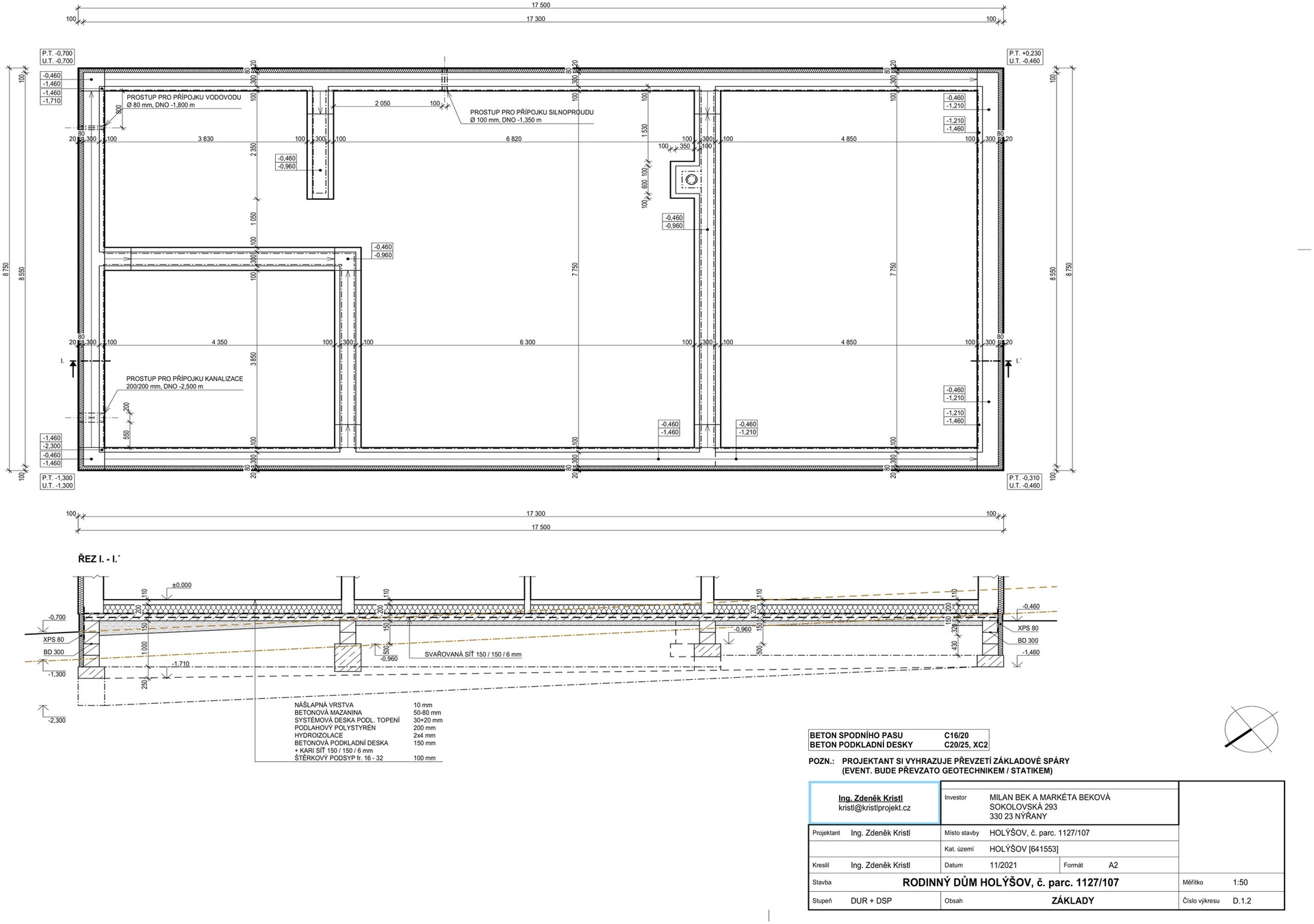
- použité plánky půdorysů jsou pouze s orientačními rozměry, zájemce obdrží přesné stavební výkresy a půdorysy
- prodávající si vyhrazuje právo vybrat a určit si kupujícího
- pro financování a dokončení realizace domu Vám doporučím odborníky v oboru
Cena:
8 360 000 Kč
Číslo zakázky:
REALITYMIX-00101
Podrobné informace
Poloha objektu:samostatný
Druh objektu:cihlová
Stav objektu:novostavba
Počet podlaží objektu:1
Typ domu:přízemní
Zastavěná plocha:155 m²
Plocha parcely:979 m²
Zahrada:824 m²
Užitná plocha:122 m²
Terasa:30 m²
Ostatní:Bezbarierový přístup, Parkoviště
Umístění objektu:klidná část obce
Doprava:vlak, dálnice, silnice, autobus
Komunikace:asfaltová
Elektřina:Elektro - 230 V
Voda:Voda - dálkový vodovod
Telekomunikace:Telefon, Internet
Plyn:Plynovod
Topení:Lokální - tuhá paliva, Ústřední - plynové, Jiné
V tomto článku shrneme nejdůležitější věci, které byste si měli promyslet, pokud se chystáte prodat svou nemovitost a chcete, abyste s kupujícím nemusel následně řešit vzniklé problémy.
Jako prodávající nesete rizika spojená nejen se samotným obchodem, ale i se stavem nemovitosti v době prodeje a pro minimalizaci rizik, je dobré se zamyslet nad uvedenými oblastmi.
Realitní makléř má své nezastupitelné místo v realitním obchodu. Realitním makléřem nemyslím nevzdělané jelito, které absolvovalo dvoudenní školení a ví, jak se nahraje inzerát na inzertní portál.
Realitním makléřem, který se Vám skutečně vyplatí, je zkušený profesionál, který je schopen Vám dobře poradit jak prodat za co nejvíc a s nejmenším rizikem a hlavně je Vás schopen obratně provést celým realitním obchodem.
Uživatel serveru RealityMIX.iprima.cz (dále jen „Server“) dostupného na internetové adrese (URL) https://realitymix.iprima.cz, který provozuje společnost DALTEN media s.r.o., se sídlem Na Harfě 916/9a, Praha 9, 190 00, IČO: 271 35 306 (dále jen „Správce“) jako provozovateli tohoto Serveru uděluje svůj výslovný souhlas v souladu s ustanovením § 5 zákona č. 101/2000 Sb. O ochraně osobních údajů a o změně některých zákonů, v platném znění (dále jen „zákon o ochraně osobních údajů“), se zpracováním uživatelem poskytnutých osobních údajů a dalších dat.
Uživatel poskytuje Správci osobní údaje v rozsahu: jméno, příjmení, e-mailová adresa, telefonický kontakt a další data, a to z důvodu projeveného zájmu o nemovitost, kde prostřednictvím služby Serveru Správce osloví Uživatel inzerenta uvedeného v detailu
nemovitosti - Hedvika Varcholková (IČ 66978203) se zájmem o jeho služby.
Uživatel tyto osobní údaje poskytuje dobrovolně a bere na vědomí, že součástí služeb Správce, které Správce Uživateli poskytuje, je vyhledání všech Uživateli vyhovujících (dle parametrů - cena, typ nemovitosti, lokalita atd.) nemovitostí. Správce za tímto účelem provozuje aplikace Hlídací pes a newsletter. Tyto služby je možné z každého zaslaného emailu odhlásit. Souhlas se zpracováním osobních údajů Uživatel poskytuje Správci na dobu neurčitou s tím, že svůj udělený souhlas může Uživatel kdykoliv na drese správce info@realitymix.cz odvolat. Správce garantuje Uživateli i další práva uvedené v ustanovení §11 a §21 zákoba č. 101/200 Sb. Ve znění pozdějších předpisů.
Více informací o zpracování údajů získáte zde (realitymix.cz/zasady-ochrany-osobnich-udaju)