Rodinný dům s dvěma byty, zahradou a dvěma garážemi - Rožnov, České Budějovice.
Nabízíme na prodej patrový rodinný dům se dvěma byty o dispozici 3+kk a 2+1, který se nachází na krásném, klidném místě v Rožnově, oblíbené části Českých Budějovic. Dům byl postaven v roce 1975 a po celou dobu ho obývala jedna velká rodina, která se o něj pečlivě starala, a proto je dnes ve velmi dobrém stavu a ihned připravený k bydlení.
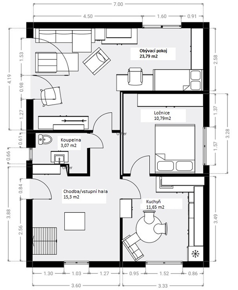
Celková obytná plocha domu je 124 m², zastavěná plocha činí 79 m² a celý pozemek má výměru 545 m².
V 1.NP je bytová jednotka o dispozici 2+1, v 2.NP se nachází byt 3+kk. Oba byty jsou velmi světlé. Každý má vlastní balkon a koupelnu se sprchovým koutem.
Dům je celý podsklepený – v suterénu se nachází garáž, kotelna s kamny na tuhá paliva, sklepní prostory a prádelna, kde je umístěn plynový kotel.
Na zahradě stojí druhá garáž o velikosti 33 m², která je rozdělena na část pro parkování a samostatný sklad na zahradní vybavení či sezónní věci. Na garáž navazuje dřevěná pergola s venkovní kuchyňkou, kde se nachází ideální místo pro posezení s přáteli a rodinou. Zahrada je útulná s několika ovocnými stromy, ideální pro odpočinek nebo pěstování květin a zeleniny.
Měsíční náklady na provoz domu činí přibližně 6.500 Kč. Některé vybavení domu je možné po dohodě ponechat.
Předání domu je naplánované na červenec 2026.
Dům se nachází v klidné lokalitě s výbornou dostupností do centra města – autem nebo MHD jste v centru do 10 minut.
V blízkosti je veškerá občanská vybavenost – škola, školka, supermarket Billa, obchody i zastávka MHD. Nedaleko protéká řeka Vltava, která dodává místu příjemnou atmosféru a nabízí možnosti pro procházky, cyklovýlety, rybaření a koupání.
Tento dům je ideální pro velkou rodinu nebo lze využít pro dvougenerační bydlení či spojení vlastního bydlení s pronájmem. Nabízí dostatek prostoru, soukromí i příjemné zázemí pro celou rodinu.
Pokud hledáte klidné místo k životu na kraji města, tento dům může být přesně tím, co hledáte.
Nabízíme hypoteční servis zdarma - naši hypoteční poradci řeší úvěry u všech bankovních domů za nejlepších podmínek na trhu.
Cena:
Rezervováno
Číslo zakázky:
REALITYMIX-CB251004
Podrobné informace
Poloha objektu:samostatný
Druh objektu:cihlová
Stav objektu:velmi dobrý
Počet podlaží objektu:2
Typ domu:patrový
Zastavěná plocha:79 m²
Plocha parcely:545 m²
Zahrada:433 m²
Užitná plocha:124 m²
Umístění objektu:klidná část obce
Komunikace:asfaltová
Elektřina:Elektro - 230 V, Elektro - 400 V
Voda:Voda - dálkový vodovod
Plyn:Plynovod
Topení:Lokální - plynové, Lokální - tuhá paliva
Odpad:Kanalizace
Energetická náročnost budovy:F - Velmi nehospodárná
V tomto článku shrneme nejdůležitější věci, které byste si měli promyslet, pokud se chystáte prodat svou nemovitost a chcete, abyste s kupujícím nemusel následně řešit vzniklé problémy.
Jako prodávající nesete rizika spojená nejen se samotným obchodem, ale i se stavem nemovitosti v době prodeje a pro minimalizaci rizik, je dobré se zamyslet nad uvedenými oblastmi.
Realitní makléř má své nezastupitelné místo v realitním obchodu. Realitním makléřem nemyslím nevzdělané jelito, které absolvovalo dvoudenní školení a ví, jak se nahraje inzerát na inzertní portál.
Realitním makléřem, který se Vám skutečně vyplatí, je zkušený profesionál, který je schopen Vám dobře poradit jak prodat za co nejvíc a s nejmenším rizikem a hlavně je Vás schopen obratně provést celým realitním obchodem.
Uživatel serveru RealityMIX.iprima.cz (dále jen „Server“) dostupného na internetové adrese (URL) https://realitymix.iprima.cz, který provozuje společnost DALTEN media s.r.o., se sídlem Na Harfě 916/9a, Praha 9, 190 00, IČO: 271 35 306 (dále jen „Správce“) jako provozovateli tohoto Serveru uděluje svůj výslovný souhlas v souladu s ustanovením § 5 zákona č. 101/2000 Sb. O ochraně osobních údajů a o změně některých zákonů, v platném znění (dále jen „zákon o ochraně osobních údajů“), se zpracováním uživatelem poskytnutých osobních údajů a dalších dat.
Uživatel poskytuje Správci osobní údaje v rozsahu: jméno, příjmení, e-mailová adresa, telefonický kontakt a další data, a to z důvodu projeveného zájmu o nemovitost, kde prostřednictvím služby Serveru Správce osloví Uživatel inzerenta uvedeného v detailu
nemovitosti - SORENT-CB s.r.o. (IČ 28104102) se zájmem o jeho služby.
Uživatel tyto osobní údaje poskytuje dobrovolně a bere na vědomí, že součástí služeb Správce, které Správce Uživateli poskytuje, je vyhledání všech Uživateli vyhovujících (dle parametrů - cena, typ nemovitosti, lokalita atd.) nemovitostí. Správce za tímto účelem provozuje aplikace Hlídací pes a newsletter. Tyto služby je možné z každého zaslaného emailu odhlásit. Souhlas se zpracováním osobních údajů Uživatel poskytuje Správci na dobu neurčitou s tím, že svůj udělený souhlas může Uživatel kdykoliv na drese správce info@realitymix.cz odvolat. Správce garantuje Uživateli i další práva uvedené v ustanovení §11 a §21 zákoba č. 101/200 Sb. Ve znění pozdějších předpisů.
Více informací o zpracování údajů získáte zde (realitymix.cz/zasady-ochrany-osobnich-udaju)