Prodej bytu 1+kk DB Brno – Slatina, ul. Blažovická
Prodej cihlového družstevního bytu o velikosti 1+kk v Brně - Slatině na ulici Blažovická.
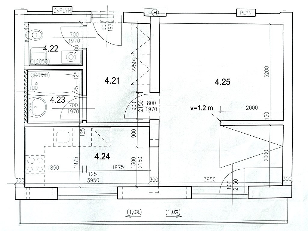
Byt je z roku 2008, nachází ve 3. patře (poslední patro, bez výtahu) o celkové výměře 52,2 m2, podlahová plocha 40,7 m2.
Dispozice: předsíň 6,4 m2, koupelna 3 m2, WC 2,3 m2, obývací pokoj s kuchyňským koutem 28,9 m2, terasa s markýzou 6,3 m2, komora na patře (sklep) 5,3 m2.
Vybavení: bezpečnostní vchodové dveře, plastová okna s bambusovými žaluziemi, vytápění – vlastní plynový kotel a bojler na ohřev teplé vody, v celém bytě plovoucí podlaha, pouze v koupelně a na WC dlažba, osvětlení.
Kuchyně – kuch.linka, digestoř, elektrický sporák i trouba, lednice s mrazákem, stůl, 2x židle,
obývací pokoj – poličky, rozkládací sedačka, komoda, příčka oddělující spací kout,
předsíň – bezpečnostní dveře, trojdílná šatní skříň, úložný prostor nad skříní, botník,
koupelna – umyvadlo, vana, skříňka, zrcadlo, otopný žebřík,
WC – plynový kotel BAXI, bojler na ohřev vody, pračka, poličky,
komora (sklep) – regály na míru.
Veškeré vybavení je součástí kupní ceny.
V domě společná kočárkárna a TV anténa.
Bezplatný převod bytu do osobního vlastnictví je možný v roce 2028.
Měsíční poplatky družstvu 1.098,-Kč (z toho fond oprav 322,-Kč) + záloha na elektřinu 800,-Kč, plyn 1.000,-Kč, internet Vodafone 600,-Kč. Celkové měsíční náklady jsou velmi nízké 3.500,-Kč.
Byt je velice dobře situovaný: výborná dostupnost CT parku, letiště, dálnice D1, 13 min trolejbusem na hlavní nádraží v Brně.
Ideální nejen k bydlení, ale i na investici (v současné době je byt pronajatý za částku 14.000,-Kč/měsíc + energie a služby).
Cena:
5 900 000 Kč
Dispozice/podlahová plocha:
1+kk/52 m²
Číslo zakázky:
REALITYMIX-52989
Podrobné informace
Dispozice bytu:1+kk
Číslo podlaží v domě:4
Počet podlaží objektu:4
Celková podlahová plocha:52 m²
Druh objektu:cihlová
Stav objektu:velmi dobrý
Vlastnictví:družstevní
Sklep:5 m²
Terasa:6 m²
Vybaveno:ano
Energetická náročnost budovy:C - Úsporná
Ukazatel energetické náročnosti budovy:104 kWh/m²
Energetický ukazatel podle vyhlášky:č. 78/2013 Sb.
V tomto článku shrneme nejdůležitější věci, které byste si měli promyslet, pokud se chystáte prodat svou nemovitost a chcete, abyste s kupujícím nemusel následně řešit vzniklé problémy.
Jako prodávající nesete rizika spojená nejen se samotným obchodem, ale i se stavem nemovitosti v době prodeje a pro minimalizaci rizik, je dobré se zamyslet nad uvedenými oblastmi.
Uživatel serveru RealityMIX.iprima.cz (dále jen „Server“) dostupného na internetové adrese (URL) https://realitymix.iprima.cz, který provozuje společnost DALTEN media s.r.o., se sídlem Na Harfě 916/9a, Praha 9, 190 00, IČO: 271 35 306 (dále jen „Správce“) jako provozovateli tohoto Serveru uděluje svůj výslovný souhlas v souladu s ustanovením § 5 zákona č. 101/2000 Sb. O ochraně osobních údajů a o změně některých zákonů, v platném znění (dále jen „zákon o ochraně osobních údajů“), se zpracováním uživatelem poskytnutých osobních údajů a dalších dat.
Uživatel poskytuje Správci osobní údaje v rozsahu: jméno, příjmení, e-mailová adresa, telefonický kontakt a další data, a to z důvodu projeveného zájmu o nemovitost, kde prostřednictvím služby Serveru Správce osloví Uživatel inzerenta uvedeného v detailu
nemovitosti - GAUTE, a.s. (IČ 25543709) se zájmem o jeho služby. Tato společnost je součástí seskupení/sítě/franšízového modelu realitních kanceláří, jejich seznam můžete zobrazit kliknutím na tento odkaz.
Bramley, s.r.o. (IČ 26306735) , GAUTE, a.s. (IČ 25543709)
Uživatel tyto osobní údaje poskytuje dobrovolně a bere na vědomí, že součástí služeb Správce, které Správce Uživateli poskytuje, je vyhledání všech Uživateli vyhovujících (dle parametrů - cena, typ nemovitosti, lokalita atd.) nemovitostí. Správce za tímto účelem provozuje aplikace Hlídací pes a newsletter. Tyto služby je možné z každého zaslaného emailu odhlásit. Souhlas se zpracováním osobních údajů Uživatel poskytuje Správci na dobu neurčitou s tím, že svůj udělený souhlas může Uživatel kdykoliv na drese správce info@realitymix.cz odvolat. Správce garantuje Uživateli i další práva uvedené v ustanovení §11 a §21 zákoba č. 101/200 Sb. Ve znění pozdějších předpisů.
Více informací o zpracování údajů získáte zde (realitymix.cz/zasady-ochrany-osobnich-udaju)