Prodej rodinného domu s přístavkem - možnost druhé bytové jednotky, Bříství, okr. Nymburk
Nabízíme k prodeji kompletně zrekonstruovaný rodinný dům (181 m2) s přístavkem (60 m2), jehož dispozice umožňuje vybudování samostatné druhé bytové je dnotky. Jde o ideální řešení pro vícegenerační bydlení, zázemí pro rodiče či dospělé děti, případně pro propojení bydlení s podnikáním z domova.
Dům se nachází v klidné části obce Bříství, ve slepé ulici bez provozu, s výbornou dostupností do Prahy i okolních měst.
Rodinný dům
Hlavní dům prošel v letech 2010-2014 kompletní rekonstrukcí:
- zateplení fasády (polystyren 100 mm) a nová omítka,
- nová plastová okna, dveře a podlahy, nový krov a střešní krytina Tondach,
- kompletní nové rozvody elektřiny, vody a kanalizace,
- vložkované komíny (v obývacím pokoji pro krbová kamna, v předsíni pro kotel),
- kuchyně na míru,
- zabezpečovací systém
- schodiště se sedačkovým výtahem na dálkové ovládání.
Vytápění zajišťuje zplynovací kotel Blaze Harmony Green BG24 na dřevo, dvě akumulační nádrže (2×1000 l), elektrokotel a radiátory.
- Akumulační nádoby vystačí na 24 hodin vytápění domu, kotel lze ovládat přes mobil. Ohřev vody zajišťuje elektrický bojler.
Technologie a vybavení
- Fotovoltaika 10 kW se dvěma bateriemi (2×5 kW), domácí nabíjecí stanice wallbox 11 kW pro elektromobil, klimatizace ve třech místnostech, internet O2, zabezpečovací systém Jablotron,
- dva zdroje vody - veřejný vodovod a vrtaná studna (14 m) s vodárnou, veřejná kanalizace,
- pergola, zámková dlažba a brána na dálkové ovládání.
Energie a provozní náklady
- Dům je napojen na obecní vodovod, měsíční náklady činí cca 1500 Kč.
- Fotovoltaika umožňuje sdílení vyrobené elektřiny například s rodinou nebo druhým domem, platí se pouze poplatky za distribuci.
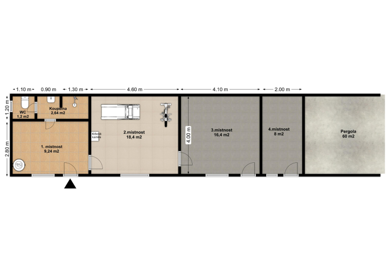
Přístavek - připravený pro druhou jednotku
- Rekonstrukce v letech 2018-2023 zahrnovala novou elektroinstalaci, rozvody vody, kanalizace i topení, plastová okna a zateplenou fasádu. Nyní slouží jako technická místnost, kotelna, tělocvična, sklad a dílna s možností přestavby na obytnou část.
- Na přístavek navazuje pergola cca 13 × 4,6 m a sklep 4 × 3 m. Lze z něj vytvořit samostatnou bytovou jednotku s vlastním vstupem.
Občanská vybavenost
V obci je vodovod, kanalizace a datové sítě. Buduje se nová mateřská škola, v místě je dětské hřiště, sportoviště i kulturní sál.
Základní škola, obchody a lékař jsou v Českém Brodě (7 km). V okolí Nymburk, Pečky, Sadská a Kolín - vše do 10-20 minut jízdy.
Dopravní dostupnost
- Autem do Prahy cca 15 min po D11 (sjezd 18 km).
- Autobusové linky 398, 661, 888 zajišťují spojení do okolních měst i Prahy,
- Vlakem z Českého Brodu na Hlavní nádraží Praha asi 30 min.
Shrnutí
- Možnost druhé bytové jednotky nebo podnikání, kompletní rekonstrukce 2010-2023, fotovoltaika, klimatizace, wallbox, dva zdroje vody, pergola, brána na DO, klidná lokalita, výborné spojení do Prahy.
Další výhody
Hypoteční servis zdarma, pomoc s financováním u všech bank a možnost družstevního bydlení bez nu.
Cena:
11 690 000 Kč
Poznámka:
Právní servis a provize RK součástí nabízené ceny
Datum k nastěhování:
20.10.2025
Číslo zakázky:
REALITYMIX-231555
Podrobné informace
Poloha objektu:samostatný
Druh objektu:cihlová
Stav objektu:velmi dobrý
Počet podlaží objektu:2
Typ domu:patrový
Zastavěná plocha:181 m²
Plocha parcely:407 m²
Užitná plocha:242 m²
Sklep:12 m²
Umístění objektu:klidná část obce
Doprava:dálnice, silnice, MHD, autobus
Komunikace:asfaltová
Elektřina:Elektro - 230 V, Elektro - 380 V
Voda:Zdroj pro celý objekt, Voda - dálkový vodovod
Telekomunikace:Internet
Topení:Lokální - elektrické, Jiné
Odpad:Kanalizace
Ostatní rozvody:Kabelové rozvody, Ostatní rozvody
Energetická náročnost budovy:C - Vyhovující
Popis vybavení:Vytápění:
- zplynovací kotel Blaze Harmony Green BG24 na dřevo s podavačem,
2× akumulační nádrž (1000 l), elektrokotel, měděné rozvody a radiátory.
- Akumulační nádoby vystačí na 24h vytápění domu.
V tomto článku shrneme nejdůležitější věci, které byste si měli promyslet, pokud se chystáte prodat svou nemovitost a chcete, abyste s kupujícím nemusel následně řešit vzniklé problémy.
Jako prodávající nesete rizika spojená nejen se samotným obchodem, ale i se stavem nemovitosti v době prodeje a pro minimalizaci rizik, je dobré se zamyslet nad uvedenými oblastmi.
Realitní makléř má své nezastupitelné místo v realitním obchodu. Realitním makléřem nemyslím nevzdělané jelito, které absolvovalo dvoudenní školení a ví, jak se nahraje inzerát na inzertní portál.
Realitním makléřem, který se Vám skutečně vyplatí, je zkušený profesionál, který je schopen Vám dobře poradit jak prodat za co nejvíc a s nejmenším rizikem a hlavně je Vás schopen obratně provést celým realitním obchodem.
Uživatel serveru RealityMIX.iprima.cz (dále jen „Server“) dostupného na internetové adrese (URL) https://realitymix.iprima.cz, který provozuje společnost DALTEN media s.r.o., se sídlem Na Harfě 916/9a, Praha 9, 190 00, IČO: 271 35 306 (dále jen „Správce“) jako provozovateli tohoto Serveru uděluje svůj výslovný souhlas v souladu s ustanovením § 5 zákona č. 101/2000 Sb. O ochraně osobních údajů a o změně některých zákonů, v platném znění (dále jen „zákon o ochraně osobních údajů“), se zpracováním uživatelem poskytnutých osobních údajů a dalších dat.
Uživatel poskytuje Správci osobní údaje v rozsahu: jméno, příjmení, e-mailová adresa, telefonický kontakt a další data, a to z důvodu projeveného zájmu o nemovitost, kde prostřednictvím služby Serveru Správce osloví Uživatel inzerenta uvedeného v detailu
nemovitosti - Bidli reality, a.s. (IČ 06790763) se zájmem o jeho služby. Tato společnost je součástí seskupení/sítě/franšízového modelu realitních kanceláří, jejich seznam můžete zobrazit kliknutím na tento odkaz.
Hypocentrum modré pyramidy - Praha (IČ ) , Hypocentrum modré pyramidy - Brno (IČ ) , Hypocentrum Modré pyramidy - Hradec Králové (IČ ) , Hypocentrum Modré pyramidy - České Budějovice (IČ ) , Hypocentrum Modré pyramidy - Pardubice (IČ ) , Hypocentrum Modré pyramidy - Plzeň (IČ ) , Hypocentrum Modré pyramidy - Ústí nad Labem (IČ ) , Hypocentrum Modré pyramidy - Ostrava (IČ ) , Hypocentrum Modré pyramidy - Olomouc (IČ ) , Bidli reality, a.s. (IČ 06790763)
Uživatel tyto osobní údaje poskytuje dobrovolně a bere na vědomí, že součástí služeb Správce, které Správce Uživateli poskytuje, je vyhledání všech Uživateli vyhovujících (dle parametrů - cena, typ nemovitosti, lokalita atd.) nemovitostí. Správce za tímto účelem provozuje aplikace Hlídací pes a newsletter. Tyto služby je možné z každého zaslaného emailu odhlásit. Souhlas se zpracováním osobních údajů Uživatel poskytuje Správci na dobu neurčitou s tím, že svůj udělený souhlas může Uživatel kdykoliv na drese správce info@realitymix.cz odvolat. Správce garantuje Uživateli i další práva uvedené v ustanovení §11 a §21 zákoba č. 101/200 Sb. Ve znění pozdějších předpisů.
Více informací o zpracování údajů získáte zde (realitymix.cz/zasady-ochrany-osobnich-udaju)