Prodej rodinného domu 4+kk ve fázi výstavby s garáží a terasou
Nabízíme k prodeji rozestavěný rodinný dům o dispozici 4+kk s garáží a prostornou terasou, situovaný v klidné a vyhledávané lokalitě Zruče nad Sázavou.
Nemovitost představuje ideální příležitost pro klienty, kteří hledají moderní bydlení s krásným výhledem a současně chtějí finální podobu domu přizpůsobit vlastním představám.
Dům je realizován na základě kompletní projektové dokumentace s platným stavebním povolením (2025). Stavbu je možné převzít okamžitě a plynule pokračovat v dokončení.
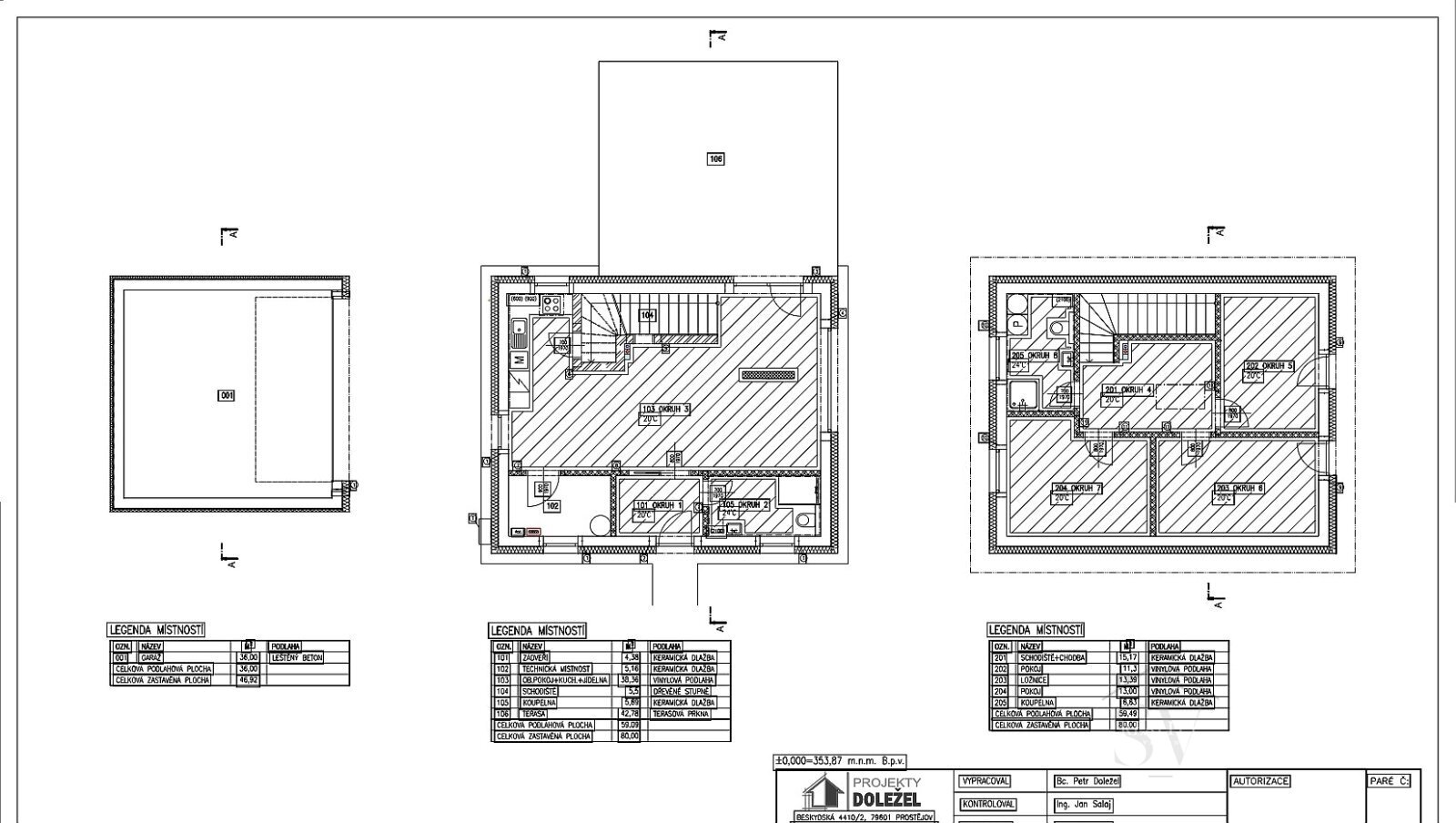
Dispoziční řešení 4+kk nabízí komfortní a funkční prostor pro rodinné bydlení. Podlahová (užitná) plocha domu činí 118,58 m², zastavěná plocha domu je 80 m². Součástí projektu je garáž o velikosti 36 m² a prostorná terasa o výměře 42,78 m², která přirozeně navazuje na obytnou část domu.
Architektonické řešení citlivě pracuje se svažitým terénem a klade důraz na dostatek denního světla, soukromí a maximální využití krásného otevřeného výhledu do okolní krajiny.
Pozemek o velikosti 479 m² je řešen účelně a efektivně, s minimálními nároky na údržbu, což ocení zejména klienti preferující moderní a bezstarostný životní styl.
Součástí prezentace nemovitosti je promo video s vloženou vizualizací budoucí podoby domu a rovněž vizualizační fotografie zpracované dle projektové dokumentace, která je samozřejmě k dispozici.
Inženýrské sítě: elektrická přípojka je hotová, voda vedena v komunikaci (připojení schváleno ve stavebním povolení), odpad řešen jímkou (alternativně možnost ČOV)
Hlavní přednosti nemovitosti:
-moderní rodinný dům 4+kk
-podlahová / užitná plocha domu 118,58 m², garáž o velikosti 36 m² a terasa 42,78 m²
-krásný otevřený výhled
-vysoká míra soukromí
-klidná slepá ulice s minimálním provozem
-možnost dokončení dle vlastních představ
-možnost okamžitého pokračování ve výstavbě
-nízké nároky na údržbu pozemku
Nemovitost se nachází v atraktivní a klidné lokalitě Zruč nad Sázavou, která nabízí ideální kombinaci přírody, občanské vybavenosti a kvalitního životního stylu.
V okolí naleznete: zámek a zámecký park, turistické a cyklistické trasy Posázaví, sportovní i rekreační vyžití podél řeky Sázavy, kompletní občanskou vybavenost (školy, obchody, služby, zdravotní péče).
Lokalita je dobře dostupná veřejnou dopravou i vlakovým spojením.
Nemovitost představuje ideální příležitost pro klienty hledající moderní bydlení v klidném prostředí s možností dokončení domu podle vlastních představ.
V tomto článku shrneme nejdůležitější věci, které byste si měli promyslet, pokud se chystáte prodat svou nemovitost a chcete, abyste s kupujícím nemusel následně řešit vzniklé problémy.
Jako prodávající nesete rizika spojená nejen se samotným obchodem, ale i se stavem nemovitosti v době prodeje a pro minimalizaci rizik, je dobré se zamyslet nad uvedenými oblastmi.
Realitní makléř má své nezastupitelné místo v realitním obchodu. Realitním makléřem nemyslím nevzdělané jelito, které absolvovalo dvoudenní školení a ví, jak se nahraje inzerát na inzertní portál.
Realitním makléřem, který se Vám skutečně vyplatí, je zkušený profesionál, který je schopen Vám dobře poradit jak prodat za co nejvíc a s nejmenším rizikem a hlavně je Vás schopen obratně provést celým realitním obchodem.
Uživatel serveru RealityMIX.iprima.cz (dále jen „Server“) dostupného na internetové adrese (URL) https://realitymix.iprima.cz, který provozuje společnost DALTEN media s.r.o., se sídlem Na Harfě 916/9a, Praha 9, 190 00, IČO: 271 35 306 (dále jen „Správce“) jako provozovateli tohoto Serveru uděluje svůj výslovný souhlas v souladu s ustanovením § 5 zákona č. 101/2000 Sb. O ochraně osobních údajů a o změně některých zákonů, v platném znění (dále jen „zákon o ochraně osobních údajů“), se zpracováním uživatelem poskytnutých osobních údajů a dalších dat.
Uživatel poskytuje Správci osobní údaje v rozsahu: jméno, příjmení, e-mailová adresa, telefonický kontakt a další data, a to z důvodu projeveného zájmu o nemovitost, kde prostřednictvím služby Serveru Správce osloví Uživatel inzerenta uvedeného v detailu
nemovitosti - Reality Stanislava Vondráková (IČ 76068684) se zájmem o jeho služby.
Uživatel tyto osobní údaje poskytuje dobrovolně a bere na vědomí, že součástí služeb Správce, které Správce Uživateli poskytuje, je vyhledání všech Uživateli vyhovujících (dle parametrů - cena, typ nemovitosti, lokalita atd.) nemovitostí. Správce za tímto účelem provozuje aplikace Hlídací pes a newsletter. Tyto služby je možné z každého zaslaného emailu odhlásit. Souhlas se zpracováním osobních údajů Uživatel poskytuje Správci na dobu neurčitou s tím, že svůj udělený souhlas může Uživatel kdykoliv na drese správce info@realitymix.cz odvolat. Správce garantuje Uživateli i další práva uvedené v ustanovení §11 a §21 zákoba č. 101/200 Sb. Ve znění pozdějších předpisů.
Více informací o zpracování údajů získáte zde (realitymix.cz/zasady-ochrany-osobnich-udaju)