Luxusní byt 4+kk, 131m², s terasou - Hřebíčkova, Zlín Malenovice
Hledáte opravdu mimořádný byt, kde se moderní technologie snoubí s elegancí a maximálním komfortem? Mgr. Alice Nováková & Explicit Reality pro vás připravili do posledního detailu vyladěný byt, kde každý centimetr vyzařuje preciznost a vkus.
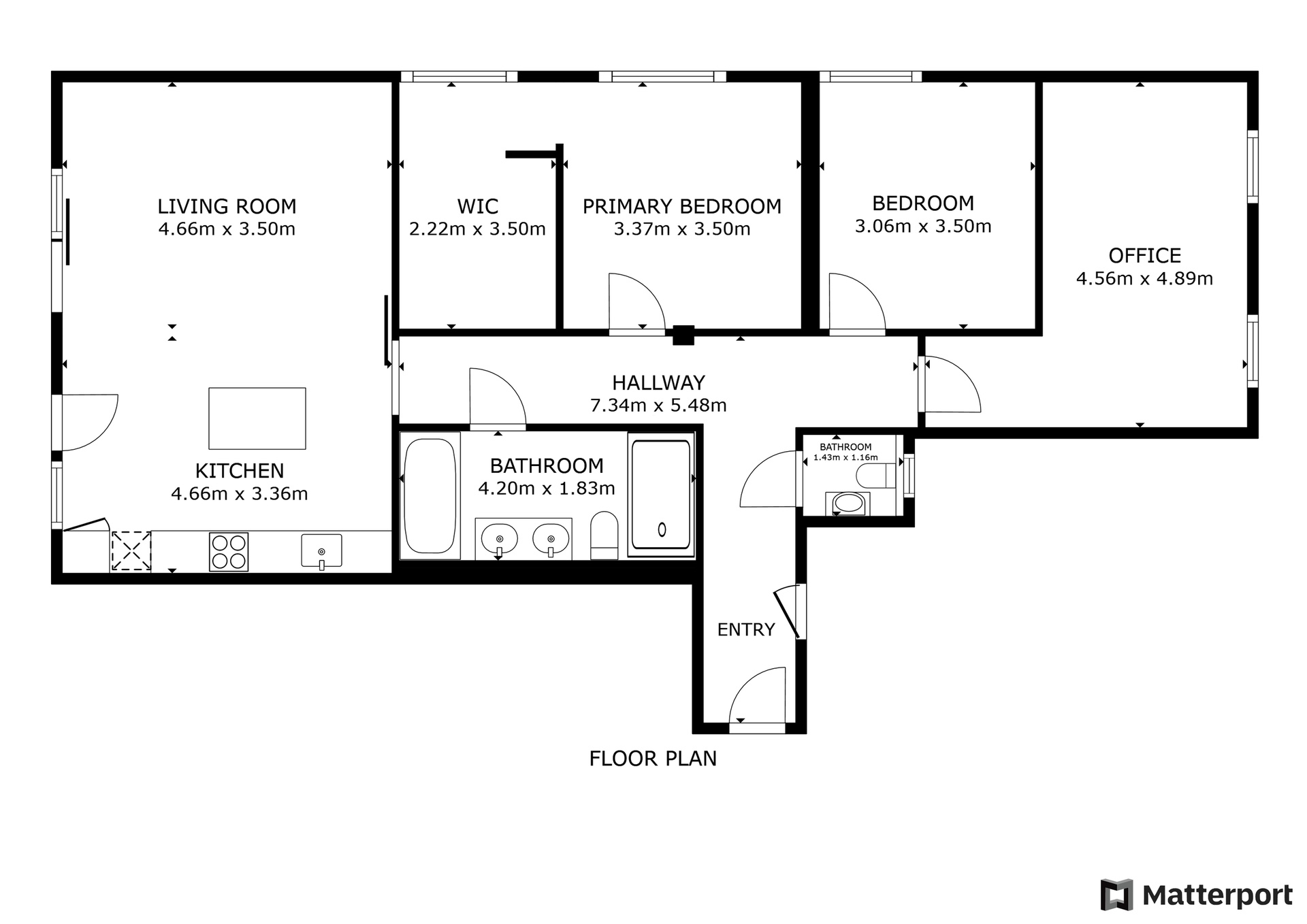
Tato krásná nemovitost s dispozicí 4+kk a terasou je situovaná ve druhém patře stylové novostavby a nabízí velkorysou plochu 131 m².
Interiér je vybaven luxusními švýcarskými podlahami na míru, které kombinují špičkovou estetiku, odolnost a zdravotní nezávadnost. Pod povrchem se skrývá podlahové vytápění, které poskytuje příjemné teplo a pohodlí po celý rok.
Dominantou bytu je obývací pokoj s francouzskými okny a vstupem na terasu. Nepřehlédnutelným prvkem je luxusní kuchyně na míru značky Nobilia se sedmivrstvým lakem a spotřebiči nejvyšší řady Siemens Studio Line, které zaručují nejen nádherný design, ale i maximální spolehlivost a funkčnost.
Ložnice má svou privátní otevřenou šatnu, která nabízí dostatek úložného prostoru a dokonale se přizpůsobuje potřebám moderního bydlení.
Interiér zdobí bezfalcové dveře Sapeli s magnetickým kováním, které jsou špičkou v interiérovém designu.
Prostorná koupelna je vybavena vanou i sprchovým walk-in koutem.
Pro koupelnové vybavení byla zvolena značka Ravak, doplněná o baterie Grohe.
Díky inteligentní domácnosti můžete jednoduše ovládat osvětlení, okenní žaluzie a i hudbu přes smart systém Alexa. Celý byt je propojen s moderními technologiemi, které zajišťují snadné a pohodlné ovládání vašeho domova na dálku.
Stabilní a rychlý optický internet pak poskytuje ideální připojení pro práci i zábavu.
K bytu náleží dvě parkovací stání před domem a sklep o rozměrech 8m².
Tento byt je dokonalým spojením luxusu, moderních technologií a designu bez kompromisů. Ideální místo pro náročné klienty, kteří hledají něco výjimečného.
Malenovice jsou vynikající lokalitou pro ty, kteří hledají pohodlí a klid s výbornou dostupností do centra Zlína. Tato čtvrť je známá svou strategickou polohou, která nabízí nejen skvělé dopravní spojení, ale také veškeré občanské vybavení na dosah ruky.
Líbí se Vám tato nemovitost?
Na prohlídce se na vás těší Mgr. Alice Nováková & Explicit Reality.
V tomto článku shrneme nejdůležitější věci, které byste si měli promyslet, pokud se chystáte prodat svou nemovitost a chcete, abyste s kupujícím nemusel následně řešit vzniklé problémy.
Jako prodávající nesete rizika spojená nejen se samotným obchodem, ale i se stavem nemovitosti v době prodeje a pro minimalizaci rizik, je dobré se zamyslet nad uvedenými oblastmi.
Realitní makléř má své nezastupitelné místo v realitním obchodu. Realitním makléřem nemyslím nevzdělané jelito, které absolvovalo dvoudenní školení a ví, jak se nahraje inzerát na inzertní portál.
Realitním makléřem, který se Vám skutečně vyplatí, je zkušený profesionál, který je schopen Vám dobře poradit jak prodat za co nejvíc a s nejmenším rizikem a hlavně je Vás schopen obratně provést celým realitním obchodem.
Uživatel serveru RealityMIX.iprima.cz (dále jen „Server“) dostupného na internetové adrese (URL) https://realitymix.iprima.cz, který provozuje společnost DALTEN media s.r.o., se sídlem Na Harfě 916/9a, Praha 9, 190 00, IČO: 271 35 306 (dále jen „Správce“) jako provozovateli tohoto Serveru uděluje svůj výslovný souhlas v souladu s ustanovením § 5 zákona č. 101/2000 Sb. O ochraně osobních údajů a o změně některých zákonů, v platném znění (dále jen „zákon o ochraně osobních údajů“), se zpracováním uživatelem poskytnutých osobních údajů a dalších dat.
Uživatel poskytuje Správci osobní údaje v rozsahu: jméno, příjmení, e-mailová adresa, telefonický kontakt a další data, a to z důvodu projeveného zájmu o nemovitost, kde prostřednictvím služby Serveru Správce osloví Uživatel inzerenta uvedeného v detailu
nemovitosti - EXPLICIT REALITY, s.r.o. (IČ 06816860) se zájmem o jeho služby. Tato společnost je součástí seskupení/sítě/franšízového modelu realitních kanceláří, jejich seznam můžete zobrazit kliknutím na tento odkaz.
Explicit reality, Brno (IČ 76193403) , EXPLICIT REALITY, s.r.o. (IČ 06816860)
Uživatel tyto osobní údaje poskytuje dobrovolně a bere na vědomí, že součástí služeb Správce, které Správce Uživateli poskytuje, je vyhledání všech Uživateli vyhovujících (dle parametrů - cena, typ nemovitosti, lokalita atd.) nemovitostí. Správce za tímto účelem provozuje aplikace Hlídací pes a newsletter. Tyto služby je možné z každého zaslaného emailu odhlásit. Souhlas se zpracováním osobních údajů Uživatel poskytuje Správci na dobu neurčitou s tím, že svůj udělený souhlas může Uživatel kdykoliv na drese správce info@realitymix.cz odvolat. Správce garantuje Uživateli i další práva uvedené v ustanovení §11 a §21 zákoba č. 101/200 Sb. Ve znění pozdějších předpisů.
Více informací o zpracování údajů získáte zde (realitymix.cz/zasady-ochrany-osobnich-udaju)