Moderní nízkoenergetický rodinný dům 5+1 s pozemkem 820 m and sup2;, Vysoký Újezd
Nabízíme k prodeji nově zkolaudovaný, nízkoenergetický rodinný dům v klidné okrajové části obce Vysoký Újezd. Nemovitost spojuje výbornou dostupnost do Prahy s komfortem moderního rodinného bydlení v blízkosti přírody.
Dům o dispozici 5+1 disponuje podlahovou plochou 160,2 m and sup2;, terasami a balkony o celkové výměře 28,4 m and sup2; a stojí na pozemku o velikosti 820 m and sup2;. Jedná se o kvalitní dřevostavbu z panelů RD Rýmařov se zárukou 30 let. Energetická náročnost třídy A zajišťuje velmi úsporný provoz.
Interiér domu je navržen s důrazem na prostor, světlo a propojení se zahradou. Velkoformátová okna přivádějí do domu dostatek denního světla a vytvářejí příjemnou atmosféru. Dům je připravený k okamžitému nastěhování.
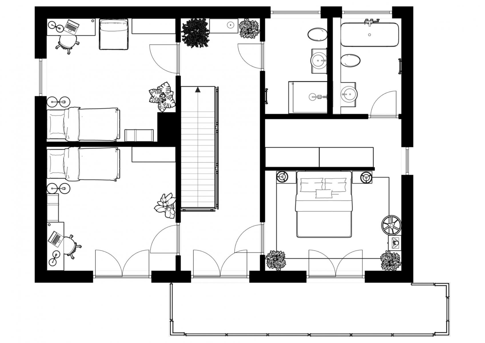
Dispozice
Přízemí:
prostorný obývací pokoj propojený s jídelnou a kuchyní se vstupem na terasu a zahradu
samostatný pokoj (pracovna / pokoj pro hosty)
koupelna s toaletou
technická místnost
vstupní chodba
1. patro:
dva dětské pokoje se společnou koupelnou
prostorná chodba
samostatná hlavní ložnice se šatnou, vlastní koupelnou a vstupem na balkon
z 1. patra je po výsuvném schodišti vstup do půdního prostoru
Technické řešení domu zahrnuje teplovodní podlahové vytápění s tepelným čerpadlem a akumulační nádrží, solární panely 2,5 kWp pro ohřev vody, předokenní elektrické žaluzie a optický internet. Vytápění má ekvitermní regulaci, dle PENB splňuje klasifikační třídu A. Napojení na obecní vodovod a kanalizaci je samozřejmostí.
Na pozemku je k dispozici parkování pro tři vozy.
Standardní vybavení zahrnuje:
Vinylové podlahy a dlažby, okna s trojskly, kvalitní interiérové dveře, designové schodiště s dřevěnými nášlapy, kompletní sanitu, regulaci vytápění, oplocení, vsakovací nádrž na dešťovou vodu, videotelefon a elektrickou vjezdovou bránu.
Lokalita:
Vysoký Újezd patří mezi velmi žádané rezidenční oblasti západně od Prahy. Díky dálnici D5 se na metro B Zličín autem dostanete přibližně za 15 minut. K dispozici je i veřejná doprava, autobusem to na metro trvá 28 minut. V obci je kompletní občanská vybavenost včetně školy, školky, pošty, obchodů a restaurací. Místní zážitková restaurace Papilio je držitelem dvou michelinských hvězd.
Okolí nabízí široké možnosti pro volnočasové aktivity blízkost Českého krasu, cyklostezky, legendární lom Amerika, turistika i prestižní golfové hřiště Albatros Golf Resort.
________________________________________
Hledáte moderní rodinné bydlení v klidné lokalitě s rychlou dostupností do Prahy? Tato nabídka je ideální volbou.
V případě zájmu nás neváhejte kontaktovat. Rádi Vám zajistíme osobní prohlídku i kompletní hypoteční a právní servis.
V tomto článku shrneme nejdůležitější věci, které byste si měli promyslet, pokud se chystáte prodat svou nemovitost a chcete, abyste s kupujícím nemusel následně řešit vzniklé problémy.
Jako prodávající nesete rizika spojená nejen se samotným obchodem, ale i se stavem nemovitosti v době prodeje a pro minimalizaci rizik, je dobré se zamyslet nad uvedenými oblastmi.
Realitní makléř má své nezastupitelné místo v realitním obchodu. Realitním makléřem nemyslím nevzdělané jelito, které absolvovalo dvoudenní školení a ví, jak se nahraje inzerát na inzertní portál.
Realitním makléřem, který se Vám skutečně vyplatí, je zkušený profesionál, který je schopen Vám dobře poradit jak prodat za co nejvíc a s nejmenším rizikem a hlavně je Vás schopen obratně provést celým realitním obchodem.
Uživatel serveru RealityMIX.iprima.cz (dále jen „Server“) dostupného na internetové adrese (URL) https://realitymix.iprima.cz, který provozuje společnost DALTEN media s.r.o., se sídlem Na Harfě 916/9a, Praha 9, 190 00, IČO: 271 35 306 (dále jen „Správce“) jako provozovateli tohoto Serveru uděluje svůj výslovný souhlas v souladu s ustanovením § 5 zákona č. 101/2000 Sb. O ochraně osobních údajů a o změně některých zákonů, v platném znění (dále jen „zákon o ochraně osobních údajů“), se zpracováním uživatelem poskytnutých osobních údajů a dalších dat.
Uživatel poskytuje Správci osobní údaje v rozsahu: jméno, příjmení, e-mailová adresa, telefonický kontakt a další data, a to z důvodu projeveného zájmu o nemovitost, kde prostřednictvím služby Serveru Správce osloví Uživatel inzerenta uvedeného v detailu
nemovitosti - QARA s.r.o. (IČ 01740113) se zájmem o jeho služby. Tato společnost je součástí seskupení/sítě/franšízového modelu realitních kanceláří, jejich seznam můžete zobrazit kliknutím na tento odkaz.
QARA s.r.o. Ostrava (IČ 01740113) , QARA s.r.o. Brno (IČ 01740113) , QARA s.r.o. (IČ 01740113)
Uživatel tyto osobní údaje poskytuje dobrovolně a bere na vědomí, že součástí služeb Správce, které Správce Uživateli poskytuje, je vyhledání všech Uživateli vyhovujících (dle parametrů - cena, typ nemovitosti, lokalita atd.) nemovitostí. Správce za tímto účelem provozuje aplikace Hlídací pes a newsletter. Tyto služby je možné z každého zaslaného emailu odhlásit. Souhlas se zpracováním osobních údajů Uživatel poskytuje Správci na dobu neurčitou s tím, že svůj udělený souhlas může Uživatel kdykoliv na drese správce info@realitymix.cz odvolat. Správce garantuje Uživateli i další práva uvedené v ustanovení §11 a §21 zákoba č. 101/200 Sb. Ve znění pozdějších předpisů.
Více informací o zpracování údajů získáte zde (realitymix.cz/zasady-ochrany-osobnich-udaju)