Akční prodej dvou apartmánů 1+kk a 2+kk s terasou Vrbno pod Pradědem
Dovolujeme si vám nabídnout dva apartmány: 1+kk: Nabízíme k prodeji moderní apartmánový byt situovaný v 2NP revitalizovaného bytového domu s výtahem, který se nachází v malebném podhorském městě Vrbno pod Pradědem. Dům je energeticky nenáročný a poskytuje svým obyvatelům komfortní a úsporné bydlení v těsné blízkosti přírody. Apartmán je orientovaný na západ, díky čemuž nabízí krásné výhledy na okolní přírodu a dokonalé večerní atmosféry na prostorné z části kryté střechou terase. Interiér je nadčasově a velmi kvalitně vybaven, a to včetně moderního systému podlahového vytápění s možností dálkového ovládání. Stejně tak je i vstup do apartmánu řešen chytrým kódovým zámkem, ideálním v případě využití nemovitosti k rekreačním pronájmům. Stejně tak i k trvalému bydlení.
Předsíň - s vestavnými skříněmi a botníkem
Koupelna s WC - sprchový kout, elektrický žebřík, místo pro pračku a bojler
Obývací pokoj a kuchyňský kout - skříňky na míru, stůl a rozkládací sedací souprava, vstup na terasu, dominantou pokoje je manželská postel, nad kterou je střešní okno. Plně vybavená kuchyňská linka (vestavná kombinovaná mikrovlnná trouba s grilem, myčka, varná deska, odsavač par). Celková kapacita apartmánu je až 4 osoby, popřípadě lze přidat i přistýlku, což představuje ideální příležitost pro investici do rekreačního bydlení v oblíbené lokalitě Jeseníků.
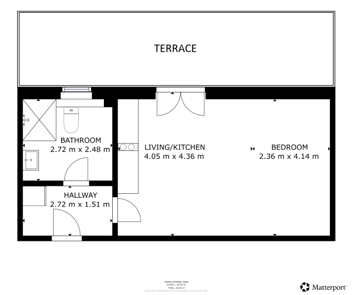
A 2+kk: 1NPpodlaží revitalizovaného bytového domu z bezbariérovým , který se nachází v malebném podhorském městě Vrbno pod Pradědem. Dům je energeticky nenáročný a poskytuje svým obyvatelům komfortní a úsporné bydlení v těsné blízkosti přírody. Interiér je nadčasově a velmi kvalitně vybaven, a to včetně moderního systému podlahového vytápění s možností dálkového ovládání. Stejně tak je i vstup do apartmánu řešen chytrým kódovým zámkem, ideálním v případě využití nemovitosti k rekreačním pronájmům.
Předsíň - s vestavnými skříněmi a botníkem
Koupelna s WC - sprchový kout, elektrický žebřík, prostor pro pračku a bojler
Obývací pokoj - rozkládací sedací souprava, sklopná zabudovaná postel
Kuchyňský kout - plně vybavená kuchyňská linka (vestavná mikrovlnná trouba, myčka, varná deska, odsavač par) a rozkládací jídelní stůl
Ložnice - velká manželská postel, sklopná postel a přístup na balkon
Celková kapacita apartmánu je až 5 lůžek, což představuje ideální příležitost pro investici do rekreačního bydlení v oblíbené lokalitě Jeseníků. Velikost je 42m2, balkon 7m2, sklep 3m2. V blízkosti nemovitosti se nachází fungující restaurace, kde lze zajistit stravování pro hosty při pronájmu apartmánu. Tento apartmán je perfektní volbou pro ty, kteří hledají kombinaci moderního bydlení, chytrých technologií a nádherné přírodní scenerie - ať už pro vlastní rekreaci nebo jako investici s vynikajícím potenciálem. Náklady na bydlení jsou 1895kč a elektřina dle spotřeby. K apartmánu náleží sklepní koje a možnost parkování před domem. Nemovitost má vlastní webové stránky a je plně řízená systémem JABLOTRON. Ve městě Vrbno pod Pradědem.
Cena:
6 600 000 Kč
Datum k nastěhování:
31.03.2026
Číslo zakázky:
REALITYMIX-234751
Podrobné informace
Zastavěná plocha:828 m²
Užitná plocha:79 m²
Plocha parcely:1720 m²
Počet podlaží objektu:2
Druh objektu:smíšená
Stav objektu:velmi dobrý
Typ zařízení:Penzion
Umístění objektu:klidná část obce
Doprava:vlak, silnice, autobus
Elektřina:Elektro - 230 V
Voda:Voda - dálkový vodovod
Telekomunikace:Internet
Topení:Ústřední - elektrické, Ústřední - dálkové
Odpad:Kanalizace
Ostatní rozvody:Kabelová televize, Kabelové rozvody, Ostatní rozvody
V tomto článku shrneme nejdůležitější věci, které byste si měli promyslet, pokud se chystáte prodat svou nemovitost a chcete, abyste s kupujícím nemusel následně řešit vzniklé problémy.
Jako prodávající nesete rizika spojená nejen se samotným obchodem, ale i se stavem nemovitosti v době prodeje a pro minimalizaci rizik, je dobré se zamyslet nad uvedenými oblastmi.
Realitní makléř má své nezastupitelné místo v realitním obchodu. Realitním makléřem nemyslím nevzdělané jelito, které absolvovalo dvoudenní školení a ví, jak se nahraje inzerát na inzertní portál.
Realitním makléřem, který se Vám skutečně vyplatí, je zkušený profesionál, který je schopen Vám dobře poradit jak prodat za co nejvíc a s nejmenším rizikem a hlavně je Vás schopen obratně provést celým realitním obchodem.
Uživatel serveru RealityMIX.iprima.cz (dále jen „Server“) dostupného na internetové adrese (URL) https://realitymix.iprima.cz, který provozuje společnost DALTEN media s.r.o., se sídlem Na Harfě 916/9a, Praha 9, 190 00, IČO: 271 35 306 (dále jen „Správce“) jako provozovateli tohoto Serveru uděluje svůj výslovný souhlas v souladu s ustanovením § 5 zákona č. 101/2000 Sb. O ochraně osobních údajů a o změně některých zákonů, v platném znění (dále jen „zákon o ochraně osobních údajů“), se zpracováním uživatelem poskytnutých osobních údajů a dalších dat.
Uživatel poskytuje Správci osobní údaje v rozsahu: jméno, příjmení, e-mailová adresa, telefonický kontakt a další data, a to z důvodu projeveného zájmu o nemovitost, kde prostřednictvím služby Serveru Správce osloví Uživatel inzerenta uvedeného v detailu
nemovitosti - Bidli reality, a.s. (IČ 06790763) se zájmem o jeho služby. Tato společnost je součástí seskupení/sítě/franšízového modelu realitních kanceláří, jejich seznam můžete zobrazit kliknutím na tento odkaz.
Hypocentrum modré pyramidy - Praha (IČ ) , Hypocentrum modré pyramidy - Brno (IČ ) , Hypocentrum Modré pyramidy - Hradec Králové (IČ ) , Hypocentrum Modré pyramidy - České Budějovice (IČ ) , Hypocentrum Modré pyramidy - Pardubice (IČ ) , Hypocentrum Modré pyramidy - Plzeň (IČ ) , Hypocentrum Modré pyramidy - Ústí nad Labem (IČ ) , Hypocentrum Modré pyramidy - Ostrava (IČ ) , Hypocentrum Modré pyramidy - Olomouc (IČ ) , Bidli reality, a.s. (IČ 06790763)
Uživatel tyto osobní údaje poskytuje dobrovolně a bere na vědomí, že součástí služeb Správce, které Správce Uživateli poskytuje, je vyhledání všech Uživateli vyhovujících (dle parametrů - cena, typ nemovitosti, lokalita atd.) nemovitostí. Správce za tímto účelem provozuje aplikace Hlídací pes a newsletter. Tyto služby je možné z každého zaslaného emailu odhlásit. Souhlas se zpracováním osobních údajů Uživatel poskytuje Správci na dobu neurčitou s tím, že svůj udělený souhlas může Uživatel kdykoliv na drese správce info@realitymix.cz odvolat. Správce garantuje Uživateli i další práva uvedené v ustanovení §11 a §21 zákoba č. 101/200 Sb. Ve znění pozdějších předpisů.
Více informací o zpracování údajů získáte zde (realitymix.cz/zasady-ochrany-osobnich-udaju)