Výrobní a provozní areál Vojkovice u Kralup nad Vltavou
Představuji k prodeji provozní areál se zpevněnou plochou a administrativními, výrobními a skladovacími prostory na adrese Vojkovice 161 u Kralup nad Vltavou.
Lokalit a:
Areál o celkové ploše pozemku 12.027 m2 je přístupný po asfaltové silnici přibližně 10 minut jízdy od Kralup nad Vltavou a 14 minut jízdy od okraje Prahy. Pozemek areálu je kompletně rovinatý, zpevněný betonem a celý oplocený s otevíratelnou vjezdovou bránou. Kolem areálu jsou louky a porost se stromy.
Budovy:
V rámci areálu jsou umístěné následující budovy:
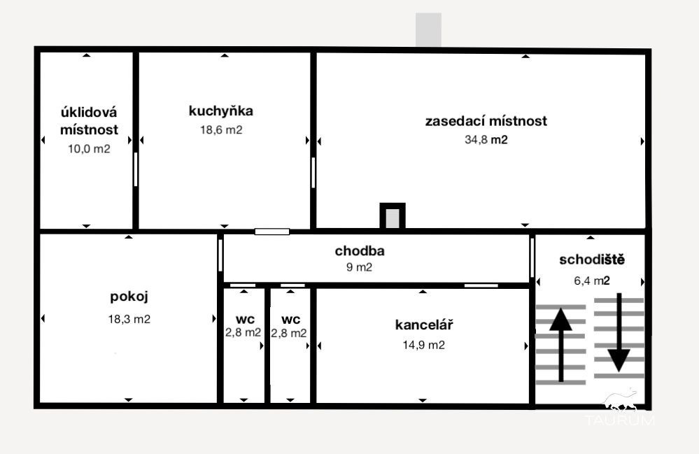
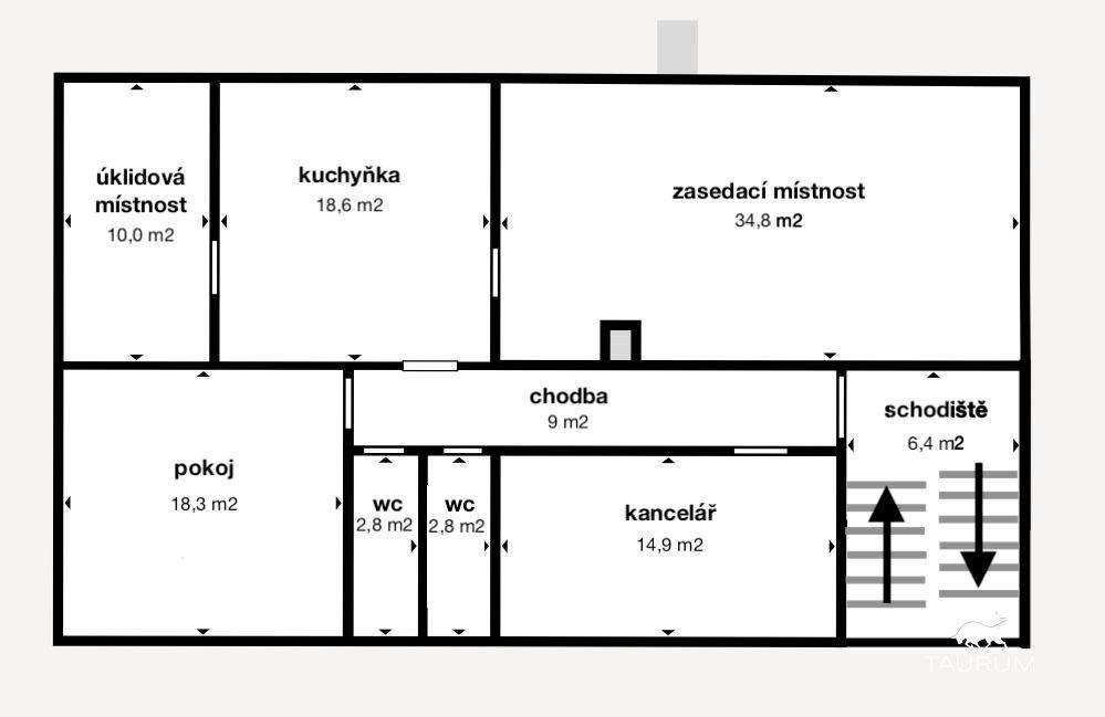
1 dvoupodlažní částečně podsklepená zděná administrativní budova s kancelářemi a zázemím (šatny, sprcha, wc, kuchyňka) o celkové podlahové ploše 285 m2, budova je ve vynikajícím stavu
2 kancelářské prostory ve zděné budově o celkové výměře 124 m2, velmi dobrý stav, kuchyňka, umývárna
3 zděná hala o výměře 587,6 m2
4 nová stanová plachtová hala s hliníkovou konstrukcí o výměře 449,5 m2
5 zděná kotelna
T trafostanice zajišťující připojení elektřiny
Dále jsou na pozemku přístřešky tmavě zelené plochy na fotce z dronu. Před vjezdem do hlavního pozemku jsou na levé i pravé straně samostatné oplocené pozemky.
Inženýrské sítě:
Areál je napojen na elektřinu a obecní vodovod. Odpady jsou svedeny do vyvážecí jímky. Plynová přípojka není k dispozici.
Technické informace:
Vytápění je zajištěno výkonným kotlem na tuhá paliva umístěným v kotelně. Ve výrobní hale jsou topná tělesa “Sahara”. V administrativní budově a v kancelářské části haly jsou radiátory.
Ohřev vody je zajištěn bojlerem.
Právní informace:
Na nemovitosti jsou nyní zástavní práva ve prospěch banky, která budou v rámci prodeje areálu vymazána.
Areál je vhodný na provozování výroby a skladování. Velkou výhodou je okamžitá použitelnost areálu bez dalších investic a vynikající dopravní dostupnost.
Zařízení a materiál vyobrazený na fotografiích bude současným majitelem odvezen.
Areál je k dispozici ihned po dokončení prodeje.
Pro koupi areálu zajišťuji kompletní realitní a právní servis.
Kontaktujte mě, prosím, pro domluvení prohlídky:
Jan Štěpánek
TAURUM reality
PENB je v přípravě, proto uvádíme třídu G
Uvedené výměry jsou orientační.
Cena v inzerci je uvedena bez DPH 21%.
V případě, že bude nemovitost kupovat plátce DPH, bude prodej v režimu přenesené daňové povinnosti dle §92d zákona o DPH.
Cena:
55 000 000 Kč
Poznámka:
Cena je uvedena bez DPH 21%.
Pokud bude nemovitost kupovat plátce DPH, bude prodej v režimu přenesené daňové povinnosti dle §92d zákona o DPH.
Datum k nastěhování:
06.05.2025
Plocha:
1315 m²
Číslo zakázky:
REALITYMIX-250058
Podrobné informace
Celková plocha:1315 m²
Počet podlaží objektu:2
Druh objektu:cihlová
Stav objektu:velmi dobrý
Účel budovy:Průmyslový areál
Výrobní plocha (m2):1030 m²
Obchodní plocha:285 m²
Doprava:silnice
Elektřina:Elektro - 230 V, Elektro - 380 V
Voda:Zdroj pro celý objekt, Voda - dálkový vodovod
V tomto článku shrneme nejdůležitější věci, které byste si měli promyslet, pokud se chystáte prodat svou nemovitost a chcete, abyste s kupujícím nemusel následně řešit vzniklé problémy.
Jako prodávající nesete rizika spojená nejen se samotným obchodem, ale i se stavem nemovitosti v době prodeje a pro minimalizaci rizik, je dobré se zamyslet nad uvedenými oblastmi.
Realitní makléř má své nezastupitelné místo v realitním obchodu. Realitním makléřem nemyslím nevzdělané jelito, které absolvovalo dvoudenní školení a ví, jak se nahraje inzerát na inzertní portál.
Realitním makléřem, který se Vám skutečně vyplatí, je zkušený profesionál, který je schopen Vám dobře poradit jak prodat za co nejvíc a s nejmenším rizikem a hlavně je Vás schopen obratně provést celým realitním obchodem.
Uživatel serveru RealityMIX.iprima.cz (dále jen „Server“) dostupného na internetové adrese (URL) https://realitymix.iprima.cz, který provozuje společnost DALTEN media s.r.o., se sídlem Na Harfě 916/9a, Praha 9, 190 00, IČO: 271 35 306 (dále jen „Správce“) jako provozovateli tohoto Serveru uděluje svůj výslovný souhlas v souladu s ustanovením § 5 zákona č. 101/2000 Sb. O ochraně osobních údajů a o změně některých zákonů, v platném znění (dále jen „zákon o ochraně osobních údajů“), se zpracováním uživatelem poskytnutých osobních údajů a dalších dat.
Uživatel poskytuje Správci osobní údaje v rozsahu: jméno, příjmení, e-mailová adresa, telefonický kontakt a další data, a to z důvodu projeveného zájmu o nemovitost, kde prostřednictvím služby Serveru Správce osloví Uživatel inzerenta uvedeného v detailu
nemovitosti - TAURUM reality s.r.o. (IČ 05904498) se zájmem o jeho služby.
Uživatel tyto osobní údaje poskytuje dobrovolně a bere na vědomí, že součástí služeb Správce, které Správce Uživateli poskytuje, je vyhledání všech Uživateli vyhovujících (dle parametrů - cena, typ nemovitosti, lokalita atd.) nemovitostí. Správce za tímto účelem provozuje aplikace Hlídací pes a newsletter. Tyto služby je možné z každého zaslaného emailu odhlásit. Souhlas se zpracováním osobních údajů Uživatel poskytuje Správci na dobu neurčitou s tím, že svůj udělený souhlas může Uživatel kdykoliv na drese správce info@realitymix.cz odvolat. Správce garantuje Uživateli i další práva uvedené v ustanovení §11 a §21 zákoba č. 101/200 Sb. Ve znění pozdějších předpisů.
Více informací o zpracování údajů získáte zde (realitymix.cz/zasady-ochrany-osobnich-udaju)