Prodej moderního dvoupodlažního bytu 5+kk (130 m²) s privátní zahradou (564 m²) a dvěma parkovacími
Toužíte po změně? Po místě, kde můžete zpomalit, nadechnout se a začít novou kapitolu — bez každodenního shonu, ale přitom na dosah všeho potřebného? Tento moderní a prostorný dvoupodlažní byt 5+kk (130 m²) může být přesně tím novým začátkem, který hledáte. Ideální pro ty, kteří nejsou pracovně vázáni na jedno místo, chtějí více přírody, více klidu a zároveň nechtějí přijít o pohodlí života ve městě.
Byt se nachází v novostavbě cihlového dvojdomu z roku 2024, umístěného na okraji obce — tam, kde končí ulice a začínají louky, lesy a svoboda.
Proč je tenhle domov jiný než ostatní?
- Velkorysá užitná plocha 130 m² poskytuje prostor pro volný, rodinný i tvůrčí život.
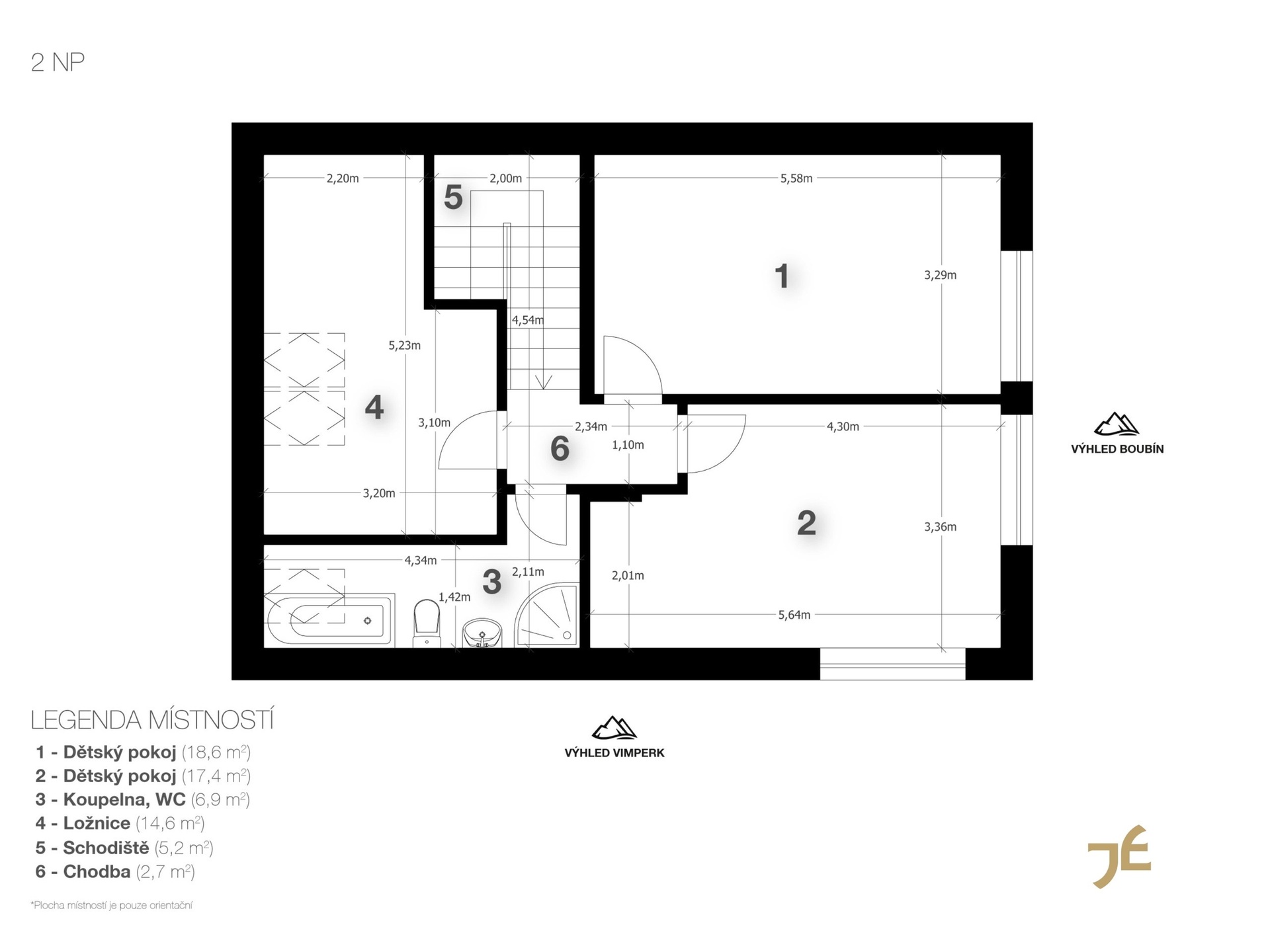
- Pokoj pro hosty nebo pracovna v přízemí hned za vchodem do domu.
- Dvě koupelny - v přízemí se sprchovým koutem, v patře s vanou.
- Podlahové vytápění v celém domě a komín na krbová kamna v obývacím pokoji.
- Privátní zahrada 564 m² je vaše vlastní zelená oáza – místo na práci venku, odpočinek, zahradničení nebo ranní kávu s výhledem do přírody.
- Dvě parkovací stání s přípravou na nabíjení elektromobilu myslí na budoucnost.
- Nezaměnitelný výhled na majestátní Boubín každý den připomene, proč jste odešli z města.
- Perfektní akustické odhlučnění mezi jednotkami zaručuje soukromí i klid.
- Ekologicky úsporné bydlení díky tepelnému čerpadlu, retenční nádrži a přípravě na fotovoltaiku.
- Podlahy, koupelny a toalety jsou již hotové – můžete si doladit interiér podle sebe.
Promyšlený design, promyšlený život
Dvojdům je navržený s důrazem na soukromí i pohodlí. Každá jednotka má vlastní kanalizační přípojku, vodoměr, podlahové vytápění v celém domě i přípravu pro fotovoltaiku. Tři pokoje mají výhled přímo na Boubín a jeden z nich – díky lomeným oknům – nabízí navíc panorama Vimperka. Místo, kde ráno začíná světlem a tichým výhledem do zeleně.
Lokalita – příroda na dosah, civilizace nablízku
Když chcete úplný klid, vyjdete před dům a jste v přírodě. Když potřebujete nákupy nebo služby, RETAIL PARK VIMPERK je jen 3 minuty autem. A pokud rádi chodíte, 500 metrů od domu leží Velká Homolka, odkud máte celé město jako na dlani. Lesy, traily, hory – vše kousek od vás. Tady se žije pomaleji, volněji a opravdověji. Místo, kde může začít váš nový život
Obklopeni šumavskou přírodou a hlubokými lesy tu můžete snadno najít to, co často ve městě chybí: prostor, klid a svobodu.
Ozvěte se mi a domluvte si prohlídku. Možná právě tady začíná vaše další životní kapitola.
Cena:
7 490 000 Kč
Dispozice/podlahová plocha:
5+kk/130 m²
Číslo zakázky:
REALITYMIX-00007
Podrobné informace
Dispozice bytu:5+kk
Číslo podlaží v domě:1
Počet podlaží objektu:2
Celková podlahová plocha:130 m²
Druh objektu:cihlová
Stav objektu:novostavba
Stáří objektu:2024
Vlastnictví:osobní
Výška stropu:2 m
Terasa:10 m²
Umístění objektu:okraj obce
Doprava:vlak, silnice, autobus
Elektřina:Elektro - 230 V, Elektro - 400 V
Voda:Voda - dálkový vodovod
Telekomunikace:Internet
Topení:Lokální - tuhá paliva, Ústřední - elektrické
V tomto článku shrneme nejdůležitější věci, které byste si měli promyslet, pokud se chystáte prodat svou nemovitost a chcete, abyste s kupujícím nemusel následně řešit vzniklé problémy.
Jako prodávající nesete rizika spojená nejen se samotným obchodem, ale i se stavem nemovitosti v době prodeje a pro minimalizaci rizik, je dobré se zamyslet nad uvedenými oblastmi.
Realitní makléř má své nezastupitelné místo v realitním obchodu. Realitním makléřem nemyslím nevzdělané jelito, které absolvovalo dvoudenní školení a ví, jak se nahraje inzerát na inzertní portál.
Realitním makléřem, který se Vám skutečně vyplatí, je zkušený profesionál, který je schopen Vám dobře poradit jak prodat za co nejvíc a s nejmenším rizikem a hlavně je Vás schopen obratně provést celým realitním obchodem.
Uživatel serveru RealityMIX.iprima.cz (dále jen „Server“) dostupného na internetové adrese (URL) https://realitymix.iprima.cz, který provozuje společnost DALTEN media s.r.o., se sídlem Na Harfě 916/9a, Praha 9, 190 00, IČO: 271 35 306 (dále jen „Správce“) jako provozovateli tohoto Serveru uděluje svůj výslovný souhlas v souladu s ustanovením § 5 zákona č. 101/2000 Sb. O ochraně osobních údajů a o změně některých zákonů, v platném znění (dále jen „zákon o ochraně osobních údajů“), se zpracováním uživatelem poskytnutých osobních údajů a dalších dat.
Uživatel poskytuje Správci osobní údaje v rozsahu: jméno, příjmení, e-mailová adresa, telefonický kontakt a další data, a to z důvodu projeveného zájmu o nemovitost, kde prostřednictvím služby Serveru Správce osloví Uživatel inzerenta uvedeného v detailu
nemovitosti - Bc. Šimon Jelínek - realitní makléř (IČ 87830809) se zájmem o jeho služby.
Uživatel tyto osobní údaje poskytuje dobrovolně a bere na vědomí, že součástí služeb Správce, které Správce Uživateli poskytuje, je vyhledání všech Uživateli vyhovujících (dle parametrů - cena, typ nemovitosti, lokalita atd.) nemovitostí. Správce za tímto účelem provozuje aplikace Hlídací pes a newsletter. Tyto služby je možné z každého zaslaného emailu odhlásit. Souhlas se zpracováním osobních údajů Uživatel poskytuje Správci na dobu neurčitou s tím, že svůj udělený souhlas může Uživatel kdykoliv na drese správce info@realitymix.cz odvolat. Správce garantuje Uživateli i další práva uvedené v ustanovení §11 a §21 zákoba č. 101/200 Sb. Ve znění pozdějších předpisů.
Více informací o zpracování údajů získáte zde (realitymix.cz/zasady-ochrany-osobnich-udaju)