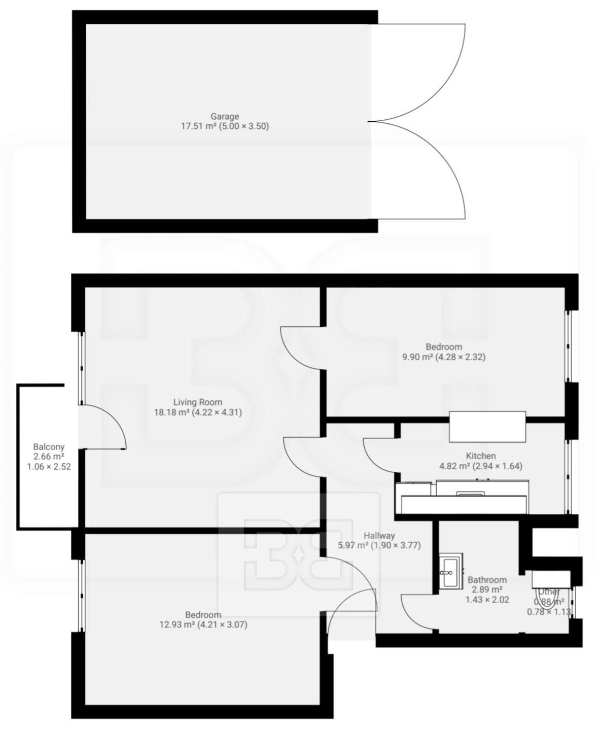
K pronájmu nabízíme prostorný byt o dispozici 3+1 a celkové výměře 68 m², který se nachází ve 2. patře dobře udržované bytové budovy v ulici Malovarská 537, v obci Velvary. Svojí dispozicí je vhodný pro rodinné bydlení.
Z haly je vstup do samostatné 1. ložnice, do koupelny s vanou a záchodem. Dále do kuchyně a prostorného obývacího pokoje se vstupem na balkon. Z obývacího pokoje vede vstup do 2. ložnice. Věnujte pozornost půdorysu v galerii fotek.
Byt je celkově v pěkném stavu a nabízí se nevybavený. Vytápění je řešeno wawkami v obývacím pokoji. V ložnicích najdeme elektrická topení.
K bytu náleží prostorná garáž, která se nachází hned vedle bytového domu. V garáži je zavedena elektřina a je osvětlená. Dále jsou k bytu 2 sklepy v celkové výměře 9m².
Díky umístění na kraji města je zde naprostý klid. 10 minut chůze je centrum města a veškerá občanská vybavenost, restaurace, kavárny i výborné dopravní spojení – autobusy jsou v docházkové vzdálenosti. Vlak je cca 15 minut chůze.
Nájem: 16.000 kč
Zálohy na služby: 1.500 kč + elektřina a plyn se přepisuje na nájemníka
Provize: 17.500 kč + DPH
+ Vratná kauce
Velkou výhodou pro potenciální nájemce je, že byt je v profesionální správě společnosti Bohemian Estates, jenž správu pro majitele tohoto bytu vykonává. Nájemci je k dispozici kontaktní osoba, která řeší veškeré záležitosti s nájmem spojené (údržba, platby nájemného, vyúčtování, dodatky, a pod.). Nájemci je tak zajištěno bezproblémové užívání bytu s kompletním servisem.
Cena:
16 000 Kč / (za měsíc)
Poznámka:
+ zálohy za služby 1.500,- + elektřina a plyn se převádí na nájemníka. Vratná jistota, Provize 17.50
Uživatel serveru RealityMIX.iprima.cz (dále jen „Server“) dostupného na internetové adrese (URL) https://realitymix.iprima.cz, který provozuje společnost DALTEN media s.r.o., se sídlem Na Harfě 916/9a, Praha 9, 190 00, IČO: 271 35 306 (dále jen „Správce“) jako provozovateli tohoto Serveru uděluje svůj výslovný souhlas v souladu s ustanovením § 5 zákona č. 101/2000 Sb. O ochraně osobních údajů a o změně některých zákonů, v platném znění (dále jen „zákon o ochraně osobních údajů“), se zpracováním uživatelem poskytnutých osobních údajů a dalších dat.
Uživatel poskytuje Správci osobní údaje v rozsahu: jméno, příjmení, e-mailová adresa, telefonický kontakt a další data, a to z důvodu projeveného zájmu o nemovitost, kde prostřednictvím služby Serveru Správce osloví Uživatel inzerenta uvedeného v detailu
nemovitosti - Bohemian Estates International s. r. o. (IČ 27889394) se zájmem o jeho služby.
Uživatel tyto osobní údaje poskytuje dobrovolně a bere na vědomí, že součástí služeb Správce, které Správce Uživateli poskytuje, je vyhledání všech Uživateli vyhovujících (dle parametrů - cena, typ nemovitosti, lokalita atd.) nemovitostí. Správce za tímto účelem provozuje aplikace Hlídací pes a newsletter. Tyto služby je možné z každého zaslaného emailu odhlásit. Souhlas se zpracováním osobních údajů Uživatel poskytuje Správci na dobu neurčitou s tím, že svůj udělený souhlas může Uživatel kdykoliv na drese správce info@realitymix.cz odvolat. Správce garantuje Uživateli i další práva uvedené v ustanovení §11 a §21 zákoba č. 101/200 Sb. Ve znění pozdějších předpisů.
Více informací o zpracování údajů získáte zde (realitymix.cz/zasady-ochrany-osobnich-udaju)