Hledáte místo, kde si vytvoříte domov přesně podle svých představ? Nabízíme vám dvougenerační rodinný dům v klidné obci Velký Osek, okres Kolín, který je připraven ke kompletní rekonstrukci. S již hotovou projektovou dokumentací a stavebním povolením můžete ihned začít s přestavbou a přetvořit nemovitost podle svých snů.
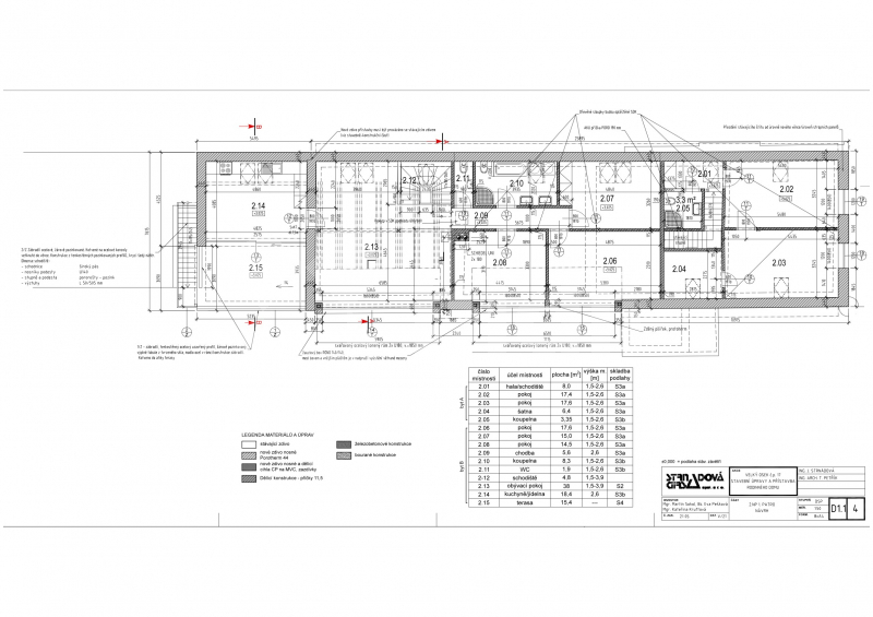
Dům je navržen pro dvougenerační bydlení, což znamená dvě samostatné bytové jednotky o dispozici 4+1. První jednotka nabízí pohodlí dvou koupelen a dvou šaten, které zajistí dostatek úložného prostoru. Druhá jednotka se pyšní terasou s výhledem do zahrady, garáží a dokonce ateliérem či dílnou - ideální pro vaše koníčky nebo práci z domova.
Tento rodinný dům stojí na rozlehlém pozemku o výměře 2504m2, který skýtá mnoho možností. Na pozemku se nacházejí tři jezírka, která dodávají zahradě jedinečný charakter a mohou být upravena pro relaxaci. Vzrostlá zeleň zajišťuje soukromí a pocit naprostého klidu. Navíc je zde dostatek místa na bazén či venkovní posezení, takže si můžete vytvořit vlastní oázu pro relaxaci a společenské akce.
Velký Osek je vyhledávanou lokalitou s výborným spojením do okolních měst a kompletní občanskou vybaveností. Do Kolína se dostanete během pár minut jízdy autem nebo pohodlně vlakem, a do Prahy dojedete za pouhých 40 minut vlakem, což je ideální pro ty, kteří pracují v hlavním městě, ale chtějí bydlet v klidnější oblasti. Obec Velký Osek nabízí vše potřebné pro pohodlný život - školy, školky, obchody, restaurace a sportovní zařízení. Okolní lesy a řeka Labe jsou navíc skvělým místem pro procházky, cykloturistiku nebo rodinné výlety.
Tento dům poskytuje skvělou příležitost pro vícegenerační bydlení nebo investici do pronájmu. Díky připravenému projektu a stavebnímu povolení můžete rekonstrukci přizpůsobit vlastním požadavkům bez zdlouhavých příprav. Tato nemovitost kombinuje výhodnou polohu, prostorný pozemek a možnost vybudovat si domov přesně podle svých představ. Neváhejte a kontaktujte nás pro více informací nebo si rovnou sjednejte prohlídku. Možnosti této nemovitosti čekají právě na vás!
Pro více informací či sjednání prohlídky kontaktujte realitního průvodce a případně využijte odkazu v galerii na podrobný web nemovitosti.
V galerii jsou vyobrazeny skutečné fotografie a dále vizualizace vykreslené grafikem pouze pro ilustraci a lepší představu, jak by se dal prostor zrekonstruovat a využít. Navrhovaný stav není zahrnutý v ceně.
Cena:
9 990 000 Kč
Poznámka:
cena vč. kompletního právního i hypotečního servisu, budoucí možný stav ve vizualizacích není zahrnut v ceně
V tomto článku shrneme nejdůležitější věci, které byste si měli promyslet, pokud se chystáte prodat svou nemovitost a chcete, abyste s kupujícím nemusel následně řešit vzniklé problémy.
Jako prodávající nesete rizika spojená nejen se samotným obchodem, ale i se stavem nemovitosti v době prodeje a pro minimalizaci rizik, je dobré se zamyslet nad uvedenými oblastmi.
Realitní makléř má své nezastupitelné místo v realitním obchodu. Realitním makléřem nemyslím nevzdělané jelito, které absolvovalo dvoudenní školení a ví, jak se nahraje inzerát na inzertní portál.
Realitním makléřem, který se Vám skutečně vyplatí, je zkušený profesionál, který je schopen Vám dobře poradit jak prodat za co nejvíc a s nejmenším rizikem a hlavně je Vás schopen obratně provést celým realitním obchodem.
Uživatel serveru RealityMIX.iprima.cz (dále jen „Server“) dostupného na internetové adrese (URL) https://realitymix.iprima.cz, který provozuje společnost DALTEN media s.r.o., se sídlem Na Harfě 916/9a, Praha 9, 190 00, IČO: 271 35 306 (dále jen „Správce“) jako provozovateli tohoto Serveru uděluje svůj výslovný souhlas v souladu s ustanovením § 5 zákona č. 101/2000 Sb. O ochraně osobních údajů a o změně některých zákonů, v platném znění (dále jen „zákon o ochraně osobních údajů“), se zpracováním uživatelem poskytnutých osobních údajů a dalších dat.
Uživatel poskytuje Správci osobní údaje v rozsahu: jméno, příjmení, e-mailová adresa, telefonický kontakt a další data, a to z důvodu projeveného zájmu o nemovitost, kde prostřednictvím služby Serveru Správce osloví Uživatel inzerenta uvedeného v detailu
nemovitosti - Bidli reality, a.s. (IČ 06790763) se zájmem o jeho služby. Tato společnost je součástí seskupení/sítě/franšízového modelu realitních kanceláří, jejich seznam můžete zobrazit kliknutím na tento odkaz.
Hypocentrum modré pyramidy - Praha (IČ ) , Hypocentrum modré pyramidy - Brno (IČ ) , Hypocentrum Modré pyramidy - Hradec Králové (IČ ) , Hypocentrum Modré pyramidy - České Budějovice (IČ ) , Hypocentrum Modré pyramidy - Pardubice (IČ ) , Hypocentrum Modré pyramidy - Plzeň (IČ ) , Hypocentrum Modré pyramidy - Ústí nad Labem (IČ ) , Hypocentrum Modré pyramidy - Ostrava (IČ ) , Hypocentrum Modré pyramidy - Olomouc (IČ ) , Bidli reality, a.s. (IČ 06790763)
Uživatel tyto osobní údaje poskytuje dobrovolně a bere na vědomí, že součástí služeb Správce, které Správce Uživateli poskytuje, je vyhledání všech Uživateli vyhovujících (dle parametrů - cena, typ nemovitosti, lokalita atd.) nemovitostí. Správce za tímto účelem provozuje aplikace Hlídací pes a newsletter. Tyto služby je možné z každého zaslaného emailu odhlásit. Souhlas se zpracováním osobních údajů Uživatel poskytuje Správci na dobu neurčitou s tím, že svůj udělený souhlas může Uživatel kdykoliv na drese správce info@realitymix.cz odvolat. Správce garantuje Uživateli i další práva uvedené v ustanovení §11 a §21 zákoba č. 101/200 Sb. Ve znění pozdějších předpisů.
Více informací o zpracování údajů získáte zde (realitymix.cz/zasady-ochrany-osobnich-udaju)