Prodej mimořádného RD 5+1 a dva samostatné apartmány i vinný sklep, pozemek 1 057 m2, Velké Bílovice
POZOR jedinečná příležitost!!! Cena do 6.4.2026: 13 990 000,-Kč. Hledáte kombinaci klidného bydlení, technologické vyspělosti a jedinečné atmosféry jižní Moravy? Tento výjimečný bungalov ve městě Velké Bílovice je ideální volbou pro rodinný život, rekreaci i investici do budoucnosti.
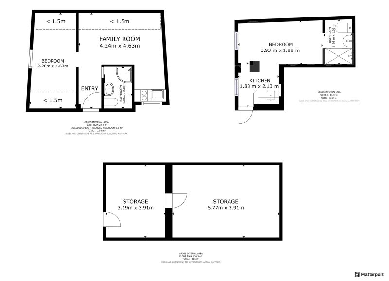
Exkluzivně nabízíme prodej mimořádného, energeticky úsporného RD 5+1 a dva samostatné apartmány i vinný sklep, s celkovou užitnou plochou 260 m2, na pozemku 1 057 m2, Velké Bílovice. Nemovitost vyniká kvalitním zpracováním, promyšleným dispozičním řešením a důrazem na nízké provozní náklady.
Interiér nabízí nadstandardní jídelnu a kuchyni, ohromný obývací pokoj s přímím vstupem na terasu, dvě prostorné neprůchozí ložnice, praktickou pracovnu, koupelnu s toaletou a další sam. toaletu.
Technologie a vybavení pro maximální komfort
- Solární elektrárna s přetokem do veřejné sítě - zajišťuje částečnou energetickou soběstačnost a významně snižuje náklady na provoz domu.
- Klimatizace v každé místnosti - celoroční tepelný komfort s možností individuální regulace.
- Nový plynový kotel - efektivní a spolehlivé vytápění.
- Vysoký izolační standard - stabilní a příjemné vnitřní klima, nízká spotřeba energií.
Další užitné prostory a jejich možnosti
Součástí nabídky jsou:
- Dva samostatné apartmány situované nad vinným sklepem - kapacita až 10 osob. Ideální pro návštěvy či pronájem (např. krátkodobé ubytování v turisticky atraktivní oblasti).
Zahrada a její přidaná hodnota
- Vinný sklípek - místo pro uchování vína a stylové degustace.
- Terasa s grilem a udírnou - nerušený odpočinek i zábava v naprostém soukromí.
- Zapuštěný bazén s protiproudem - osvěžení a sportovní vyžití ve vlastní oáze klidu.
- Vinohrad a ovocné stromy - romantické prvky, které podtrhují kouzlo jižní Moravy a poskytují vlastní oblíbené plodiny.
- Automatická sekačka a závlahový systém - profesionální a jednoduchá údržba zahrady.
Atraktivní lokalita Velké Bílovice
Srdce jihomoravské vinařské tradice, město známé svou přátelskou atmosférou, kulturním děním a kvalitním zázemím. Nabízí:
- Školku, školu, zdravotní středisko, obchody i restaurace, fotbalové hřiště, multifunkční sportovní areál i dětské hřiště, kulturní dům, bezpočet služeb pro veřejnost, rybník a mnohem víc.
- Klidné a bezpečné prostředí pro rodinný život.
- Blízkost přírody, vinohradů a cyklostezek.
Výborná dopravní dostupnost - autem i veřejnou dopravou
- Dálnice D2 vzdálena jen pár minut jízdy - Brno do 30 minut.
- Autobusová doprava zajišťuje spojení s okolními městy.
- Železniční stanice v blízkosti s přímým spojením na hlavní dopravní tahy.
- Cyklistická infrastruktura - ideální pro rekreační i každodenní cestování po okolí.
Nemovitost, která nabízí harmonické spojení moderního bydlení, praktických technologií a půvabu jižní Moravy.
Uvedené výměry jsou přibližné a mají pouze informativní charakter. Energetický štítek nebyl dodán, proto uvádíme třídu G.
V tomto článku shrneme nejdůležitější věci, které byste si měli promyslet, pokud se chystáte prodat svou nemovitost a chcete, abyste s kupujícím nemusel následně řešit vzniklé problémy.
Jako prodávající nesete rizika spojená nejen se samotným obchodem, ale i se stavem nemovitosti v době prodeje a pro minimalizaci rizik, je dobré se zamyslet nad uvedenými oblastmi.
Realitní makléř má své nezastupitelné místo v realitním obchodu. Realitním makléřem nemyslím nevzdělané jelito, které absolvovalo dvoudenní školení a ví, jak se nahraje inzerát na inzertní portál.
Realitním makléřem, který se Vám skutečně vyplatí, je zkušený profesionál, který je schopen Vám dobře poradit jak prodat za co nejvíc a s nejmenším rizikem a hlavně je Vás schopen obratně provést celým realitním obchodem.
Uživatel serveru RealityMIX.iprima.cz (dále jen „Server“) dostupného na internetové adrese (URL) https://realitymix.iprima.cz, který provozuje společnost DALTEN media s.r.o., se sídlem Na Harfě 916/9a, Praha 9, 190 00, IČO: 271 35 306 (dále jen „Správce“) jako provozovateli tohoto Serveru uděluje svůj výslovný souhlas v souladu s ustanovením § 5 zákona č. 101/2000 Sb. O ochraně osobních údajů a o změně některých zákonů, v platném znění (dále jen „zákon o ochraně osobních údajů“), se zpracováním uživatelem poskytnutých osobních údajů a dalších dat.
Uživatel poskytuje Správci osobní údaje v rozsahu: jméno, příjmení, e-mailová adresa, telefonický kontakt a další data, a to z důvodu projeveného zájmu o nemovitost, kde prostřednictvím služby Serveru Správce osloví Uživatel inzerenta uvedeného v detailu
nemovitosti - Bidli reality, a.s. (IČ 06790763) se zájmem o jeho služby. Tato společnost je součástí seskupení/sítě/franšízového modelu realitních kanceláří, jejich seznam můžete zobrazit kliknutím na tento odkaz.
Hypocentrum modré pyramidy - Praha (IČ ) , Hypocentrum modré pyramidy - Brno (IČ ) , Hypocentrum Modré pyramidy - Hradec Králové (IČ ) , Hypocentrum Modré pyramidy - České Budějovice (IČ ) , Hypocentrum Modré pyramidy - Pardubice (IČ ) , Hypocentrum Modré pyramidy - Plzeň (IČ ) , Hypocentrum Modré pyramidy - Ústí nad Labem (IČ ) , Hypocentrum Modré pyramidy - Ostrava (IČ ) , Hypocentrum Modré pyramidy - Olomouc (IČ ) , Bidli reality, a.s. (IČ 06790763)
Uživatel tyto osobní údaje poskytuje dobrovolně a bere na vědomí, že součástí služeb Správce, které Správce Uživateli poskytuje, je vyhledání všech Uživateli vyhovujících (dle parametrů - cena, typ nemovitosti, lokalita atd.) nemovitostí. Správce za tímto účelem provozuje aplikace Hlídací pes a newsletter. Tyto služby je možné z každého zaslaného emailu odhlásit. Souhlas se zpracováním osobních údajů Uživatel poskytuje Správci na dobu neurčitou s tím, že svůj udělený souhlas může Uživatel kdykoliv na drese správce info@realitymix.cz odvolat. Správce garantuje Uživateli i další práva uvedené v ustanovení §11 a §21 zákoba č. 101/200 Sb. Ve znění pozdějších předpisů.
Více informací o zpracování údajů získáte zde (realitymix.cz/zasady-ochrany-osobnich-udaju)