Nabízíme k prodeji dvoupodlažní RD 5+kk, 594 m2, s pozemkem 1998 m2.
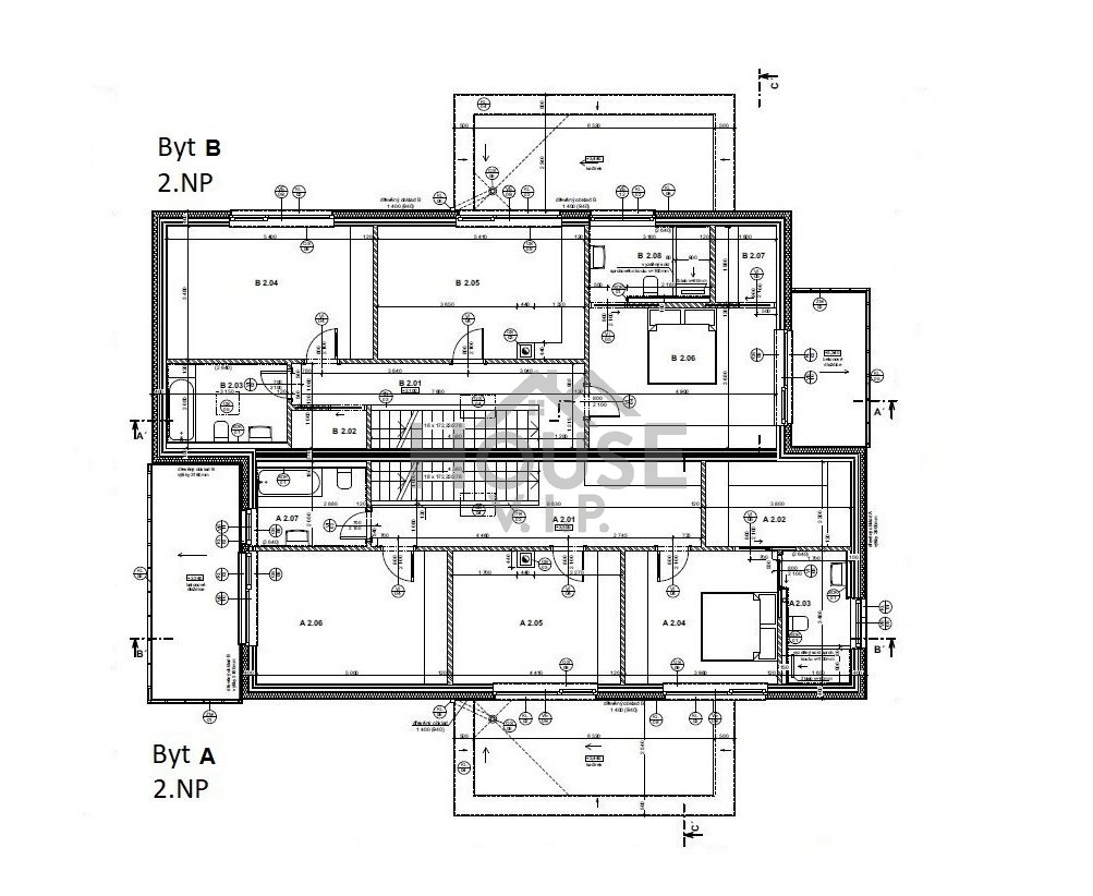
Dům má dvě bytové jednotky s vlastní garáže, která je průchozí do domu. Před každou garáží je místo pro parkování automobilu zpevněné zámkovou dlažbou.
V přízemí každé bytové jednotky domu je velký otevřený prostor, s velkými okny, umožňujícími vstup do zahrady. Prostor je zamýšleny k využití jako obývací pokoj s kuchyní. V prostoru kuchyně je připravena energetická přípojka pro případný kuchyňský ostrůvek. V místnosti je též připraven vývod pro instalaci krbové vložky. V přízemí jsou dále samostatné pokoj, koupelny se sprchovým koutem a toaletou, šatna a předsíň.
První patro je již členěné. Pokoje poskytují dostatek soukromí a mohou být využity jako ložnice, studovna, dětský pokoj dle libosti. Na patře je rovněž koupelna, WC a v jednom z pokojů jsou připraveny přípojky vody a odpadu, což nabízí variabilní využití tohoto pokoje. V prvním patře jsou rovněž terasy.
Dům je zděný ze sendvičového zdiva výrobce BSG, typ LIVETHERM
Izolace fasády je integrovaná v sendvičovém zdivu LIVETHERM
Vytápění je podlahové - elektrické topné rohože (v garáži je stropní elektrická topná rohož), druhým zdrojem vytápění je krbová vložka. Krbová vložka má připraveno trubní vedení pro přisávání vzduchu a zároveň kouřovod.
Elektřina je řešena elektroměrem pro každou část domu zvlášť. Aktuálně je osazen staveništní odběr. Klient si zažádá o osazení svého odběrného místa dle jeho požadavků na jištění a potřebu parametrů připojení.
Střecha je plochá, krytina je hydroizolační fólie z PVC. Izolace je EPS100 tl. 220 mm + spádový klín tl. 20-200 mm.
Fotovoltaika je možná dodatečně doplnit do RD. Plochá střecha a její konstrukce je připravena pro doplnění návrhu umístění fotovoltaických panelů.
Zdroj vody je obecní vodovod. Dům má jednu přípojku a ve vodoměrné šachtě dochází k rozdělení na obě části RD a měření skutečné spotřeby vody podružnými vodoměry.
Dům je napojen na obecní kanalizaci.
Okna jsou dřevěná, bez bezpečnostních prvků, bez fólií, 3-skla.
Dvojdům se nachází v malebné krajině Křivoklátských lesů u města Unhoště.
Cena:
32 200 000 Kč
Číslo zakázky:
REALITYMIX-00643
Podrobné informace
Poloha objektu:samostatný
Druh objektu:cihlová
Stav objektu:velmi dobrý
Počet podlaží objektu:2
Typ domu:patrový
Zastavěná plocha:495 m²
Plocha parcely:2000 m²
Užitná plocha:495 m²
Ostatní:Garáž, Parkoviště
Umístění objektu:klidná část obce
Doprava:dálnice, silnice, MHD
Elektřina:Elektro - 230 V
Voda:Voda - dálkový vodovod
Topení:Lokální - tuhá paliva, Ústřední - elektrické
V tomto článku shrneme nejdůležitější věci, které byste si měli promyslet, pokud se chystáte prodat svou nemovitost a chcete, abyste s kupujícím nemusel následně řešit vzniklé problémy.
Jako prodávající nesete rizika spojená nejen se samotným obchodem, ale i se stavem nemovitosti v době prodeje a pro minimalizaci rizik, je dobré se zamyslet nad uvedenými oblastmi.
Realitní makléř má své nezastupitelné místo v realitním obchodu. Realitním makléřem nemyslím nevzdělané jelito, které absolvovalo dvoudenní školení a ví, jak se nahraje inzerát na inzertní portál.
Realitním makléřem, který se Vám skutečně vyplatí, je zkušený profesionál, který je schopen Vám dobře poradit jak prodat za co nejvíc a s nejmenším rizikem a hlavně je Vás schopen obratně provést celým realitním obchodem.
Uživatel serveru RealityMIX.iprima.cz (dále jen „Server“) dostupného na internetové adrese (URL) https://realitymix.iprima.cz, který provozuje společnost DALTEN media s.r.o., se sídlem Na Harfě 916/9a, Praha 9, 190 00, IČO: 271 35 306 (dále jen „Správce“) jako provozovateli tohoto Serveru uděluje svůj výslovný souhlas v souladu s ustanovením § 5 zákona č. 101/2000 Sb. O ochraně osobních údajů a o změně některých zákonů, v platném znění (dále jen „zákon o ochraně osobních údajů“), se zpracováním uživatelem poskytnutých osobních údajů a dalších dat.
Uživatel poskytuje Správci osobní údaje v rozsahu: jméno, příjmení, e-mailová adresa, telefonický kontakt a další data, a to z důvodu projeveného zájmu o nemovitost, kde prostřednictvím služby Serveru Správce osloví Uživatel inzerenta uvedeného v detailu
nemovitosti - House ViP, s.r.o. (IČ 06880754) se zájmem o jeho služby.
Uživatel tyto osobní údaje poskytuje dobrovolně a bere na vědomí, že součástí služeb Správce, které Správce Uživateli poskytuje, je vyhledání všech Uživateli vyhovujících (dle parametrů - cena, typ nemovitosti, lokalita atd.) nemovitostí. Správce za tímto účelem provozuje aplikace Hlídací pes a newsletter. Tyto služby je možné z každého zaslaného emailu odhlásit. Souhlas se zpracováním osobních údajů Uživatel poskytuje Správci na dobu neurčitou s tím, že svůj udělený souhlas může Uživatel kdykoliv na drese správce info@realitymix.cz odvolat. Správce garantuje Uživateli i další práva uvedené v ustanovení §11 a §21 zákoba č. 101/200 Sb. Ve znění pozdějších předpisů.
Více informací o zpracování údajů získáte zde (realitymix.cz/zasady-ochrany-osobnich-udaju)