Prodej novostavby 4+kk (162 m2) s pozemkem (1098 m2) v Újezdu u Přelouče
Ke koupi nabízíme samostatně stojící bungalov 4+kk s celkovou užitnou plochou 161,7 m2 (včetně kryté terasy 28,3 m2) v obci Újezd u Přelouče. Jedná se o novostavbu kolaudovanou v lednu 2025, dům je připravený k okamžitému nastěhování.
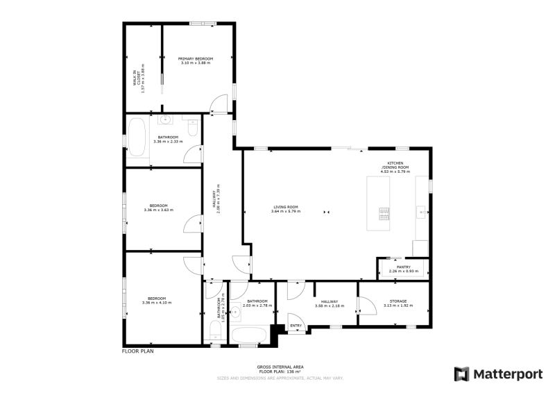
Dům má velmi prakticky řešenou dispozici 4+kk:
prostorný obývací pokoj s kuchyní a přímým vstupem na krytou terasu,
3 samostatné pokoje (ložnice + dva další pokoje), šatna, spíž a technická místnost 2 koupelny + samostatné WC (dispozice je přehledně znázorněna v půdorysu ve fotogalerii).
Pozemek a exteriér
Pozemek má celkovou výměru 1 098 m2, z toho téměř 300 m² tvoří příjezdová cesta a parkovací stání až pro 4 auta. Vjezd zajišťuje hliníková dálkově ovládaná brána, pozemek je oplocen betonovým plotem v prémiovém dekoru.
V exteriéru je připraveno:
příprava pro nabíjecí stanici (wallbox)
příprava pro bazén
příprava pro čerpadlo na dešťovou vodu
retenční nádrž 16 m3 + vlastní studna
Standard a vybavení
vinylová zátěžová podlaha Meister (v koupelnách a technické místnosti keramická dlažba)
plastová okna s trojsklem
tepelné čerpadlo De Dietrich + podlahové vytápění s termostatem v každé místnosti
v obývacím pokoji klimatizace a příprava na krbová kamna
Koupelny jsou provedené ve vysokém standardu: velkoformátové obklady, podomítkové baterie Hansgrohe, keramika Ideal Standard / Vitra, skříňky na míru, zrcadla a elektrická otopná tělesa. Jedna koupelna nabízí sprchu i vanu, druhá nadstandardně velkou vanu + WC.
Kuchyně
Kuchyňská linka je vyrobena na míru a osazena kvalitními spotřebiči (např. Franke - varná deska s integrovaným odsáváním). Velkou výhodou je samostatná spíž přístupná přímo z kuchyně.
Lokalita a dostupnost
Klidné bydlení v centru obce s dobrou dostupností:
Pardubice / Hradec Králové cca 30 minut
D11 pár minut
v obci potraviny a autobusová zastávka
veškerá občanská vybavenost v Přelouči nebo Chlumci nad Cidlinou
Náklady
PENB: třída D, reálné měsíční náklady cca 3 500 Kč.
K dispozici jsou stavební plánky a technické detaily, rádi předáme při prohlídce. Pro více informací a domluvení prohlídky mě neváhejte kontaktovat. Výhodné financování vám rádi zdarma zajistíme.
Cena:
9 990 000 Kč
Datum k nastěhování:
01.06.2025
Číslo zakázky:
REALITYMIX-233480
Podrobné informace
Poloha objektu:samostatný
Druh objektu:cihlová
Stav objektu:novostavba
Počet podlaží objektu:1
Typ domu:přízemní
Zastavěná plocha:187 m²
Plocha parcely:1098 m²
Zahrada:817 m²
Užitná plocha:162 m²
Terasa:28 m²
Doprava:vlak, dálnice, silnice, MHD, autobus
Elektřina:Elektro - 230 V, Elektro - 380 V
Voda:Voda - dálkový vodovod
Telekomunikace:Telefon, Internet
Odpad:Kanalizace
Ostatní rozvody:Kabelová televize, Kabelové rozvody, Ostatní rozvody
V tomto článku shrneme nejdůležitější věci, které byste si měli promyslet, pokud se chystáte prodat svou nemovitost a chcete, abyste s kupujícím nemusel následně řešit vzniklé problémy.
Jako prodávající nesete rizika spojená nejen se samotným obchodem, ale i se stavem nemovitosti v době prodeje a pro minimalizaci rizik, je dobré se zamyslet nad uvedenými oblastmi.
Realitní makléř má své nezastupitelné místo v realitním obchodu. Realitním makléřem nemyslím nevzdělané jelito, které absolvovalo dvoudenní školení a ví, jak se nahraje inzerát na inzertní portál.
Realitním makléřem, který se Vám skutečně vyplatí, je zkušený profesionál, který je schopen Vám dobře poradit jak prodat za co nejvíc a s nejmenším rizikem a hlavně je Vás schopen obratně provést celým realitním obchodem.
Uživatel serveru RealityMIX.iprima.cz (dále jen „Server“) dostupného na internetové adrese (URL) https://realitymix.iprima.cz, který provozuje společnost DALTEN media s.r.o., se sídlem Na Harfě 916/9a, Praha 9, 190 00, IČO: 271 35 306 (dále jen „Správce“) jako provozovateli tohoto Serveru uděluje svůj výslovný souhlas v souladu s ustanovením § 5 zákona č. 101/2000 Sb. O ochraně osobních údajů a o změně některých zákonů, v platném znění (dále jen „zákon o ochraně osobních údajů“), se zpracováním uživatelem poskytnutých osobních údajů a dalších dat.
Uživatel poskytuje Správci osobní údaje v rozsahu: jméno, příjmení, e-mailová adresa, telefonický kontakt a další data, a to z důvodu projeveného zájmu o nemovitost, kde prostřednictvím služby Serveru Správce osloví Uživatel inzerenta uvedeného v detailu
nemovitosti - Bidli reality, a.s. (IČ 06790763) se zájmem o jeho služby. Tato společnost je součástí seskupení/sítě/franšízového modelu realitních kanceláří, jejich seznam můžete zobrazit kliknutím na tento odkaz.
Hypocentrum modré pyramidy - Praha (IČ ) , Hypocentrum modré pyramidy - Brno (IČ ) , Hypocentrum Modré pyramidy - Hradec Králové (IČ ) , Hypocentrum Modré pyramidy - České Budějovice (IČ ) , Hypocentrum Modré pyramidy - Pardubice (IČ ) , Hypocentrum Modré pyramidy - Plzeň (IČ ) , Hypocentrum Modré pyramidy - Ústí nad Labem (IČ ) , Hypocentrum Modré pyramidy - Ostrava (IČ ) , Hypocentrum Modré pyramidy - Olomouc (IČ ) , Bidli reality, a.s. (IČ 06790763)
Uživatel tyto osobní údaje poskytuje dobrovolně a bere na vědomí, že součástí služeb Správce, které Správce Uživateli poskytuje, je vyhledání všech Uživateli vyhovujících (dle parametrů - cena, typ nemovitosti, lokalita atd.) nemovitostí. Správce za tímto účelem provozuje aplikace Hlídací pes a newsletter. Tyto služby je možné z každého zaslaného emailu odhlásit. Souhlas se zpracováním osobních údajů Uživatel poskytuje Správci na dobu neurčitou s tím, že svůj udělený souhlas může Uživatel kdykoliv na drese správce info@realitymix.cz odvolat. Správce garantuje Uživateli i další práva uvedené v ustanovení §11 a §21 zákoba č. 101/200 Sb. Ve znění pozdějších předpisů.
Více informací o zpracování údajů získáte zde (realitymix.cz/zasady-ochrany-osobnich-udaju)