Nabízíme k prodeji novostavbu rodinného domu o velikosti 4+kk, v obci Tišnov, ulice Sigmundova, samostatně stojící, přízemní,
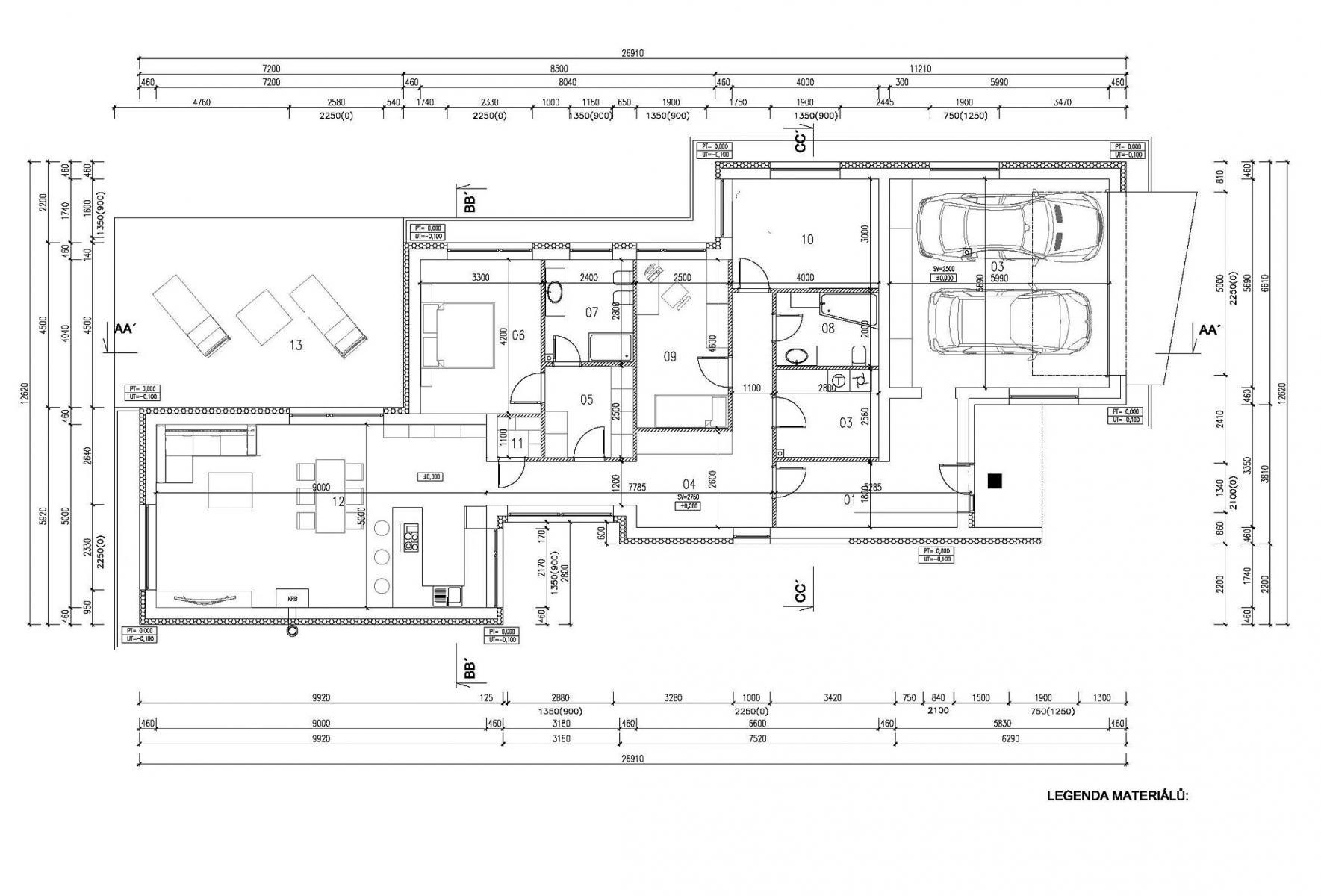
Rodinný dům zkolaudovaný v r. 2022 je zděný, jednopodlažní s rovnou střechou, garáží pro 2 osobní automobily 36 m a venkovním parkovacím stáním pro další 2 auta. Zastavěná plocha 209 m, podlahová plocha 173 m.
Dům je připojený na elektřinu (tři fáze), obecní vodovod (s retenční nádrží 5 m), obecní kanalizaci (dešťová i splašková). Vytápění domu prostřednictvím elektrického podlahového topení s chytrými termostaty v každé místnosti. Klimatizace je zavedena do každého pokoje, regulovatelné samostatně. Na střeše domu je zbudovaná fotovoltaika s výkonem 15 kWp a 4 bateriemi po 19 kW, které jsou celodenně nabíjeny. Podlahové krytiny jsou velkoformátové dlaždice ve všech místnostech, plastová okna v trojskle, vchodové dveře z hliníku. Na všech oknech jsou umístěny předokenní hliníkové žaluzie.
Dům má dispozici 4+kk s terasou umístěnou na jih. Pokoj s kuchyňskou linkou v ceně 600.000,- Kč včetně veškerých vestavných spotřebičů má výstup na terasu o výměře 35 m. Z ložnice je vstup do šatny a koupelny s umyvadlem, sprchovým koutem, WC a bidetem. Z chodby je vstup do pracovny, dětského pokoje, druhé koupelny s umyvadlem, vanou a WC, a do technické místnosti s pračkou, sušička a bojlerem na ohřev vody. Vstupní předsíň ústí do garáže pro dva osobní automobily.
Zahrada o výměře 565 m je bez dalších staveb, osázena travou, okrasnými keři a dřevinami, zakrslými stromky a sezónními květinami, je zde přívod elektřiny pro budoucí pergolu a zahradní domek. Na zahradě je vybudovaný zavlažovací systém, dětské pískoviště a průlezka.
Pozemek je kompletně oplocený, plot je umístěný na vlastním pozemku, nikoliv na hranici se sousedním pozemkem. Plot je osazen dvojitou bránou pro vjezd a brankou pro pěší. Gabionový plot je v přední části pozemku vysoký 1,2 m, v zadní části dosahuje výšky 2 m.
Dům je připravený na připojení optické sítě, čeká se na dobudování sítě pro zbytek Tišnova. Připojení na internet se prozatím řeší vzduchem (wifi).
Dům je nepodsklepený, postaven z YTONGU, zateplení domu 20 cm polystyren, fasáda světle hnědá v kombinaci s bílou, celkový půdorys 12,6 m x 27 m. Příjezd k domu je po obecní komunikaci. V domě je instalován kamerový systém s 8 kamerami, je možné nainstalovat kompletní zabezpečovací systém v domě včetně garáže. Pozemek má délku 40 m, šířku 20 m, zastavěná plocha domu včetně zpevněných ploch je 290 m2. Dům je po dohodě možné ponechat včetně veškerého vybavení.
Uvolnění dle dohody.
Energetická třída B.
V tomto článku shrneme nejdůležitější věci, které byste si měli promyslet, pokud se chystáte prodat svou nemovitost a chcete, abyste s kupujícím nemusel následně řešit vzniklé problémy.
Jako prodávající nesete rizika spojená nejen se samotným obchodem, ale i se stavem nemovitosti v době prodeje a pro minimalizaci rizik, je dobré se zamyslet nad uvedenými oblastmi.
Realitní makléř má své nezastupitelné místo v realitním obchodu. Realitním makléřem nemyslím nevzdělané jelito, které absolvovalo dvoudenní školení a ví, jak se nahraje inzerát na inzertní portál.
Realitním makléřem, který se Vám skutečně vyplatí, je zkušený profesionál, který je schopen Vám dobře poradit jak prodat za co nejvíc a s nejmenším rizikem a hlavně je Vás schopen obratně provést celým realitním obchodem.
Uživatel serveru RealityMIX.iprima.cz (dále jen „Server“) dostupného na internetové adrese (URL) https://realitymix.iprima.cz, který provozuje společnost DALTEN media s.r.o., se sídlem Na Harfě 916/9a, Praha 9, 190 00, IČO: 271 35 306 (dále jen „Správce“) jako provozovateli tohoto Serveru uděluje svůj výslovný souhlas v souladu s ustanovením § 5 zákona č. 101/2000 Sb. O ochraně osobních údajů a o změně některých zákonů, v platném znění (dále jen „zákon o ochraně osobních údajů“), se zpracováním uživatelem poskytnutých osobních údajů a dalších dat.
Uživatel poskytuje Správci osobní údaje v rozsahu: jméno, příjmení, e-mailová adresa, telefonický kontakt a další data, a to z důvodu projeveného zájmu o nemovitost, kde prostřednictvím služby Serveru Správce osloví Uživatel inzerenta uvedeného v detailu
nemovitosti - OK REAL (IČ 49488104) se zájmem o jeho služby.
Uživatel tyto osobní údaje poskytuje dobrovolně a bere na vědomí, že součástí služeb Správce, které Správce Uživateli poskytuje, je vyhledání všech Uživateli vyhovujících (dle parametrů - cena, typ nemovitosti, lokalita atd.) nemovitostí. Správce za tímto účelem provozuje aplikace Hlídací pes a newsletter. Tyto služby je možné z každého zaslaného emailu odhlásit. Souhlas se zpracováním osobních údajů Uživatel poskytuje Správci na dobu neurčitou s tím, že svůj udělený souhlas může Uživatel kdykoliv na drese správce info@realitymix.cz odvolat. Správce garantuje Uživateli i další práva uvedené v ustanovení §11 a §21 zákoba č. 101/200 Sb. Ve znění pozdějších předpisů.
Více informací o zpracování údajů získáte zde (realitymix.cz/zasady-ochrany-osobnich-udaju)