Prodej rodinného domu 107 m² na polosamotě s jedinečným pozemkem 6 597 m²
Tato výjimečná nemovitost na polosamotě nabízí vzácnou kombinaci absolutního klidu, soukromí a přímého kontaktu s přírodou. Zároveň však otevírá prostor pro alternativní způsob života, podnikání i soběstačnost. Moderní dům ve venkovském anglickém stylu je zasazen do vlastního přírodního světa – lesa, louky a zahrady o celkové výměře 6 597 m². Pozemkem protéká Pasecký potok, jehož klidný tok přirozeně formuje celý prostor a odděluje udržovanou zahradu s loukou od lesa. Voda, zeleň a ticho zde nejsou doplňkem – jsou základem každodenního života.
Dominantou domu je prosklená zimní zahrada, která plynule přechází v prostornou terasu o velikosti 18 m². Odtud se otevírá nerušený výhled do lesa, kde se denní rytmus řídí světlem, tichem a ročními obdobími. Dům je ideální pro rodinný život, ale i pro ty, kteří hledají únik z města, prostor pro soustředění, tvoření, klidnou práci z domova nebo podnikání.
Technické informace:
Zděný dům s unikátně propojenými společnými prostory
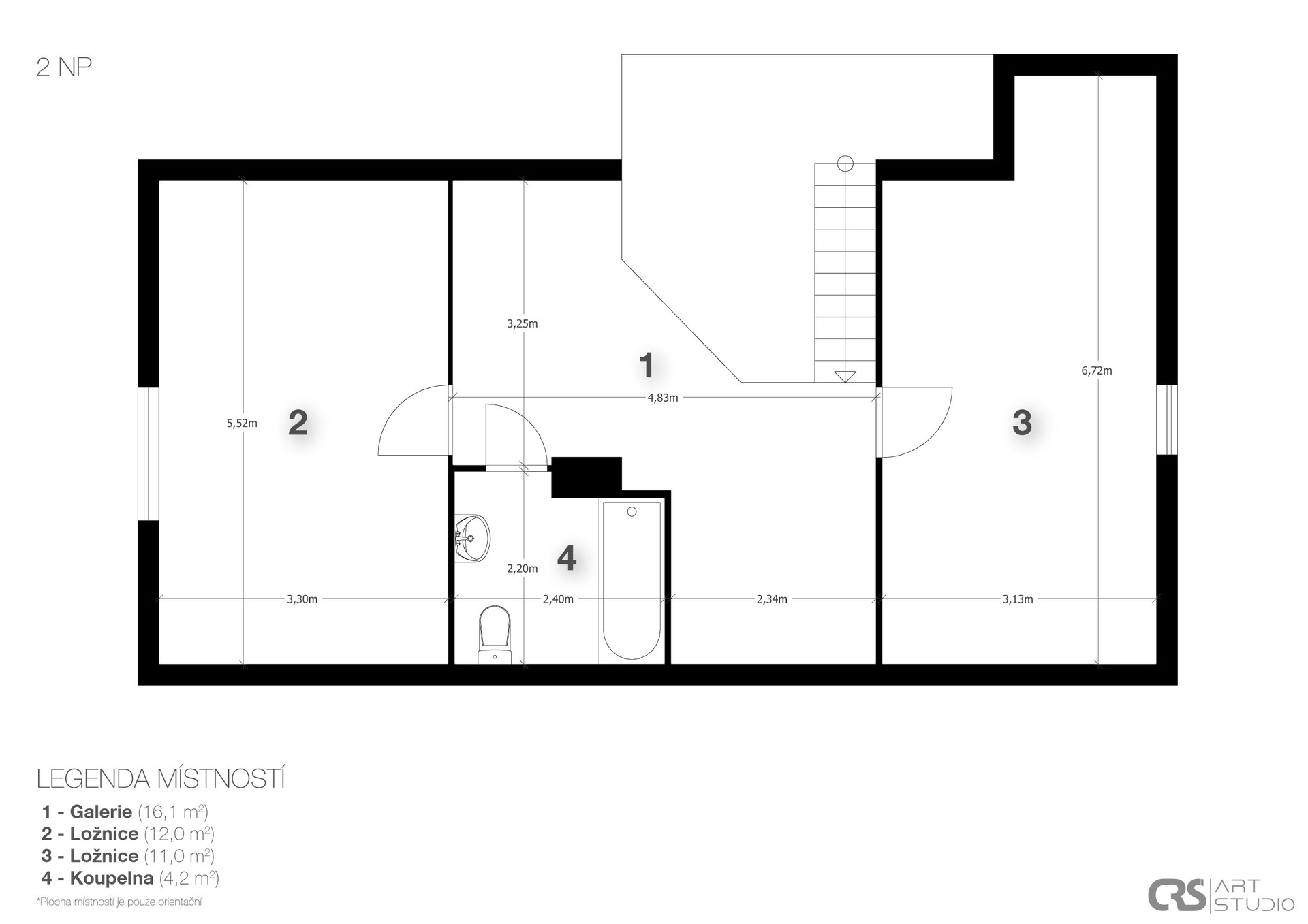
Dispozice: 4+KK
Užitná plocha domu: 107 m²
Celková výměra pozemku: 6 597 m² (zahrada, louka, vlastní les)
Terasa: 18 m²
Rok výstavby: 2011
Kvalitní hliníková okna se špičkovými parametry a dlouhou životností
Vytápění: elektrický kotel + krbová kamna s výměníkem (možnost přepínání), podlahové vytápění
Voda: vlastní studna s pitnou vodou
Odpad: jímka
Příslušenství: 2 koupelny + samostatná sprcha s WC v technické místnosti
Otevřená galerie v 2.NP vhodná k zabudování úložných prostor nebo jako další místo na spaní
Dům, který vás zpomalí
K domu přijíždíte po vlastní lesní cestě. Mezi stromy se postupně objevuje široké okno se schodištěm – tichý signál, že vstupujete do jiného světa. Světa klidu, soukromí a přirozeného rytmu. Přízemí je zaplaveno měkkým denním světlem, které proniká velkorysými okny do centrálního obytného prostoru. Ten propojuje kuchyň, jídelnu a obývací pokoj s krbovými kamny a působí otevřeně, útulně a hřejivě. Interiér je plně vybavený a připravený k okamžitému nastěhování. Ve dvou podlažích se nachází tři ložnice, dvě koupelny a navíc samostatná technická místnost se sprchou a WC, která má oddělený vstup z terasy – ideální například po práci na zahradě nebo návratu z lesa.
Pozemek s mimořádným potenciálem využití
Hospodaření a zvířata
Rozsáhlý pozemek umožňuje nejen komfortní bydlení, ale i široké spektrum doplňkových a podnikatelských aktivit, které jsou v běžné rezidenční zástavbě prakticky nemožné. Louka i navazující les vytvářejí ideální podmínky pro:
- chov hospodářských zvířat, včetně koní,
- chov drobných hospodářských zvířat (ovce, kozy, drůbež),
- včelaření v klidném prostředí bez rušivých vlivů,
- pěstování ovoce, zeleniny nebo bylin,
- částečnou či plnou soběstačnost domácnosti.
Pozemek poskytuje dostatek prostoru i přirozený odstup od okolí, což minimalizuje jakékoliv konflikty se sousedy.
Podnikání, klidové a retreatové využití
Poloha na polosamotě, ticho a přírodní rámec místa vytvářejí ideální podmínky pro:
- wellness, terapeutické nebo koučovací aktivity,
- jóga, meditace, menší retreaty či pobyty v tichu,
- ateliér, tvůrčí dílnu nebo klidné podnikání z domova,
- kombinaci bydlení a práce bez nutnosti dojíždění.
Samostatný vstup do technické místnosti se sprchou a WC z terasy je praktický například pro oddělení soukromé a pracovní části.
Alternativní ubytování a rozšíření využití
Charakter pozemku umožňuje uvažovat také o instalaci několika menších klidových jednotek, jako jsou:
- Tiny house,
- zen boxy,
- meditační nebo relaxační moduly, citlivě rozmístěné na louce či na okraji lesa.
Tyto prvky mohou sloužit jak pro soukromé využití, tak pro doplňkové podnikání zaměřené na klid, přírodu a regeneraci.
Klid, který má spojení se světem
Přestože se nacházíte na polosamotě, dostupnost je velmi dobrá:
- Tábor – cca 10 minut autem,
- vlaková zastávka cca 1 km pěšky,
- autobusová zastávka přímo u odbočky k pozemku.
Město Tábor nabízí kompletní občanskou vybavenost a zajišťuje plnohodnotné zázemí pro každodenní život.
Místo, které dává svobodu
Zahrada, louka, les a protékající potok vytvářejí uzavřený a přirozeně strukturovaný celek, kde každá část má svůj smysl a využití. Ať už hledáte rodinný domov, prostor pro podnikání, soběstačný životní styl nebo kombinaci všeho dohromady, tento pozemek vám dává to nejcennější – svobodu volby.
Cena:
Cena na vyžádání
Poznámka:
cena k jednání, včetně DPH, včetně poplatků, včetně provize, včetně právního servisu
Datum k nastěhování:
19.01.2026
Číslo zakázky:
REALITYMIX-00010
Podrobné informace
Poloha objektu:samostatný
Druh objektu:cihlová
Stav objektu:velmi dobrý
Počet podlaží objektu:1
Typ domu:patrový
Zastavěná plocha:107 m²
Plocha parcely:6597 m²
Zahrada:6500 m²
Užitná plocha:107 m²
Terasa:18 m²
Ostatní:Parkoviště
Umístění objektu:polosamota
Doprava:vlak, silnice, autobus
Elektřina:Elektro - 230 V
Topení:Lokální - tuhá paliva, Ústřední - elektrické
V tomto článku shrneme nejdůležitější věci, které byste si měli promyslet, pokud se chystáte prodat svou nemovitost a chcete, abyste s kupujícím nemusel následně řešit vzniklé problémy.
Jako prodávající nesete rizika spojená nejen se samotným obchodem, ale i se stavem nemovitosti v době prodeje a pro minimalizaci rizik, je dobré se zamyslet nad uvedenými oblastmi.
Realitní makléř má své nezastupitelné místo v realitním obchodu. Realitním makléřem nemyslím nevzdělané jelito, které absolvovalo dvoudenní školení a ví, jak se nahraje inzerát na inzertní portál.
Realitním makléřem, který se Vám skutečně vyplatí, je zkušený profesionál, který je schopen Vám dobře poradit jak prodat za co nejvíc a s nejmenším rizikem a hlavně je Vás schopen obratně provést celým realitním obchodem.
Uživatel serveru RealityMIX.iprima.cz (dále jen „Server“) dostupného na internetové adrese (URL) https://realitymix.iprima.cz, který provozuje společnost DALTEN media s.r.o., se sídlem Na Harfě 916/9a, Praha 9, 190 00, IČO: 271 35 306 (dále jen „Správce“) jako provozovateli tohoto Serveru uděluje svůj výslovný souhlas v souladu s ustanovením § 5 zákona č. 101/2000 Sb. O ochraně osobních údajů a o změně některých zákonů, v platném znění (dále jen „zákon o ochraně osobních údajů“), se zpracováním uživatelem poskytnutých osobních údajů a dalších dat.
Uživatel poskytuje Správci osobní údaje v rozsahu: jméno, příjmení, e-mailová adresa, telefonický kontakt a další data, a to z důvodu projeveného zájmu o nemovitost, kde prostřednictvím služby Serveru Správce osloví Uživatel inzerenta uvedeného v detailu
nemovitosti - Bc. Šimon Jelínek - realitní makléř (IČ 87830809) se zájmem o jeho služby.
Uživatel tyto osobní údaje poskytuje dobrovolně a bere na vědomí, že součástí služeb Správce, které Správce Uživateli poskytuje, je vyhledání všech Uživateli vyhovujících (dle parametrů - cena, typ nemovitosti, lokalita atd.) nemovitostí. Správce za tímto účelem provozuje aplikace Hlídací pes a newsletter. Tyto služby je možné z každého zaslaného emailu odhlásit. Souhlas se zpracováním osobních údajů Uživatel poskytuje Správci na dobu neurčitou s tím, že svůj udělený souhlas může Uživatel kdykoliv na drese správce info@realitymix.cz odvolat. Správce garantuje Uživateli i další práva uvedené v ustanovení §11 a §21 zákoba č. 101/200 Sb. Ve znění pozdějších předpisů.
Více informací o zpracování údajů získáte zde (realitymix.cz/zasady-ochrany-osobnich-udaju)