Moderní zděný dům ve venkovském anglickém stylu se zahradou, loukou a lesem.
Místo, kde každý den může začít i končit v přírodě. Tím se vyznačuje tento výjimečně zdařilý moderní dům ve venkovském anglickém stylu. Jeho dominantou je prosklená zimní zahrada, která plynule přechází v prostornou terasu o výměře 18 m² s dechberoucím výhledem do lesa. Objekt je ideální pro rodinný život.
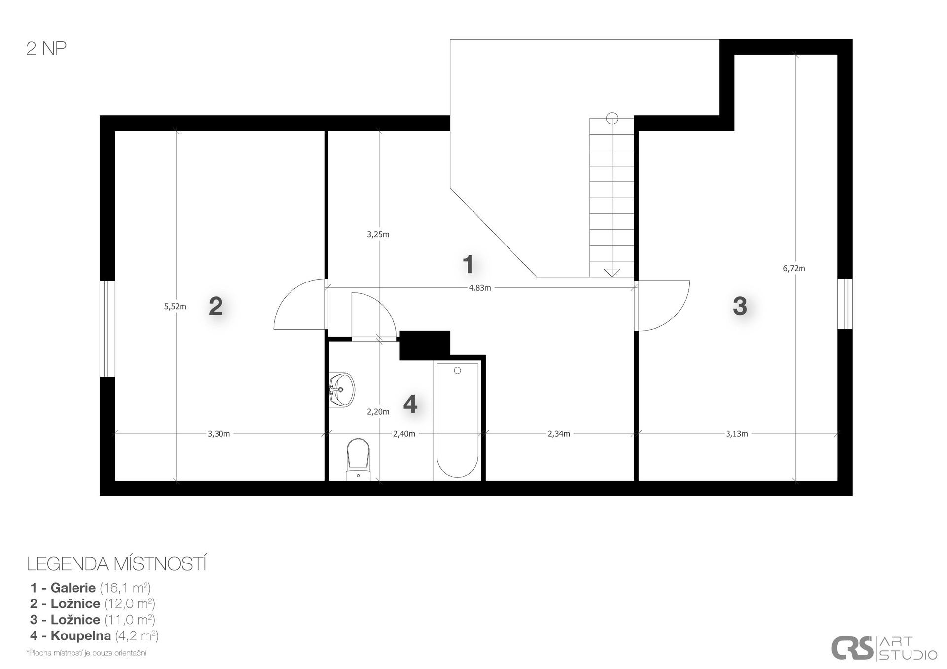
Technické informace:
* Zděný dům s unikátně propojenými společnými prostory
* Užitná plocha domu: 107 m²
* Pozemek: 6 597 m² (zahrada, louka, vlastní les)
* Kvalitní hliníková okna se špičkovými parametry a životností
* Terasa: 18 m²
* Rok výstavby: 2011
* Vytápění: elektrický kotel + krbová kamna s výměníkem (možnost přepínání)
* Voda: napojeno na vlastní studnu s pitnou vodou
* Odpad: jímka
* Příslušenství: 2 koupelny + 1 sprcha s WC v technické místnosti
K domu přicházíte po vlastní lesní cestě. Mezi stromy nenápadně probleskuje široké okno se schodištěm – symbolický vstup do prostoru ticha, zpomalení a rozjímání. Přízemí zaplavuje měkké denní světlo pronikající skrze velká okna. Centrální obytný prostor propojuje kuchyň, jídelnu a obývací pokoj s krbovými kamny a působí hřejivě, útulně a otevřeně.
Interiér domu je plně vybavený a připravený k okamžitému nastěhování. V rámci dispozice 4+KK najdete ve dvou podlažích tři ložnice, dvě koupelny a navíc samostatnou technickou místnost se sprchou a WC s odděleným vstupem z terasy.
Přírodní rámec a lokalita:
Pozemkem protéká Pasecký potok, který přirozeně odděluje pečlivě udržovanou zahradu od navazující louky a vlastního lesa – ideálního pro procházky i houbaření. Nemusíte nikam odcházet – příroda je za dveřmi.
V okolí panuje klid a soukromí, přitom jste stále blízko civilizace:
* 10 minut autem do centra Tábora
* 1 km pěšky ke vlakové zastávce
* 2 zastávky vlakem do Tábora
* 1 km vzdušnou čarou od Velkého rybníka za Balkovou Lhotou
* přímo před odbočkou k pozemku je autobusová zastávka
* Golf klub Čertovo břemeno v Alenině Lhotě 10 km od domu
Město Tábor, vzdálené pouze 10 minut autem od nemovitosti, nabízí širokou škálu občanské vybavenosti, která zajišťuje komfortní a plnohodnotný život.
Tam, kde příroda mluví šeptem a život zpomalí dech, začíná vaše nová realita.
Cena:
Cena na vyžádání
Poznámka:
volejte makléři, Cena k jednání., včetně DPH, včetně poplatků, včetně provize, včetně právního servi
V tomto článku shrneme nejdůležitější věci, které byste si měli promyslet, pokud se chystáte prodat svou nemovitost a chcete, abyste s kupujícím nemusel následně řešit vzniklé problémy.
Jako prodávající nesete rizika spojená nejen se samotným obchodem, ale i se stavem nemovitosti v době prodeje a pro minimalizaci rizik, je dobré se zamyslet nad uvedenými oblastmi.
Realitní makléř má své nezastupitelné místo v realitním obchodu. Realitním makléřem nemyslím nevzdělané jelito, které absolvovalo dvoudenní školení a ví, jak se nahraje inzerát na inzertní portál.
Realitním makléřem, který se Vám skutečně vyplatí, je zkušený profesionál, který je schopen Vám dobře poradit jak prodat za co nejvíc a s nejmenším rizikem a hlavně je Vás schopen obratně provést celým realitním obchodem.
Uživatel serveru RealityMIX.iprima.cz (dále jen „Server“) dostupného na internetové adrese (URL) https://realitymix.iprima.cz, který provozuje společnost DALTEN media s.r.o., se sídlem Na Harfě 916/9a, Praha 9, 190 00, IČO: 271 35 306 (dále jen „Správce“) jako provozovateli tohoto Serveru uděluje svůj výslovný souhlas v souladu s ustanovením § 5 zákona č. 101/2000 Sb. O ochraně osobních údajů a o změně některých zákonů, v platném znění (dále jen „zákon o ochraně osobních údajů“), se zpracováním uživatelem poskytnutých osobních údajů a dalších dat.
Uživatel poskytuje Správci osobní údaje v rozsahu: jméno, příjmení, e-mailová adresa, telefonický kontakt a další data, a to z důvodu projeveného zájmu o nemovitost, kde prostřednictvím služby Serveru Správce osloví Uživatel inzerenta uvedeného v detailu
nemovitosti - Bc. Šimon Jelínek - realitní makléř (IČ 87830809) se zájmem o jeho služby.
Uživatel tyto osobní údaje poskytuje dobrovolně a bere na vědomí, že součástí služeb Správce, které Správce Uživateli poskytuje, je vyhledání všech Uživateli vyhovujících (dle parametrů - cena, typ nemovitosti, lokalita atd.) nemovitostí. Správce za tímto účelem provozuje aplikace Hlídací pes a newsletter. Tyto služby je možné z každého zaslaného emailu odhlásit. Souhlas se zpracováním osobních údajů Uživatel poskytuje Správci na dobu neurčitou s tím, že svůj udělený souhlas může Uživatel kdykoliv na drese správce info@realitymix.cz odvolat. Správce garantuje Uživateli i další práva uvedené v ustanovení §11 a §21 zákoba č. 101/200 Sb. Ve znění pozdějších předpisů.
Více informací o zpracování údajů získáte zde (realitymix.cz/zasady-ochrany-osobnich-udaju)