Rezidence Na Kalvárii, Světlá nad Sázavou | 26 novostaveb nízkoenergetických rodinných domů
Na okraji města Světlá nad Sázavou, v prostředí, kde se příroda Vysočiny potkává s moderním životním stylem, vzniká nová rezidence Na Kalvárii, která přináší 26 nízkoenergetických rodinných domů v podobě dřevostaveb, navržených s důrazem na funkčnost, kvalitu a úsporu energie.
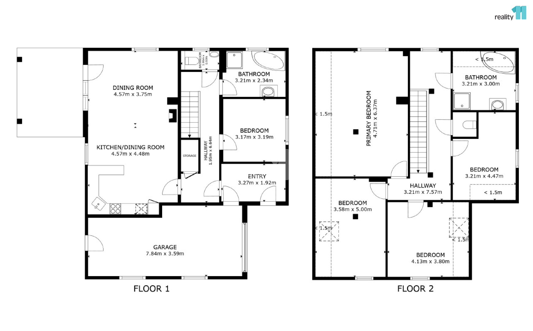
Vybírat můžete ze tří typových domů – řadové domy, dvojdomky nebo samostatné rodinné domy. V rezidenci Na Kalvárii jsou k dispozici buď zcela dokončené domy na klíč, nebo si můžete interiér doladit podle vlastních představ. Každý detail je promyšlený tak, aby nový domov byl nejen krásný, ale i praktický.
Tento samostatný dům s dispozicí 5+kk nabízí dostatek prostoru pro celou rodinu. Otevřený obývací prostor s kuchyní plynule přechází na terasu orientovanou na jih, kam po celý den proudí světlo. Každý dům je vybaven tepelným čerpadlem a fotovoltaickou elektrárnou, což zajišťuje nízké provozní náklady. Nechybí ani krbová kamna, která jistě oceníte během chladnějších dnů. Součástí je zahrada ideální pro rodinné chvíle i relax, nechybí ani možnost bezproblémového parkování v garáži, která je součástí domu.
Nově vznikající čtvrť nabídne moderní prostředí s přátelskou komunitou a pohodovou atmosférou. Díky skvělé dopravní dostupnosti se z lokality snadno dostanete kamkoliv. Na dálnici D1 jste během několika minut, Praha je vzdálena přibližně hodinu cesty, Brno asi hodinu a čtvrt. A v nejbližších letech se cestování ještě zrychlí – připravovaná rychlodráha ze Světlé zkrátí cestu do Prahy na pouhých 30 minut.
Světlá nad Sázavou nabízí vše, co k pohodlnému životu potřebujete – školy, školky, obchody, služby i zdravotní péči. Centrum města máte pár minut chůze od domova a přitom jste na dosah nádherné přírody Vysočiny.
Za projektem stojí lokální renomovaná stavební firma, která propojuje poctivou řemeslnou práci s moderními technologiemi a důrazem na energetickou úspornost. Výsledkem jsou domy, které nejen skvěle vypadají, ale také šetří Vaše náklady.
Fotky Vám mohou napovědět, ale skutečný dojem poznáte až tehdy, když se ocitnete přímo na místě. Projít si ulicí, otevřít dveře typových domů a nacítit atmosféru nově vznikající čtvrti – to je chvíle, kdy pochopíte, proč je rezidence Na Kalvárii výjimečná.
K dispozici máme také 3D virtuální prohlídku, která Vám umožní projít si dům pohodlně z domova a udělat si představu o dispozici i prostoru. Prohlídku na vyžádání velmi rád zašlu.
Kontaktujte mě a domluvte si osobní prohlídku – rád Vám projekt představím a nasdílím s Vámi všechny možné varianty domů, které jsou aktuálně dostupné. Ev. číslo: 27872.
V tomto článku shrneme nejdůležitější věci, které byste si měli promyslet, pokud se chystáte prodat svou nemovitost a chcete, abyste s kupujícím nemusel následně řešit vzniklé problémy.
Jako prodávající nesete rizika spojená nejen se samotným obchodem, ale i se stavem nemovitosti v době prodeje a pro minimalizaci rizik, je dobré se zamyslet nad uvedenými oblastmi.
Realitní makléř má své nezastupitelné místo v realitním obchodu. Realitním makléřem nemyslím nevzdělané jelito, které absolvovalo dvoudenní školení a ví, jak se nahraje inzerát na inzertní portál.
Realitním makléřem, který se Vám skutečně vyplatí, je zkušený profesionál, který je schopen Vám dobře poradit jak prodat za co nejvíc a s nejmenším rizikem a hlavně je Vás schopen obratně provést celým realitním obchodem.
Uživatel serveru RealityMIX.iprima.cz (dále jen „Server“) dostupného na internetové adrese (URL) https://realitymix.iprima.cz, který provozuje společnost DALTEN media s.r.o., se sídlem Na Harfě 916/9a, Praha 9, 190 00, IČO: 271 35 306 (dále jen „Správce“) jako provozovateli tohoto Serveru uděluje svůj výslovný souhlas v souladu s ustanovením § 5 zákona č. 101/2000 Sb. O ochraně osobních údajů a o změně některých zákonů, v platném znění (dále jen „zákon o ochraně osobních údajů“), se zpracováním uživatelem poskytnutých osobních údajů a dalších dat.
Uživatel poskytuje Správci osobní údaje v rozsahu: jméno, příjmení, e-mailová adresa, telefonický kontakt a další data, a to z důvodu projeveného zájmu o nemovitost, kde prostřednictvím služby Serveru Správce osloví Uživatel inzerenta uvedeného v detailu
nemovitosti - Reality 11 (IČ 29132886) se zájmem o jeho služby. Tato společnost je součástí seskupení/sítě/franšízového modelu realitních kanceláří, jejich seznam můžete zobrazit kliknutím na tento odkaz.
Dumrealit.cz (IČ 00537861) , HOME 4 PEOPLE (IČ 29132886) , Reality 11 (IČ 29132886) , REAL ESTATE CZECH REPUBLIC a.s. (IČ 29132886) , Národní Realitní Holding a.s. (IČ 02918897)
Uživatel tyto osobní údaje poskytuje dobrovolně a bere na vědomí, že součástí služeb Správce, které Správce Uživateli poskytuje, je vyhledání všech Uživateli vyhovujících (dle parametrů - cena, typ nemovitosti, lokalita atd.) nemovitostí. Správce za tímto účelem provozuje aplikace Hlídací pes a newsletter. Tyto služby je možné z každého zaslaného emailu odhlásit. Souhlas se zpracováním osobních údajů Uživatel poskytuje Správci na dobu neurčitou s tím, že svůj udělený souhlas může Uživatel kdykoliv na drese správce info@realitymix.cz odvolat. Správce garantuje Uživateli i další práva uvedené v ustanovení §11 a §21 zákoba č. 101/200 Sb. Ve znění pozdějších předpisů.
Více informací o zpracování údajů získáte zde (realitymix.cz/zasady-ochrany-osobnich-udaju)