Prodej RD po rekonstrukci ve Stříbrné (Krušné hory)
Vítám vás v obci Stříbrná 694, v okrese Sokolov, v Karlovarském kraji. Ráda bych Vám zde představila k prodeji moc pěkný RD po rozsáhlé rekonstrukci, zaměřené na zachování původního rázu, s důrazem na udržení horského charakteru domu. Navíc s velkou zahradou.
Podívejte se na samostatnou stránku domu v odkaze ve video prohlídce.
Prohlídky možné od 5.1.2026
Základní informace:
> 1999 2000 rozsáhlá rekonstrukce
> užitná plocha 178 m2
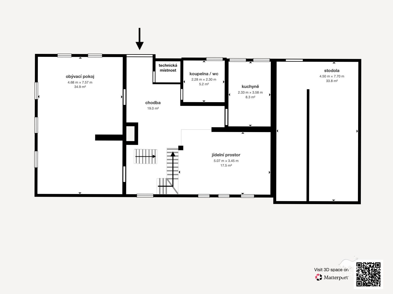
> pozemek 2 356 m2
> částečně podsklepeno (14,4 m2)
> stodola (33,8 m2)
Dům prošel v letech 19992000 kompletní rekonstrukcí:
> nosných konstrukcí
> podlah
> stěn a vnitřních omítek
> stropů
> izolací proti vlhkosti
> elektroinstalace
> výměny výplní otvorů (oken a dveří)
> úprav dispozic
> vybudování nové koupelny, WC
> nové jímky
Sítě, energie:
> elektřina v mědi
> plyn není zaveden, je v dosahu cca 200 m pod domem
> odpad sveden do jímky, v roce 2026 se plánuje napojení na obecní kanalizaci
> voda z vlastní studny
> ohřev vody bojler
> topení 2x kamna + přímotopy
Byly kompletně opraveny základy, obvodové zdivo, podlahy, stropy i krov. Kompletní izolace proti vlhkosti, podlahové skladby, omítky, elektroinstalace, vytápění i koupelna. Součástí je také nová betonová jímka. V roce 2017 je celá střecha s krytinou Cembrit.
Dnes dům nabízí pohodlné a ihned obyvatelné bydlení. K dispozici je komfortní obývací a jídelní část s navazující kuchyní, koupelna se sprchovým koutem a toaletou a podkroví, které zaujme velkým otevřeným prostorem a navíc dalším samostatným pokojem.
Dům se nabízí kompletně vybavený.
Na dům navazuje stodola, vhodná k uskladnění např. různého nářadí a náčiní, na velké zahradě okolo domu je k dispozici dřevník s velkou zásobou dřeva.
Lokalita:
Stříbrná leží v klidné části Krušných hor, s výborným přístupem do okolních měst i zimních středisek. Lokalita je atraktivní celoročně: v létě turistika a cyklotrasy, v zimě běžky, sjezdové lyžování i rekreační aktivity. Ski areál Lišák je dostupný cca 1,5–2 km od centra.
Oblíbenou akcí je novoroční výstup na nejvyšší vrchol západní části Krušných hor Špičák (991 m n.m.).
Přímo v obci je k dispozici obecní úřad, restaurace, skiareál, koupaliště, hospoda a pošta.
Uvedené výměry jsou orientační.
Energetický štítek je ve zpracování, z toho důvodu prozatím uvádím třídu G.
Pokud hledáte klidné místo, které nabízí krásnou přírodu, čerstvý vzduch a komfortní bydlení, ať už víkendově nebo celoročně, ozvěte se mi, ráda vám vše osobně ukážu.
V tomto článku shrneme nejdůležitější věci, které byste si měli promyslet, pokud se chystáte prodat svou nemovitost a chcete, abyste s kupujícím nemusel následně řešit vzniklé problémy.
Jako prodávající nesete rizika spojená nejen se samotným obchodem, ale i se stavem nemovitosti v době prodeje a pro minimalizaci rizik, je dobré se zamyslet nad uvedenými oblastmi.
Realitní makléř má své nezastupitelné místo v realitním obchodu. Realitním makléřem nemyslím nevzdělané jelito, které absolvovalo dvoudenní školení a ví, jak se nahraje inzerát na inzertní portál.
Realitním makléřem, který se Vám skutečně vyplatí, je zkušený profesionál, který je schopen Vám dobře poradit jak prodat za co nejvíc a s nejmenším rizikem a hlavně je Vás schopen obratně provést celým realitním obchodem.
Uživatel serveru RealityMIX.iprima.cz (dále jen „Server“) dostupného na internetové adrese (URL) https://realitymix.iprima.cz, který provozuje společnost DALTEN media s.r.o., se sídlem Na Harfě 916/9a, Praha 9, 190 00, IČO: 271 35 306 (dále jen „Správce“) jako provozovateli tohoto Serveru uděluje svůj výslovný souhlas v souladu s ustanovením § 5 zákona č. 101/2000 Sb. O ochraně osobních údajů a o změně některých zákonů, v platném znění (dále jen „zákon o ochraně osobních údajů“), se zpracováním uživatelem poskytnutých osobních údajů a dalších dat.
Uživatel poskytuje Správci osobní údaje v rozsahu: jméno, příjmení, e-mailová adresa, telefonický kontakt a další data, a to z důvodu projeveného zájmu o nemovitost, kde prostřednictvím služby Serveru Správce osloví Uživatel inzerenta uvedeného v detailu
nemovitosti - TAURUM reality s.r.o. (IČ 05904498) se zájmem o jeho služby.
Uživatel tyto osobní údaje poskytuje dobrovolně a bere na vědomí, že součástí služeb Správce, které Správce Uživateli poskytuje, je vyhledání všech Uživateli vyhovujících (dle parametrů - cena, typ nemovitosti, lokalita atd.) nemovitostí. Správce za tímto účelem provozuje aplikace Hlídací pes a newsletter. Tyto služby je možné z každého zaslaného emailu odhlásit. Souhlas se zpracováním osobních údajů Uživatel poskytuje Správci na dobu neurčitou s tím, že svůj udělený souhlas může Uživatel kdykoliv na drese správce info@realitymix.cz odvolat. Správce garantuje Uživateli i další práva uvedené v ustanovení §11 a §21 zákoba č. 101/200 Sb. Ve znění pozdějších předpisů.
Více informací o zpracování údajů získáte zde (realitymix.cz/zasady-ochrany-osobnich-udaju)