Novostavba mezonetového bytu ve vyhledávané lokalitě u Dobříše
Na západním okraji nové zástavby ve Staré Huti s výhledem na Dobříš, najdete nový patrový dům, se třemi, stavebně oddělenými mezonetovými jednotkami. Dispozice u střední 5+KK, krajové potom 5+1, výměru podlahové plochy cca 133 m2 (definitní plocha bude zaměřena po dokončení vnitřních omítek) a navíc terasu v přízemí, dvě lodžie v patře, úložný prostor / případně ateliér na půdě, dvě parkovací stání a podíl na zahradě, předpokládáme cca 300 m2, po dohodě možné využití přilehlého pozemku zeleně. Energetická náročnost je prozatím stanovena na B. Nabízíme vám tak možnost se připojit k celé řadě spokojených obyvatel této nové části obce, jen několik kroků od lesů, rybníků a v příjemném prostředí k životu přitom s dobrou dostupností Prahy.
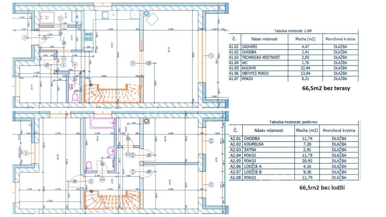
V přízemí domu najdete prostorný obývací pokoj, s výstupem na terasu, kuchyni s jídelnou, kde je řešeno i schodiště do patra, malý pokoj, WC, chodbu a technickou místnost. V té bude umístěno ovládání tepelného čerpadla a zásobníky na vodu. V obývacím pokoji je k dispozici komín pro možnou instalaci krbu nebo krbových kamen. V patře potom hlavní ložnici, dva zrcadlově situované pokoje s výstupem na lodžii, prostornou koupelnu a šatnu. Dalším benefitem je i úložný prostor pod sedlovou střechou po celé ploše jednotky. Vybrané pohledy na vnitřní vybavení jsou vizualizací možného finálního řešení. Výhled na západní stranu směrem k Dobříši již nebude stíněn další případnou výstavbou. Ve Staré Huti najdete základní občanskou vybavenost (obchod, restaurace, školu, školku, dětská hřiště) a ostatní kompletně v kilometr vzdálené Dobříši. Pro cestu do Prahy můžete volit dálnici D4 (exit 29), vlak nebo autobusové spojení. Do Příbrami máte jen několik minut autem.
aktuálně jsou dokončeny vnitřní omítky, osazena okna a dveře. Uvedená cena zahrnuje standardní obklady, plovoucí podlahy, vybavení koupelen a máte možnost volby provedení. Již dnes máte možnost si rezervovat některou ze tří jednotek, následně bude podepsána SoSBK se strukturou úhrad a po kolaudaci objektu již budou připraveny kupní smlouvy a převod a předání finalizovány cca do 4 měsíců od podpisu smlouvy. Případná volba nadstandardních prvků (podlahy, dlažby, sanita a další detaily) bude řešena se zájemcem samostatným doplatkem.
Krajové jednotky jsou nabízeny za 10.918.000 Kč
Cena:
9 996 000 Kč
Poznámka:
standardní vybavení, nadstandardy z příplatek
Datum k nastěhování:
07.09.2025
Dispozice/podlahová plocha:
5+kk/133 m²
Číslo zakázky:
REALITYMIX-17222
Podrobné informace
Dispozice bytu:5+kk
Číslo podlaží v domě:1
Počet podlaží objektu:2
Celková podlahová plocha:133 m²
Druh objektu:cihlová
Stav objektu:ve výstavbě (hrubá stavba)
Vlastnictví:osobní
Lodžie:10 m²
Terasa:20 m²
Umístění objektu:klidná část obce
Doprava:vlak, dálnice, silnice, autobus
Elektřina:Elektro - 230 V, Elektro - 400 V
Voda:Voda - dálkový vodovod
Plyn:Plynovod
Topení:Ústřední - elektrické, Jiné
Odpad:Kanalizace
Energetická náročnost budovy:B - Velmi úsporná
Ukazatel energetické náročnosti budovy:50 kWh/m²
Energetický ukazatel podle vyhlášky:č. 78/2013 Sb.
V tomto článku shrneme nejdůležitější věci, které byste si měli promyslet, pokud se chystáte prodat svou nemovitost a chcete, abyste s kupujícím nemusel následně řešit vzniklé problémy.
Jako prodávající nesete rizika spojená nejen se samotným obchodem, ale i se stavem nemovitosti v době prodeje a pro minimalizaci rizik, je dobré se zamyslet nad uvedenými oblastmi.
Realitní makléř má své nezastupitelné místo v realitním obchodu. Realitním makléřem nemyslím nevzdělané jelito, které absolvovalo dvoudenní školení a ví, jak se nahraje inzerát na inzertní portál.
Realitním makléřem, který se Vám skutečně vyplatí, je zkušený profesionál, který je schopen Vám dobře poradit jak prodat za co nejvíc a s nejmenším rizikem a hlavně je Vás schopen obratně provést celým realitním obchodem.
Uživatel serveru RealityMIX.iprima.cz (dále jen „Server“) dostupného na internetové adrese (URL) https://realitymix.iprima.cz, který provozuje společnost DALTEN media s.r.o., se sídlem Na Harfě 916/9a, Praha 9, 190 00, IČO: 271 35 306 (dále jen „Správce“) jako provozovateli tohoto Serveru uděluje svůj výslovný souhlas v souladu s ustanovením § 5 zákona č. 101/2000 Sb. O ochraně osobních údajů a o změně některých zákonů, v platném znění (dále jen „zákon o ochraně osobních údajů“), se zpracováním uživatelem poskytnutých osobních údajů a dalších dat.
Uživatel poskytuje Správci osobní údaje v rozsahu: jméno, příjmení, e-mailová adresa, telefonický kontakt a další data, a to z důvodu projeveného zájmu o nemovitost, kde prostřednictvím služby Serveru Správce osloví Uživatel inzerenta uvedeného v detailu
nemovitosti - QARA s.r.o. (IČ 01740113) se zájmem o jeho služby. Tato společnost je součástí seskupení/sítě/franšízového modelu realitních kanceláří, jejich seznam můžete zobrazit kliknutím na tento odkaz.
QARA s.r.o. Ostrava (IČ 01740113) , QARA s.r.o. Brno (IČ 01740113) , QARA s.r.o. (IČ 01740113)
Uživatel tyto osobní údaje poskytuje dobrovolně a bere na vědomí, že součástí služeb Správce, které Správce Uživateli poskytuje, je vyhledání všech Uživateli vyhovujících (dle parametrů - cena, typ nemovitosti, lokalita atd.) nemovitostí. Správce za tímto účelem provozuje aplikace Hlídací pes a newsletter. Tyto služby je možné z každého zaslaného emailu odhlásit. Souhlas se zpracováním osobních údajů Uživatel poskytuje Správci na dobu neurčitou s tím, že svůj udělený souhlas může Uživatel kdykoliv na drese správce info@realitymix.cz odvolat. Správce garantuje Uživateli i další práva uvedené v ustanovení §11 a §21 zákoba č. 101/200 Sb. Ve znění pozdějších předpisů.
Více informací o zpracování údajů získáte zde (realitymix.cz/zasady-ochrany-osobnich-udaju)