Prodej bytu 2+1 - 64 m² + sklep, Rašínova, Soběslav
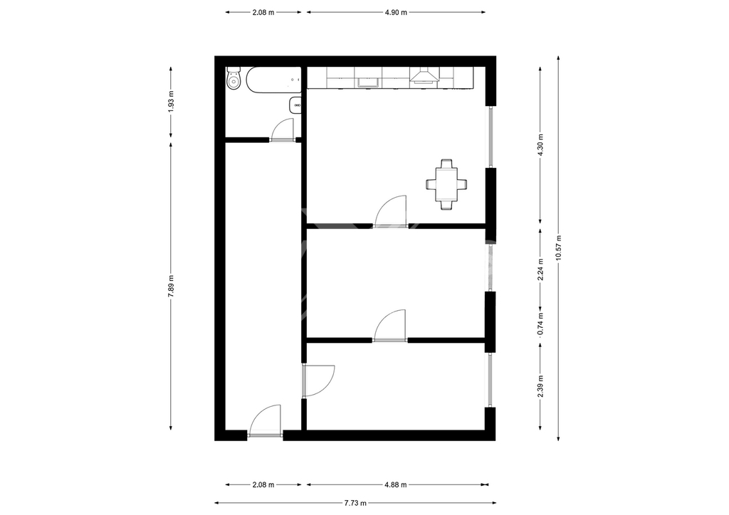
Družstevní byt o dispozici 2+1 a užitné ploše 64 m², který se nachází ve druhém podlaží cihlového domu v klidné části Soběslavi – na ulici Rašínova.
Byt je určen ke kompletní rekonstrukci, což poskytuje skvělou investiční příležitost nebo si vytvořit domov přesně podle vlastního vkusu a potřeb.
Dispozičně nabízí tři místnosti, kde v jedné z nich si vytvoříte samostatnou kuchyň, koupelnu, WC a předsíň s možností vytvoření úložného prostoru.
Vytápění je možné i kamny na tuhá paliva, která jsou napojena na funkční komín – ideální jako úsporná nebo záložní varianta.
K bytu náleží sklepní kóje, kóje v půdním prostoru domu a dále dřevník ve dvoře.
Občanská vybavenost:
V okolí se nachází několik obchodů s potravinami, drogerií a dalšími základními potřebami. V Soběslavi působí několik středních škol, včetně Gymnázia Soběslav a střední školy řemeslné a základní školy na Wilsonově ulici. Ve městě jsou dostupné lékařské ordinace, lékárny a další zdravotnická zařízení.
Volnočasové aktivity:
Soběslav nabízí řadu možností pro volný čas, včetně sportovních zařízení, kulturních akcí a přírodních lokalit vhodných pro procházky a rekreaci.
Dopravní dostupnost:
Soběslav má moderní dopravní terminál, který umožňuje pohodlný přestup mezi vlaky a autobusy. Město je dobře napojeno na regionální autobusové linky, což zajišťuje snadnou dostupnost okolních měst a obcí. Díky přeložce silnice II/135 je zajištěn plynulý průjezd městem a snadný přístup na hlavní silniční tahy.
Byt je v družstevním vlastnictví se splacenou anuitou, momentálně bez možnosti převodu do osobního vlastnictví.
PENB nebyl dodán, proto prozatím uvádíme třídu G.
Zaujala vás tato nabídka? Neváhejte mě kontaktovat pro více informací nebo si rovnou domluvit termín prohlídky.
Realitní makléř má své nezastupitelné místo v realitním obchodu. Realitním makléřem nemyslím nevzdělané jelito, které absolvovalo dvoudenní školení a ví, jak se nahraje inzerát na inzertní portál.
Realitním makléřem, který se Vám skutečně vyplatí, je zkušený profesionál, který je schopen Vám dobře poradit jak prodat za co nejvíc a s nejmenším rizikem a hlavně je Vás schopen obratně provést celým realitním obchodem.
Uživatel serveru RealityMIX.iprima.cz (dále jen „Server“) dostupného na internetové adrese (URL) https://realitymix.iprima.cz, který provozuje společnost DALTEN media s.r.o., se sídlem Na Harfě 916/9a, Praha 9, 190 00, IČO: 271 35 306 (dále jen „Správce“) jako provozovateli tohoto Serveru uděluje svůj výslovný souhlas v souladu s ustanovením § 5 zákona č. 101/2000 Sb. O ochraně osobních údajů a o změně některých zákonů, v platném znění (dále jen „zákon o ochraně osobních údajů“), se zpracováním uživatelem poskytnutých osobních údajů a dalších dat.
Uživatel poskytuje Správci osobní údaje v rozsahu: jméno, příjmení, e-mailová adresa, telefonický kontakt a další data, a to z důvodu projeveného zájmu o nemovitost, kde prostřednictvím služby Serveru Správce osloví Uživatel inzerenta uvedeného v detailu
nemovitosti - Nyxus reality s.r.o. (IČ 17946166) se zájmem o jeho služby.
Uživatel tyto osobní údaje poskytuje dobrovolně a bere na vědomí, že součástí služeb Správce, které Správce Uživateli poskytuje, je vyhledání všech Uživateli vyhovujících (dle parametrů - cena, typ nemovitosti, lokalita atd.) nemovitostí. Správce za tímto účelem provozuje aplikace Hlídací pes a newsletter. Tyto služby je možné z každého zaslaného emailu odhlásit. Souhlas se zpracováním osobních údajů Uživatel poskytuje Správci na dobu neurčitou s tím, že svůj udělený souhlas může Uživatel kdykoliv na drese správce info@realitymix.cz odvolat. Správce garantuje Uživateli i další práva uvedené v ustanovení §11 a §21 zákoba č. 101/200 Sb. Ve znění pozdějších předpisů.
Více informací o zpracování údajů získáte zde (realitymix.cz/zasady-ochrany-osobnich-udaju)