Novostavba 4 kk bungalovu v Sadově u Karlových Varů
Nabízíme k prodeji moderní novostavbu bungalovu 4 kk, který situován v klidné obytné lokalitě v blízkosti lesa a 7 minut do Karlových Varů, jenž poskytuje ideální možnosti pro rodinné bydlení. Pozemek o velikosti 690 m2 nabízí dost prostoru pro realizaci vysněné zahrady.
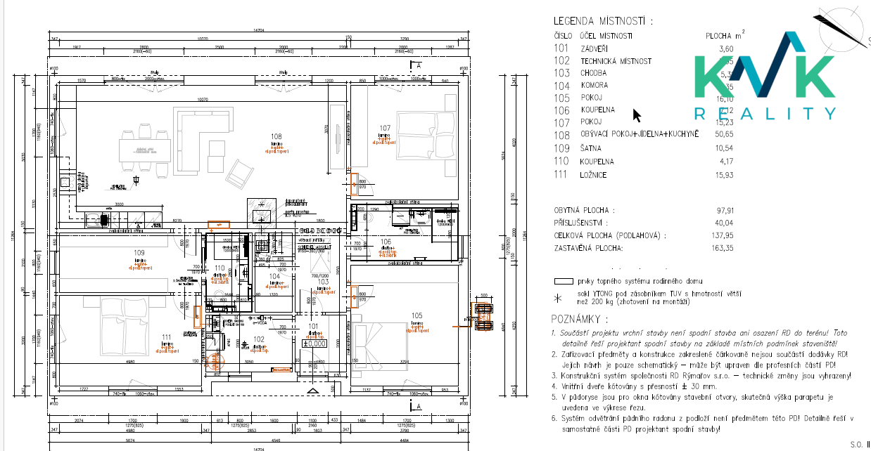
Dům 4kk s užitnou plochou 160 m2 je řešen prakticky, vybaven kvalitními materiály a moderními technologiemi. Splňuje nároky na energetickou úspornost s certifikací A. Dispozice této nemovitosti je řešená velmi intuitivně. Z předsíně se po pravé straně nachází technická místnost, kde je srdce domu se zabudovanou fotovoltarikou jako zdroj tepla a také bojler. Vedle se nachází spíž pro uložení potravin. Naproti je první pokoj, který sousedí s koupenou. Dále po pravé straně poskytuje pohodlí s výhledem do zahrady druhý pokoj. Společenská místnost s krbovými kamny (výkon 12-14 kW), klimatizací a prostorem pro kuchyňskou linku je situovaná na jižní stranu. Celý tento prostor má dva vstupy na zahradu. Podlahy ve společenské místnosti jsou pokryté vinylem o tloušťce 1 cm, v ložnicích se projdeme po laminátu o tloušťce 1 cm a v technických místnostech se nachází dlažba. V celém domě je položeno pro podlahové topení (folie a kabel) a zabudované termostaty ovládané přes Wi-Fi, jenž zajišťuje příjemné teplo v každém ročním období. Topení je doplněno klimatizací, která nabízí jak chlazení, tak vytápění, což přispívá k maximálnímu komfortu bydlení.
K ohřevu vody slouží elektrický bojler o objemu 250 litrů, což zajišťuje dostatek teplé vody pro celou rodinu. V obývací části se nacházejí krbová kamna, která dodávají domu příjemnou atmosféru a dodatečné teplo během chladnějších měsíců.
Dům je osazen solárními panely o výkonu 8 kW se záložní baterií na 12 kW k uložení nebo na prodej, které umožňují využívat sluneční energii a tím snižovat náklady na elektrickou energii. Bezpečnostní systém zahrnuje alarm ovládaný též dálkově.
V pěší vzdálenosti se nachází obecní úřad, kulturní dům, MŠ, ZŠ 1.st., obchod s potravinami, pošta.
Tato nemovitost je ideálním místem pro ty, kteří hledají komfortní a moderní bydlení v přírodě a zároveň pár minut do města s vysoce efektivním provozem.
V případě zájmu o prohlídku nás neváhejte kontaktovat.
V tomto článku shrneme nejdůležitější věci, které byste si měli promyslet, pokud se chystáte prodat svou nemovitost a chcete, abyste s kupujícím nemusel následně řešit vzniklé problémy.
Jako prodávající nesete rizika spojená nejen se samotným obchodem, ale i se stavem nemovitosti v době prodeje a pro minimalizaci rizik, je dobré se zamyslet nad uvedenými oblastmi.
Realitní makléř má své nezastupitelné místo v realitním obchodu. Realitním makléřem nemyslím nevzdělané jelito, které absolvovalo dvoudenní školení a ví, jak se nahraje inzerát na inzertní portál.
Realitním makléřem, který se Vám skutečně vyplatí, je zkušený profesionál, který je schopen Vám dobře poradit jak prodat za co nejvíc a s nejmenším rizikem a hlavně je Vás schopen obratně provést celým realitním obchodem.
Uživatel serveru RealityMIX.iprima.cz (dále jen „Server“) dostupného na internetové adrese (URL) https://realitymix.iprima.cz, který provozuje společnost DALTEN media s.r.o., se sídlem Na Harfě 916/9a, Praha 9, 190 00, IČO: 271 35 306 (dále jen „Správce“) jako provozovateli tohoto Serveru uděluje svůj výslovný souhlas v souladu s ustanovením § 5 zákona č. 101/2000 Sb. O ochraně osobních údajů a o změně některých zákonů, v platném znění (dále jen „zákon o ochraně osobních údajů“), se zpracováním uživatelem poskytnutých osobních údajů a dalších dat.
Uživatel poskytuje Správci osobní údaje v rozsahu: jméno, příjmení, e-mailová adresa, telefonický kontakt a další data, a to z důvodu projeveného zájmu o nemovitost, kde prostřednictvím služby Serveru Správce osloví Uživatel inzerenta uvedeného v detailu
nemovitosti - KVK Reality s.r.o. (IČ 08632201) se zájmem o jeho služby.
Uživatel tyto osobní údaje poskytuje dobrovolně a bere na vědomí, že součástí služeb Správce, které Správce Uživateli poskytuje, je vyhledání všech Uživateli vyhovujících (dle parametrů - cena, typ nemovitosti, lokalita atd.) nemovitostí. Správce za tímto účelem provozuje aplikace Hlídací pes a newsletter. Tyto služby je možné z každého zaslaného emailu odhlásit. Souhlas se zpracováním osobních údajů Uživatel poskytuje Správci na dobu neurčitou s tím, že svůj udělený souhlas může Uživatel kdykoliv na drese správce info@realitymix.cz odvolat. Správce garantuje Uživateli i další práva uvedené v ustanovení §11 a §21 zákoba č. 101/200 Sb. Ve znění pozdějších předpisů.
Více informací o zpracování údajů získáte zde (realitymix.cz/zasady-ochrany-osobnich-udaju)