Prodej rodinného domu 4+1 s rovinatým pozemkem 863 m², Řehlovice - Dubice
Rodinný dům 4+1 s velkou zahradou, garáží a krásným výhledem – Dubice u Řehlovic
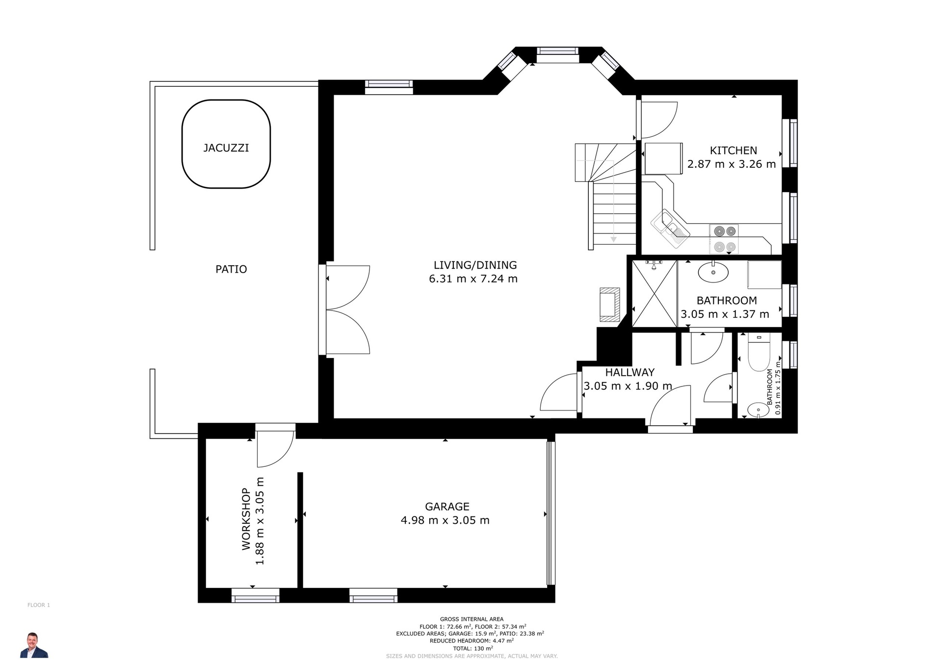
Hledáte místo, kde se snoubí klid přírody s komfortem rodinného bydlení? Tento samostatně stojící dům o dispozici 4+1 a užitné ploše cca 130 m² vám nabídne přesně to. Nachází se v oblíbené lokalitě Dubice, která je vstupní branou do Českého středohoří – jen pár minut od Ústí nad Labem a Teplic.
Dispozice a vybavení
V přízemí vás přivítá prostorný obývací pokoj s krbem, který navazuje na krytou terasu s vířivkou – ideální pro celoroční relax. Kuchyně je samostatná a prakticky řešená. Dále zde najdete koupelnu se sprchovým koutem a vstup do garáže s dílnou.
V patře jsou tři ložnice, koupelna s vanou a praktická komora. Nad obytnou částí je půda, kterou lze využít jako úložný prostor.
Pozemek a zahrada
Celková výměra pozemku je cca 960 m². Na zahradě najdete nejen dostatek prostoru pro hry dětí, ale i skleník, dílnu a zahradní domek. Milovníci pěstování ocení připravené záhony a skleník, kutilové zase vlastní dílnu.
4+1, užitná plocha cca 130 m²
Velká zahrada se skleníkem a dílnou
Krytá terasa s vířivkou
Garáž s dílnou a dalšími úložnými prostory
Dvě koupelny – komfortní řešení pro rodinu
Klidná lokalita s výhledy do krajiny
Inženýrské sítě:
-vodovodní řad
-elektřina
-veřejná hloubková kanalizace
Lokalita Dubice – Řehlovice
Dubice jsou vyhledávanou lokalitou pro svou klidnou atmosféru a krásnou okolní přírodu. Zároveň zde máte rychlé napojení na dálnici D8, takže jste v Ústí nad Labem či Teplicích během pár minut a v Praze za půl hodiny.
Tento dům je ideální volbou pro rodinu, která hledá soukromí, prostor a přírodu na dosah, ale zároveň potřebuje rychlou dostupnost města.
K této nabídce máme připravenou kompletní dokumentaci, kterou vám rádi představíme ještě před prohlídkou.
Navíc se můžete domem projít pomocí virtuální prohlídky z pohodlí vašeho domova.
Kontaktujte nás pro sjednání termínu prohlídky.
Cena:
Rezervováno
Číslo zakázky:
REALITYMIX-100454
Podrobné informace
Poloha objektu:samostatný
Druh objektu:cihlová
Stav objektu:dobrý
Počet podlaží objektu:2
Typ domu:patrový
Zastavěná plocha:98 m²
Plocha parcely:765 m²
Užitná plocha:130 m²
Ostatní:Garáž
Doprava:dálnice, silnice
Komunikace:asfaltová
Elektřina:Elektro - 230 V, Elektro - 400 V
Voda:Voda - dálkový vodovod
Telekomunikace:Internet
Topení:Lokální - tuhá paliva, Ústřední - elektrické
V tomto článku shrneme nejdůležitější věci, které byste si měli promyslet, pokud se chystáte prodat svou nemovitost a chcete, abyste s kupujícím nemusel následně řešit vzniklé problémy.
Jako prodávající nesete rizika spojená nejen se samotným obchodem, ale i se stavem nemovitosti v době prodeje a pro minimalizaci rizik, je dobré se zamyslet nad uvedenými oblastmi.
Realitní makléř má své nezastupitelné místo v realitním obchodu. Realitním makléřem nemyslím nevzdělané jelito, které absolvovalo dvoudenní školení a ví, jak se nahraje inzerát na inzertní portál.
Realitním makléřem, který se Vám skutečně vyplatí, je zkušený profesionál, který je schopen Vám dobře poradit jak prodat za co nejvíc a s nejmenším rizikem a hlavně je Vás schopen obratně provést celým realitním obchodem.
Uživatel serveru RealityMIX.iprima.cz (dále jen „Server“) dostupného na internetové adrese (URL) https://realitymix.iprima.cz, který provozuje společnost DALTEN media s.r.o., se sídlem Na Harfě 916/9a, Praha 9, 190 00, IČO: 271 35 306 (dále jen „Správce“) jako provozovateli tohoto Serveru uděluje svůj výslovný souhlas v souladu s ustanovením § 5 zákona č. 101/2000 Sb. O ochraně osobních údajů a o změně některých zákonů, v platném znění (dále jen „zákon o ochraně osobních údajů“), se zpracováním uživatelem poskytnutých osobních údajů a dalších dat.
Uživatel poskytuje Správci osobní údaje v rozsahu: jméno, příjmení, e-mailová adresa, telefonický kontakt a další data, a to z důvodu projeveného zájmu o nemovitost, kde prostřednictvím služby Serveru Správce osloví Uživatel inzerenta uvedeného v detailu
nemovitosti - Prosperity Financial Services a.s. (IČ 02745836) se zájmem o jeho služby. Tato společnost je součástí seskupení/sítě/franšízového modelu realitních kanceláří, jejich seznam můžete zobrazit kliknutím na tento odkaz.
Prosperity Living s.r.o. (IČ 23446731) , Prosperity Financial Services a.s. (IČ 02745836)
Uživatel tyto osobní údaje poskytuje dobrovolně a bere na vědomí, že součástí služeb Správce, které Správce Uživateli poskytuje, je vyhledání všech Uživateli vyhovujících (dle parametrů - cena, typ nemovitosti, lokalita atd.) nemovitostí. Správce za tímto účelem provozuje aplikace Hlídací pes a newsletter. Tyto služby je možné z každého zaslaného emailu odhlásit. Souhlas se zpracováním osobních údajů Uživatel poskytuje Správci na dobu neurčitou s tím, že svůj udělený souhlas může Uživatel kdykoliv na drese správce info@realitymix.cz odvolat. Správce garantuje Uživateli i další práva uvedené v ustanovení §11 a §21 zákoba č. 101/200 Sb. Ve znění pozdějších předpisů.
Více informací o zpracování údajů získáte zde (realitymix.cz/zasady-ochrany-osobnich-udaju)