Světlý, prostorný byt 3+kk se 2 terasami a garážovým stáním
Nabízíme Vám prostorný vzdušný byt 3+kk se 2 terasami, nádherným výhledem a garážovým stáním.
Byt se nachází rezidenčním domě v Hyacintové ul. v Praze 10 - Záběhlicích. Lokalita je klidná, s výbornou dopravní dostupností - autobusová zastávka je jen cca. 2 minuty chůze od domu a během několika málo minut se pohodlně dostane ke stanici metra A Strašnická. V okolí se nachází obchody, supermarkety, poliklinika. Blízkost mateřské a základní školy je samozřejmostí. Za většími nákupy můžete vyrazit do nedalekého obchodního centra Vivo Hostivař. Milovníci procházek a aktivního odpočinku jistě uvítají blízkost klidové zóny podél Botiče, Záběhlického zámku a rybníku Hamr, kde se také nachází různá sportoviště.
Byt je situován v 5. NP, o Vaše pohodlí a bezpečnost se stará 24 hodinová recepční služba s ostrahou nacházející se v přízemí domu.
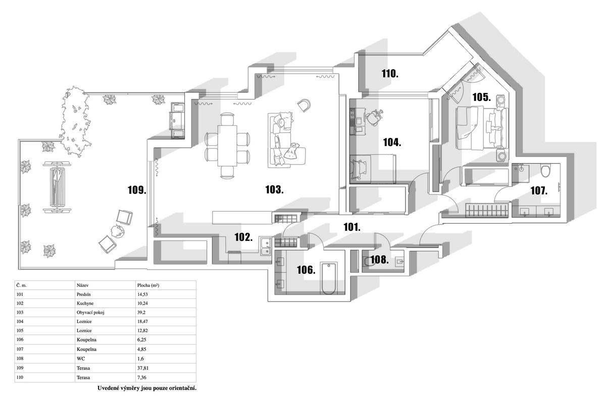
Byt má celkovou plochu 108 m2, náleží k němu sklep 2 m2 a 2 terasy o plochách 38 m2 a 7 m2.
Byt je velmi prostorný a světlý. Při vstupu Vás jistě zaujme prostorná hala, ze které je samostatný přístup do všech místností v bytě. Rozlehlý obývací pokoj s kuchyní má celkem 49 m2, naleznete v něm dostatek prostoru pro příjemné rodinné stolování či posezení s přáteli. Z obývacího pokoje je přístup na jihozápadně orientovanou terasu 38 m2. Tento prostor vám rozšíří vaše pohodlí a komfort v teplejším období, jistě zde najdou svůj kout nejen milovníci sluníčka, ale můžete terasu využít také k relaxaci po náročném dni nebo grilování.
Ve druhé části bytu se nachází 2 samostatné pokoje, z každého je přístup na menší terasu. Větší pokoj má vlastní šatnu a koupelnu.
Byt je ve velmi dobrém stavu, při jeho realizaci byly použity nadstandardní, kvalitní materiály a celý byt působí velmi příjemným, útulným dojmem. V celém bytě se nachází vestavěné skříně na míru vyhotovené z třešňového dřeva v kombinaci s mléčným sklem, stejně jako vnitřní dveře v bytě. Kuchyňská linka je vybavena veškerými spotřebiči. Na podlaze je položena dlažba, bambusová podlaha, v ložnici koberec. V jedné koupelně se nachází vířivá vana, ve druhé sprchový kout.
K bytu náleží parkovací stání umístěné v suterénu domu.
Byt bude k dispozici po dohodě.
Neváhejte a domluvte si prohlídku tohoto jedinečného bytu ještě dnes.
V tomto článku shrneme nejdůležitější věci, které byste si měli promyslet, pokud se chystáte prodat svou nemovitost a chcete, abyste s kupujícím nemusel následně řešit vzniklé problémy.
Jako prodávající nesete rizika spojená nejen se samotným obchodem, ale i se stavem nemovitosti v době prodeje a pro minimalizaci rizik, je dobré se zamyslet nad uvedenými oblastmi.
Realitní makléř má své nezastupitelné místo v realitním obchodu. Realitním makléřem nemyslím nevzdělané jelito, které absolvovalo dvoudenní školení a ví, jak se nahraje inzerát na inzertní portál.
Realitním makléřem, který se Vám skutečně vyplatí, je zkušený profesionál, který je schopen Vám dobře poradit jak prodat za co nejvíc a s nejmenším rizikem a hlavně je Vás schopen obratně provést celým realitním obchodem.
Uživatel serveru RealityMIX.iprima.cz (dále jen „Server“) dostupného na internetové adrese (URL) https://realitymix.iprima.cz, který provozuje společnost DALTEN media s.r.o., se sídlem Na Harfě 916/9a, Praha 9, 190 00, IČO: 271 35 306 (dále jen „Správce“) jako provozovateli tohoto Serveru uděluje svůj výslovný souhlas v souladu s ustanovením § 5 zákona č. 101/2000 Sb. O ochraně osobních údajů a o změně některých zákonů, v platném znění (dále jen „zákon o ochraně osobních údajů“), se zpracováním uživatelem poskytnutých osobních údajů a dalších dat.
Uživatel poskytuje Správci osobní údaje v rozsahu: jméno, příjmení, e-mailová adresa, telefonický kontakt a další data, a to z důvodu projeveného zájmu o nemovitost, kde prostřednictvím služby Serveru Správce osloví Uživatel inzerenta uvedeného v detailu
nemovitosti - Realitní agentura Starlet (IČ 27170934) se zájmem o jeho služby.
Uživatel tyto osobní údaje poskytuje dobrovolně a bere na vědomí, že součástí služeb Správce, které Správce Uživateli poskytuje, je vyhledání všech Uživateli vyhovujících (dle parametrů - cena, typ nemovitosti, lokalita atd.) nemovitostí. Správce za tímto účelem provozuje aplikace Hlídací pes a newsletter. Tyto služby je možné z každého zaslaného emailu odhlásit. Souhlas se zpracováním osobních údajů Uživatel poskytuje Správci na dobu neurčitou s tím, že svůj udělený souhlas může Uživatel kdykoliv na drese správce info@realitymix.cz odvolat. Správce garantuje Uživateli i další práva uvedené v ustanovení §11 a §21 zákoba č. 101/200 Sb. Ve znění pozdějších předpisů.
Více informací o zpracování údajů získáte zde (realitymix.cz/zasady-ochrany-osobnich-udaju)