Pronájem zrekonstruovaného bytu 2+1/L, 69 m2, v žádané lokalitě Praha 6 u metra
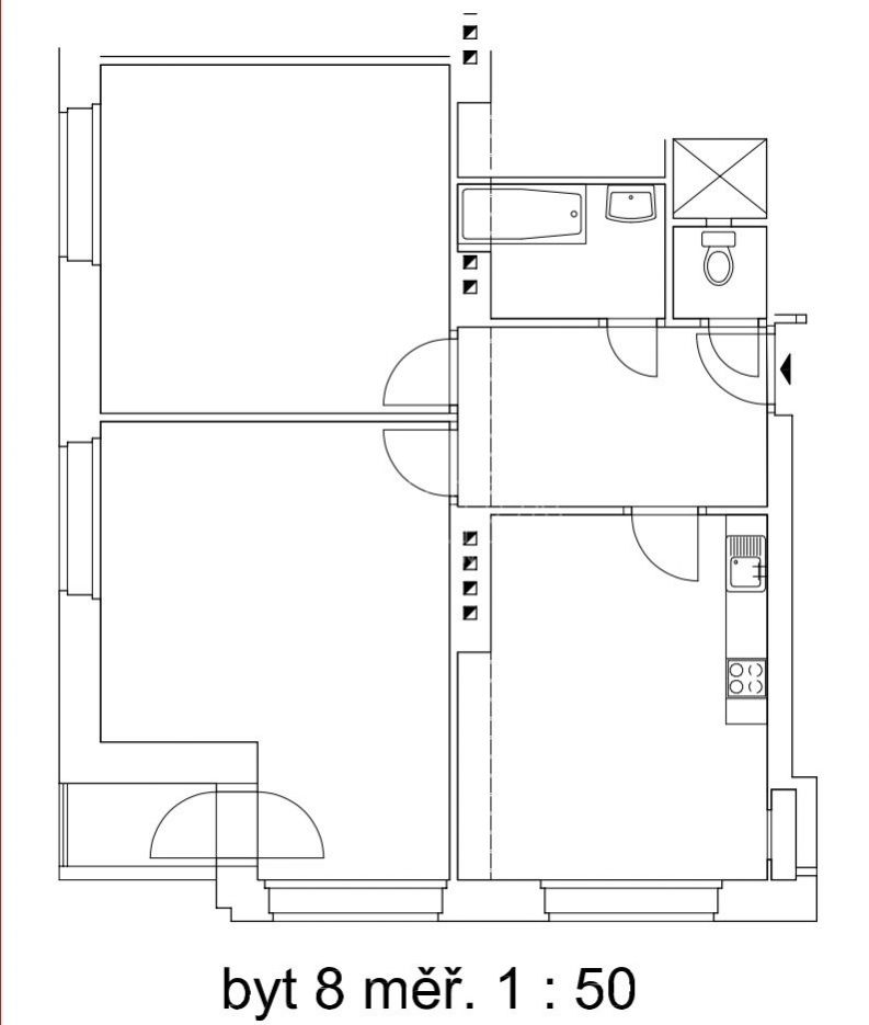
Exkluzivně pronajmeme zrekonstruovaný byt 2+1/L, 69 m2, v 1. patře (2. NP) cihlového činžovního domu nacházející se ve velmi žádané lokalitě Praha 6 - Veleslavínská ulice. Metro A - zastávka Nádraží Veleslavín, tramvaj a autobus, vše pouze 150 m od domu. Klidné prostředí. Veškeré pokoje odděleně (pokoje jsou neprůchozí), vhodné také pro studenty. V bytě se nalézá také nová myčka nádobí v kuchyni. Výhodné připojení k internetu. Vytápění plynové. Podlahové krytiny dřevo a dlažba.
Nájemné 23 000 Kč/měsíc + 500 Kč na osobu zálohy na služby. Energie budou převedeny na nájemce (elektřina a plyn). Kauce a odměna RK ve výši nájemného. Výhodná cena. Možnost užívání společné zahrady. Bez domácích mazlíčků. V okolí veškerá občanská vybavenost - 3 nemocnice (Ústřední vojenská nemocnice, Motol, Homolka) Billa, Kaufland, Lidl, Hornbach, Obi, mateřské školy, základní školy, restaurace, pošta, lékaři, atd.
V okolí mnoho zeleně - Obora Hvězda, Šárka, Ladronka, atd.
Dostupnost do centra Prahy je 10 minut, napojení na městský okruh 5 minut, Letiště Václava Havla 8 minut. Volné ihned.
Cena:
23 000 Kč / (za měsíc)
Poznámka:
+ 500,-/ osoba zálohy na služby, elektřina a plyn se převede na nájemce.
Dispozice/podlahová plocha:
2+1/69 m²
Číslo zakázky:
REALITYMIX-9807/2918
Podrobné informace
Dispozice bytu:2+1
Číslo podlaží v domě:2
Počet podlaží objektu:4
Celková podlahová plocha:69 m²
Druh objektu:cihlová
Stav objektu:po rekonstrukci
Vlastnictví:osobní
Doprava:silnice, MHD, autobus
Energetická náročnost budovy:D - Nevyhovující
Ukazatel energetické náročnosti budovy:144 kWh/m²
Energetický ukazatel podle vyhlášky:č. 148/2007 Sb.
Uživatel serveru RealityMIX.iprima.cz (dále jen „Server“) dostupného na internetové adrese (URL) https://realitymix.iprima.cz, který provozuje společnost DALTEN media s.r.o., se sídlem Na Harfě 916/9a, Praha 9, 190 00, IČO: 271 35 306 (dále jen „Správce“) jako provozovateli tohoto Serveru uděluje svůj výslovný souhlas v souladu s ustanovením § 5 zákona č. 101/2000 Sb. O ochraně osobních údajů a o změně některých zákonů, v platném znění (dále jen „zákon o ochraně osobních údajů“), se zpracováním uživatelem poskytnutých osobních údajů a dalších dat.
Uživatel poskytuje Správci osobní údaje v rozsahu: jméno, příjmení, e-mailová adresa, telefonický kontakt a další data, a to z důvodu projeveného zájmu o nemovitost, kde prostřednictvím služby Serveru Správce osloví Uživatel inzerenta uvedeného v detailu
nemovitosti - QARA s.r.o. (IČ 01740113) se zájmem o jeho služby. Tato společnost je součástí seskupení/sítě/franšízového modelu realitních kanceláří, jejich seznam můžete zobrazit kliknutím na tento odkaz.
QARA s.r.o. Ostrava (IČ 01740113) , QARA s.r.o. Brno (IČ 01740113) , QARA s.r.o. (IČ 01740113)
Uživatel tyto osobní údaje poskytuje dobrovolně a bere na vědomí, že součástí služeb Správce, které Správce Uživateli poskytuje, je vyhledání všech Uživateli vyhovujících (dle parametrů - cena, typ nemovitosti, lokalita atd.) nemovitostí. Správce za tímto účelem provozuje aplikace Hlídací pes a newsletter. Tyto služby je možné z každého zaslaného emailu odhlásit. Souhlas se zpracováním osobních údajů Uživatel poskytuje Správci na dobu neurčitou s tím, že svůj udělený souhlas může Uživatel kdykoliv na drese správce info@realitymix.cz odvolat. Správce garantuje Uživateli i další práva uvedené v ustanovení §11 a §21 zákoba č. 101/200 Sb. Ve znění pozdějších předpisů.
Více informací o zpracování údajů získáte zde (realitymix.cz/zasady-ochrany-osobnich-udaju)