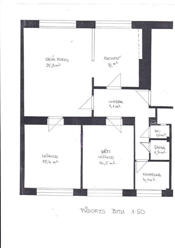
Nabízím pronájem zrekonstruovaného bytu o dispozici 3+kk a výměře 86m2, který se nachází ve 4. nadzemním podlaží udržovaného bytového domu.
V bytě najdete prostornou vstupní halu do "L", odkud se vstupuje do dalších místností. Byt disponuje prostorným obývacím pokojem s otevřenou kuchyní (kombinovaný plynový vařič s troubou, myčka, potravinová skříň, a dřevěná kuchyňská linka - lednici si nájemce zřizuje sám), následují 2 ložnice s orientací do klidné ulice. Následuje koupelna s vanou, umyvadlem a topným žebříkem, a oddělené WC s umyvadlem, dále pak komora s přípojkou na pračku/sušičku.
Zálohové platby činí 7.500,- a elektrická energie (cca 1.000,-) spolu s plynem (cca 300,-) se přepisují na nájemce. Zálohové platby jsou nastaveny pro 5 osob aktuálně.
Byt je k nastěhování ihned. V okolí je veškerá občanská vybavenost (MŠ, ZŠ, lékaři, Nákupní centrum Eden, restaurace, kavárny, MHD, železniční stanice..). Vršovice jsou skvělým místem k bydlení v klidné části plné zeleně s výbornou dostupností do centra Prahy.
Uživatel serveru RealityMIX.iprima.cz (dále jen „Server“) dostupného na internetové adrese (URL) https://realitymix.iprima.cz, který provozuje společnost DALTEN media s.r.o., se sídlem Na Harfě 916/9a, Praha 9, 190 00, IČO: 271 35 306 (dále jen „Správce“) jako provozovateli tohoto Serveru uděluje svůj výslovný souhlas v souladu s ustanovením § 5 zákona č. 101/2000 Sb. O ochraně osobních údajů a o změně některých zákonů, v platném znění (dále jen „zákon o ochraně osobních údajů“), se zpracováním uživatelem poskytnutých osobních údajů a dalších dat.
Uživatel poskytuje Správci osobní údaje v rozsahu: jméno, příjmení, e-mailová adresa, telefonický kontakt a další data, a to z důvodu projeveného zájmu o nemovitost, kde prostřednictvím služby Serveru Správce osloví Uživatel inzerenta uvedeného v detailu
nemovitosti - Private Estate s.r.o. (IČ 48537501) se zájmem o jeho služby.
Uživatel tyto osobní údaje poskytuje dobrovolně a bere na vědomí, že součástí služeb Správce, které Správce Uživateli poskytuje, je vyhledání všech Uživateli vyhovujících (dle parametrů - cena, typ nemovitosti, lokalita atd.) nemovitostí. Správce za tímto účelem provozuje aplikace Hlídací pes a newsletter. Tyto služby je možné z každého zaslaného emailu odhlásit. Souhlas se zpracováním osobních údajů Uživatel poskytuje Správci na dobu neurčitou s tím, že svůj udělený souhlas může Uživatel kdykoliv na drese správce info@realitymix.cz odvolat. Správce garantuje Uživateli i další práva uvedené v ustanovení §11 a §21 zákoba č. 101/200 Sb. Ve znění pozdějších předpisů.
Více informací o zpracování údajů získáte zde (realitymix.cz/zasady-ochrany-osobnich-udaju)