K pronájmu nabízíme rodinný dům v klidné lokalitě Prahy 6 Suchdol. Ideální pro rodinu hledající dlouhodobé a kvalitní bydlení v klidné části Prahy.
Jedná se o stavbu z roku 2015 postavenou v pasivním standardu, která splňuje nároky na úsporné a komfortní bydlení.
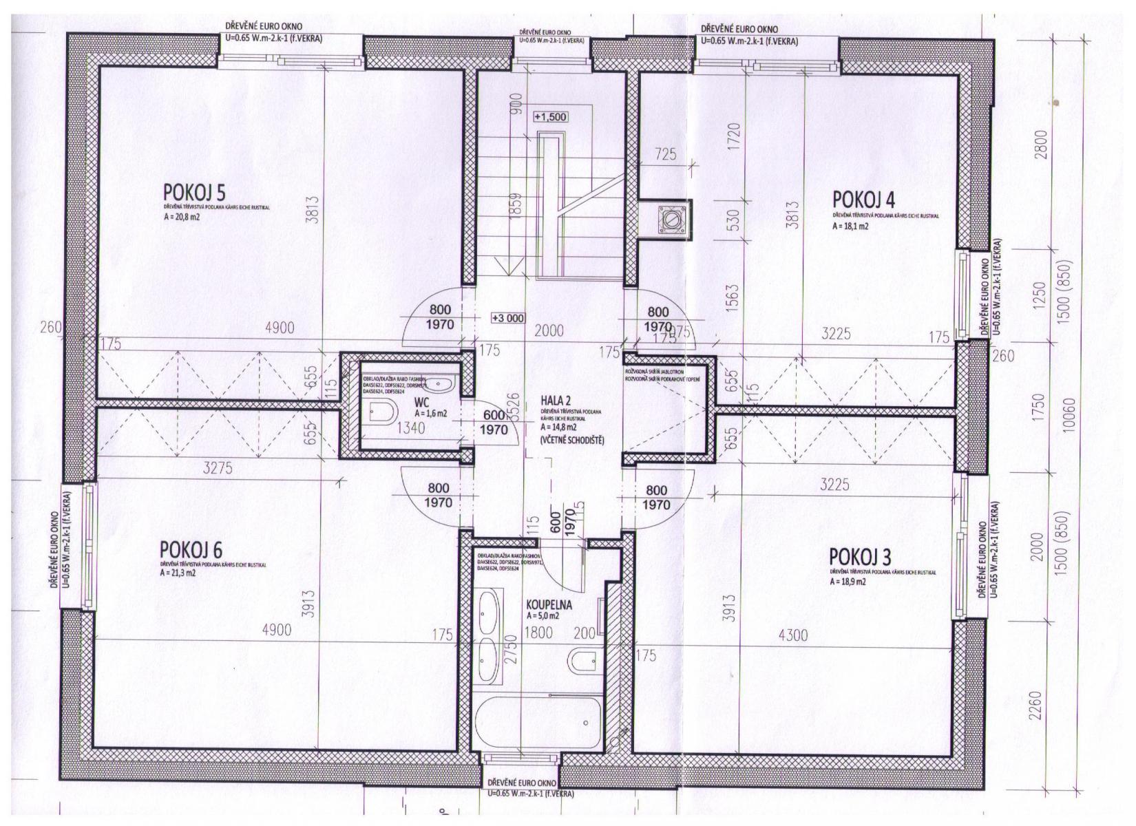
Dispozice:
V přízemí se nachází prostorný obývací pokoj s plně vybavenou kuchyňskou linkou (spotřebiče značky Electrolux), jeden další pokoj, koupelna s toaletou, technická místnost a vstup do garáže (zateplená vrata Hormann). Z obývacího pokoje je přímý vstup na zahradu.
V patře jsou k dispozici čtyři samostatné pokoje (každý s vestavěnými skříněmi), koupelna s vanou, samostatné WC a vstup na půdu s možností dalšího úložného prostoru.
Technické vybavení:
Dřevěná třívrstvá podlaha (Eiche Rustikal)
Dřevěná trojskla s elektricky ovládanými žaluziemi v celém domě
Podlahové vytápění v celém domě
Vytápění a ohřev vody: teplovodní krbová vložka Aquador Styl RS 19, 4 solární panely, zásobník IQ TAT 600
Rekuperační jednotka Atrea Duplex
Zabezpečení Jablotron
Dům se pronajímá bez vybavení, tzn. bez volně stojícího nábytku. Na fotografiích je dům ještě zařízený, ale při předání bude vyklizený. Kuchyňská linka a vestavěný nábytek zůstávají součástí vybavení.
Zálohy na služby činí 3.000Kč měsíčně pro čtyřčlennou domácnost. Elektřina se převádí na nájemníka. Celkové měsíční náklady by neměly přesáhnout 6.000,- Kč.
Občanská vybavenost:
V docházkové vzdálenosti je mateřská škola, základní škola se nachází nedaleko. Lokalita je dobře dostupná autem i MHD - 7 minut pěšky na autobusovou zastávku K Drsnici ze které jste za 20 minut na Dejvické, v blízkosti se nachází také Česká zemědělská univerzita.
Dům je k dispozici ihned. Pro více informací mne neváhejte kontaktovat.
Uživatel serveru RealityMIX.iprima.cz (dále jen „Server“) dostupného na internetové adrese (URL) https://realitymix.iprima.cz, který provozuje společnost DALTEN media s.r.o., se sídlem Na Harfě 916/9a, Praha 9, 190 00, IČO: 271 35 306 (dále jen „Správce“) jako provozovateli tohoto Serveru uděluje svůj výslovný souhlas v souladu s ustanovením § 5 zákona č. 101/2000 Sb. O ochraně osobních údajů a o změně některých zákonů, v platném znění (dále jen „zákon o ochraně osobních údajů“), se zpracováním uživatelem poskytnutých osobních údajů a dalších dat.
Uživatel poskytuje Správci osobní údaje v rozsahu: jméno, příjmení, e-mailová adresa, telefonický kontakt a další data, a to z důvodu projeveného zájmu o nemovitost, kde prostřednictvím služby Serveru Správce osloví Uživatel inzerenta uvedeného v detailu
nemovitosti - Jan Pavlis (IČ 01107798) se zájmem o jeho služby.
Uživatel tyto osobní údaje poskytuje dobrovolně a bere na vědomí, že součástí služeb Správce, které Správce Uživateli poskytuje, je vyhledání všech Uživateli vyhovujících (dle parametrů - cena, typ nemovitosti, lokalita atd.) nemovitostí. Správce za tímto účelem provozuje aplikace Hlídací pes a newsletter. Tyto služby je možné z každého zaslaného emailu odhlásit. Souhlas se zpracováním osobních údajů Uživatel poskytuje Správci na dobu neurčitou s tím, že svůj udělený souhlas může Uživatel kdykoliv na drese správce info@realitymix.cz odvolat. Správce garantuje Uživateli i další práva uvedené v ustanovení §11 a §21 zákoba č. 101/200 Sb. Ve znění pozdějších předpisů.
Více informací o zpracování údajů získáte zde (realitymix.cz/zasady-ochrany-osobnich-udaju)