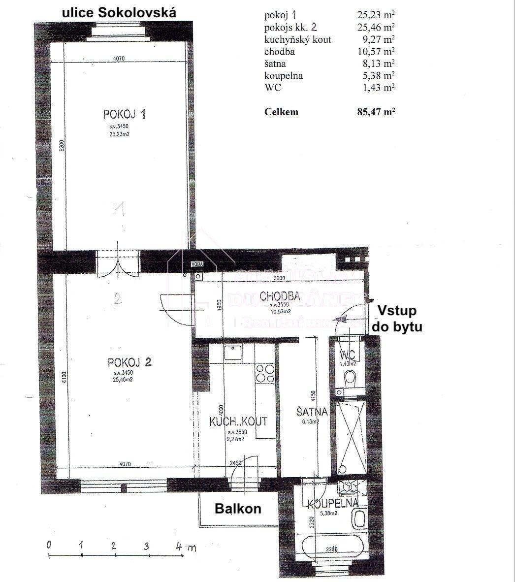
Pronájem prostorného bytu 2+kk, 85 m2 + balkon 2 m2, Praha 8-Karlín, ul. Sokolovská
Ke dlouhodobému pronájmu je Vám k dispozici tento mimořádně prostorný byt 2+kk o ploše 85 m² + balkon 2 m², situovaný v atraktivní lokalitě Praha 8 – Karlín, ulice Sokolovská. Stanice metra Florenc (linky B i C) je vzdálena pouhé 4 minuty chůze.
Byt se nachází ve 4. patře (z celkových 5) udržovaného secesního domu s novým výtahem. Obývací pokoj s kuchyňským koutem a vstupem na balkon je orientován na sever do klidného vnitrobloku, ložnice směřuje na jih do ulice Sokolovská. Interiér je světlý a vzdušný díky velkým dřevěným špaletovým oknům a nadstandardní výšce stropů 3,5 m.
Koupelna je vybavena vanou a velkým oknem se zachovaným soukromím, toaleta je samostatná. Vytápění a ohřev vody zajišťuje vlastní plynový kondenzační kotel. V obytných místnostech jsou na podlahách parkety, v ostatních částech bytu keramická dlažba.
Byt je nabízen jako nezařízený nábytkem (šatní skříň na fotografii dle dohody). Součástí rohové kuchyňské linky je myčka nádobí, elektrická trouba se sklokeramickou varnou deskou, digestoř a lednice s mrazákem.
Pro více informací nebo sjednání prohlídky neváhejte kontaktovat makléře.
Cena:
28 000 Kč / (za měsíc)
Poznámka:
+ domovní služby 1403 Kč/měsíc/osoba + elektřina a plyn převodem
Uživatel serveru RealityMIX.iprima.cz (dále jen „Server“) dostupného na internetové adrese (URL) https://realitymix.iprima.cz, který provozuje společnost DALTEN media s.r.o., se sídlem Na Harfě 916/9a, Praha 9, 190 00, IČO: 271 35 306 (dále jen „Správce“) jako provozovateli tohoto Serveru uděluje svůj výslovný souhlas v souladu s ustanovením § 5 zákona č. 101/2000 Sb. O ochraně osobních údajů a o změně některých zákonů, v platném znění (dále jen „zákon o ochraně osobních údajů“), se zpracováním uživatelem poskytnutých osobních údajů a dalších dat.
Uživatel poskytuje Správci osobní údaje v rozsahu: jméno, příjmení, e-mailová adresa, telefonický kontakt a další data, a to z důvodu projeveného zájmu o nemovitost, kde prostřednictvím služby Serveru Správce osloví Uživatel inzerenta uvedeného v detailu
nemovitosti - Ing. Stanislav Durchánek (IČ 21055921) se zájmem o jeho služby.
Uživatel tyto osobní údaje poskytuje dobrovolně a bere na vědomí, že součástí služeb Správce, které Správce Uživateli poskytuje, je vyhledání všech Uživateli vyhovujících (dle parametrů - cena, typ nemovitosti, lokalita atd.) nemovitostí. Správce za tímto účelem provozuje aplikace Hlídací pes a newsletter. Tyto služby je možné z každého zaslaného emailu odhlásit. Souhlas se zpracováním osobních údajů Uživatel poskytuje Správci na dobu neurčitou s tím, že svůj udělený souhlas může Uživatel kdykoliv na drese správce info@realitymix.cz odvolat. Správce garantuje Uživateli i další práva uvedené v ustanovení §11 a §21 zákoba č. 101/200 Sb. Ve znění pozdějších předpisů.
Více informací o zpracování údajů získáte zde (realitymix.cz/zasady-ochrany-osobnich-udaju)