Pronájem dvoupodlažního domu cca 350 m2 u stanice metra Zličín
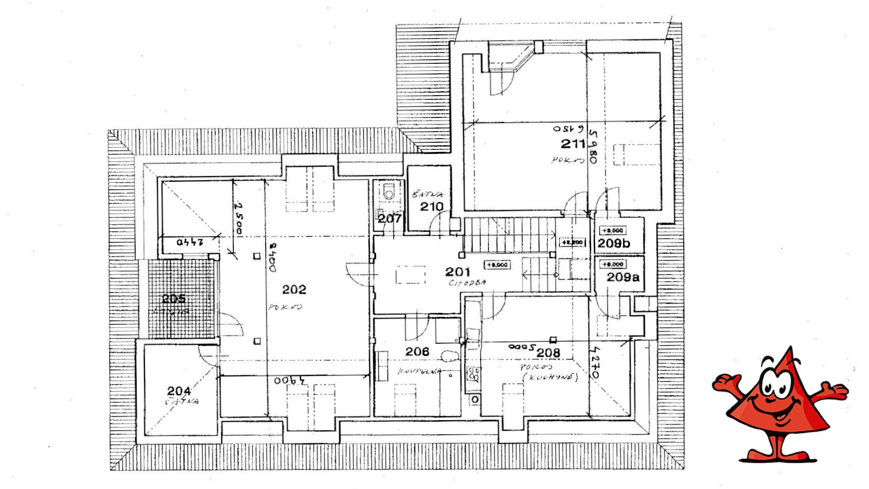
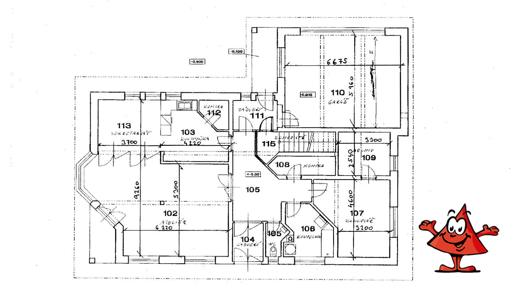
Pronájem prostorného samostatně stojícího dvoupodlažního domu o dispozici 6+kk na ploše cca 350m2, přibližně 350 metrů od stanice metra "B" Zličín. Doposud byl dům pronajat jako sídlo firmy, jednotlivé části sloužily jako kanceláře a skladovací prostory. Může být provozován jako bydlení, bydlení s podnikáním, nebo čistě jako sídlo firmy. Na pozemku je bazén a několik vzrostlých stromů, nezastavěná plocha pozemku je dohromady 834 m2, zastavěná plocha je 219 m2. V garáži je místo pro 2 auta, dalších 5 jich může parkovat na pozemku před domem.
V případě bydlení jsou jednotlivé místnosti členěny: 5 neprůchozích ložnic, 2x koupelna, 4x WC a kuchyně osazená kuchyňskou linkou se spotřebiči (lednice, myčka, sporák). V oknech bezpečnostní rolety, k dispozici počítačová síť, tel. linky a alarm.
Stávající nájemce bude dům užívat do konce listopadu 2025. Nájemné 78.000 Kč měsíčně + voda, elektřina a plyn. Jistota ve výši 100.000 Kč.
Cena:
Rezervováno
Číslo zakázky:
REALITYMIX-NR09670
Podrobné informace
Poloha objektu:samostatný
Druh objektu:cihlová
Stav objektu:velmi dobrý
Počet podlaží objektu:2
Typ domu:patrový
Zastavěná plocha:219 m²
Plocha parcely:834 m²
Užitná plocha:350 m²
Ostatní:Bazén, Garáž, Parkoviště
Umístění objektu:klidná část obce
Energetická náročnost budovy:D - Méně úsporná
Ukazatel energetické náročnosti budovy:150 kWh/m²
Energetický ukazatel podle vyhlášky:č. 78/2013 Sb.
Uživatel serveru RealityMIX.iprima.cz (dále jen „Server“) dostupného na internetové adrese (URL) https://realitymix.iprima.cz, který provozuje společnost DALTEN media s.r.o., se sídlem Na Harfě 916/9a, Praha 9, 190 00, IČO: 271 35 306 (dále jen „Správce“) jako provozovateli tohoto Serveru uděluje svůj výslovný souhlas v souladu s ustanovením § 5 zákona č. 101/2000 Sb. O ochraně osobních údajů a o změně některých zákonů, v platném znění (dále jen „zákon o ochraně osobních údajů“), se zpracováním uživatelem poskytnutých osobních údajů a dalších dat.
Uživatel poskytuje Správci osobní údaje v rozsahu: jméno, příjmení, e-mailová adresa, telefonický kontakt a další data, a to z důvodu projeveného zájmu o nemovitost, kde prostřednictvím služby Serveru Správce osloví Uživatel inzerenta uvedeného v detailu
nemovitosti - TRIO Reality s.r.o. (IČ 26443538) se zájmem o jeho služby.
Uživatel tyto osobní údaje poskytuje dobrovolně a bere na vědomí, že součástí služeb Správce, které Správce Uživateli poskytuje, je vyhledání všech Uživateli vyhovujících (dle parametrů - cena, typ nemovitosti, lokalita atd.) nemovitostí. Správce za tímto účelem provozuje aplikace Hlídací pes a newsletter. Tyto služby je možné z každého zaslaného emailu odhlásit. Souhlas se zpracováním osobních údajů Uživatel poskytuje Správci na dobu neurčitou s tím, že svůj udělený souhlas může Uživatel kdykoliv na drese správce info@realitymix.cz odvolat. Správce garantuje Uživateli i další práva uvedené v ustanovení §11 a §21 zákoba č. 101/200 Sb. Ve znění pozdějších předpisů.
Více informací o zpracování údajů získáte zde (realitymix.cz/zasady-ochrany-osobnich-udaju)