K dlouhodobému podnájmu Vám nabízíme velmi světlý, částečně zařízený byt o dispozici 4+kk, 95m2 s garážovým parkovacím stáním a terasou (11m2). Byt se nachází ve velmi klidné zástavbě rodinných domů, v pražském Dubči.
Byt se nachází ve 3.NP (posledním) cihlového domu. V domě není výtah.
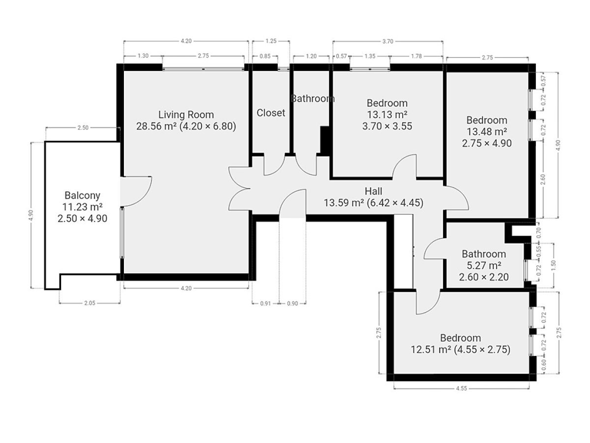
Skládá se ze vstupní chodby zařízené velkou vestavnou šatní skříní, ložnice, dvou dětských pokojů, pracovny, koupelny zařízená vanou, umyvadlem a přípojkou na pračku, nadstandartní komory a obývacího pokoje společného s kuchyňským koutem a vstupem na terasu.
Kuchyně je zařízena všemi spotřebiči - vestavná lednice, myčka, varná deska, trouba a digestoř.
Byt se nabízí vybavený tak, jak vidíte na fotografií.
Přímo u domu vzniká nové dětské hřiště, cca 5 minut chůze se nachází obchod Tesco Expres, základní i mateřská škola. Autobusová zastávka "Dubeček" se spojením na metro Skalka nebo Háje je od domu necelá dvě minuty chůze.
Zálohové platby už obsahují zálohy na elektřinu a pojištění domácnosti.
Byt je k dispozici od 1.12.2025.
Cena:
32 900 Kč / (za měsíc)
Poznámka:
vratná jistota, náklady na bydlení 5.135,-Kč, poplatek za podnájem
Dispozice/podlahová plocha:
4+kk/95 m²
Číslo zakázky:
REALITYMIX-6226
Podrobné informace
Dispozice bytu:4+kk
Číslo podlaží v domě:3
Počet podlaží objektu:3
Celková podlahová plocha:95 m²
Druh objektu:cihlová
Stav objektu:velmi dobrý
Vlastnictví:osobní
Umístění objektu:klidná část obce
Doprava:vlak, dálnice, silnice, MHD, autobus
Občanská vybavenost:Škola, Školka, Zdravotnická zařízení, Pošta, Supermarket, Kompletní síť obchodů a služeb
Uživatel serveru RealityMIX.iprima.cz (dále jen „Server“) dostupného na internetové adrese (URL) https://realitymix.iprima.cz, který provozuje společnost DALTEN media s.r.o., se sídlem Na Harfě 916/9a, Praha 9, 190 00, IČO: 271 35 306 (dále jen „Správce“) jako provozovateli tohoto Serveru uděluje svůj výslovný souhlas v souladu s ustanovením § 5 zákona č. 101/2000 Sb. O ochraně osobních údajů a o změně některých zákonů, v platném znění (dále jen „zákon o ochraně osobních údajů“), se zpracováním uživatelem poskytnutých osobních údajů a dalších dat.
Uživatel poskytuje Správci osobní údaje v rozsahu: jméno, příjmení, e-mailová adresa, telefonický kontakt a další data, a to z důvodu projeveného zájmu o nemovitost, kde prostřednictvím služby Serveru Správce osloví Uživatel inzerenta uvedeného v detailu
nemovitosti - Ideální nájemce (IČ 29300631) se zájmem o jeho služby.
Uživatel tyto osobní údaje poskytuje dobrovolně a bere na vědomí, že součástí služeb Správce, které Správce Uživateli poskytuje, je vyhledání všech Uživateli vyhovujících (dle parametrů - cena, typ nemovitosti, lokalita atd.) nemovitostí. Správce za tímto účelem provozuje aplikace Hlídací pes a newsletter. Tyto služby je možné z každého zaslaného emailu odhlásit. Souhlas se zpracováním osobních údajů Uživatel poskytuje Správci na dobu neurčitou s tím, že svůj udělený souhlas může Uživatel kdykoliv na drese správce info@realitymix.cz odvolat. Správce garantuje Uživateli i další práva uvedené v ustanovení §11 a §21 zákoba č. 101/200 Sb. Ve znění pozdějších předpisů.
Více informací o zpracování údajů získáte zde (realitymix.cz/zasady-ochrany-osobnich-udaju)