Pronájem bytu 4+kk 114 m², Praha - Dolní Měcholupy
Volné od 1.5.2026
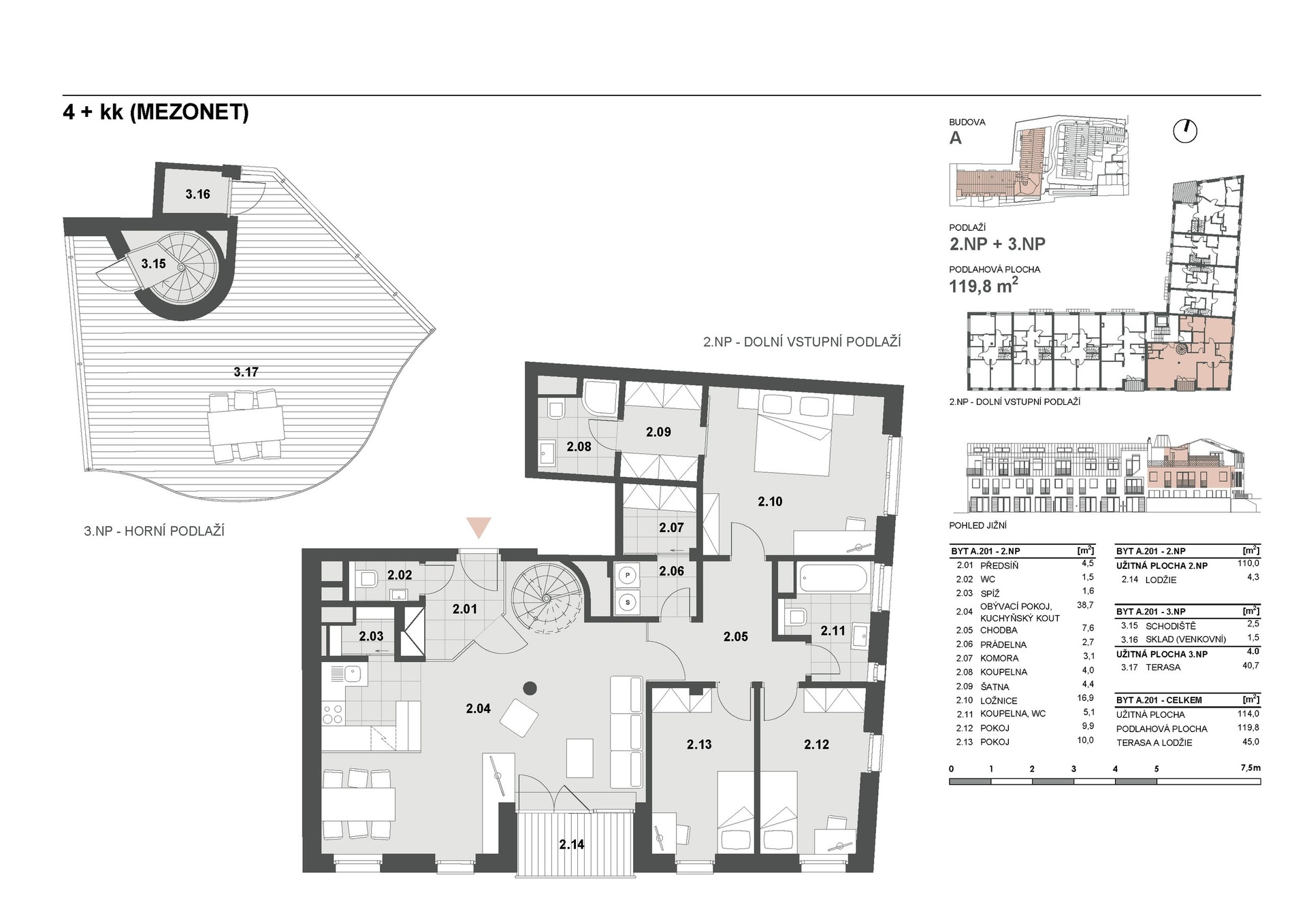
Nabízíme k pronájmu prostorný byt o dispozici 4+kk v novostavbě z roku 2022 v ulici Na Návsi v Dolních Měcholupech. Byt má užitnou plochu 114 m2 + lodžie 4,3 m2 + terasa 40,7 m2. K bytu náleží dvě garážová stání v suterénu objektu. Celý byt je vybaven klimatizací.
Byt disponuje obývacím pokojem propojeným s kuchyní. Ta je vybavenou kuchyňskou linkou, na kterou navazuje spižírna a sklad na přístroje. Z obývacího pokoje je přístupná lodžie a po točitých schodech také terasa na střeše bytu. Na terase se nachází komora pro skladování věcí z terasy. Na obývací pokoj navazuje chodba k ložnicím. Dvě menší vhodné jako dětské pokoje nebo pracovna a jedna hlavní ložnice s šatnou a vlastní koupelnou vybavenou sprchovým koutem a toaletou. K dispozici je dále společná koupelna s vanou a toaletou, dále prádelna s pračkou a sušičkou a komora s druhou lednicí. U vstupu se pak nachází prosklená předsíň, na kterou navazuje samostatná toaleta. Vně bytu na společné chodbě se pak nachází sklep. K dispozici je i společná kolárna.
Dům je situován na klidném místě. V těsné blízkosti se nachází restaurace, park, škola, školka, autobusová zastávka. V docházkové vzdálenosti je zastávka vlaku. Nedaleko se pak nachází OC Štěrboholy, Fashion Arena, Galerie Golf Hostivař, lesopark Hostivař s přehradou.
Ne domácí mazlíčci.
Nájemné 39.000,-Kč + poplatky 8.500,-Kč. Elektřina bude přepsána na nájemce. Kauce 78.000,-Kč, provize RK 39.000,-Kč.
Cena:
39 000 Kč / (za měsíc)
Datum k nastěhování:
01.05.2026
Dispozice/podlahová plocha:
4+kk/114 m²
Číslo zakázky:
REALITYMIX-01310
Podrobné informace
Dispozice bytu:4+kk
Číslo podlaží v domě:2
Počet podlaží objektu:1
Celková podlahová plocha:114 m²
Druh objektu:cihlová
Stav objektu:velmi dobrý
Vlastnictví:osobní
Lodžie:4 m²
Terasa:40 m²
Topení:Jiné
Energetická náročnost budovy:B - Velmi úsporná
Ukazatel energetické náročnosti budovy:75 kWh/m²
Energetický ukazatel podle vyhlášky:č. 78/2013 Sb.
Uživatel serveru RealityMIX.iprima.cz (dále jen „Server“) dostupného na internetové adrese (URL) https://realitymix.iprima.cz, který provozuje společnost DALTEN media s.r.o., se sídlem Na Harfě 916/9a, Praha 9, 190 00, IČO: 271 35 306 (dále jen „Správce“) jako provozovateli tohoto Serveru uděluje svůj výslovný souhlas v souladu s ustanovením § 5 zákona č. 101/2000 Sb. O ochraně osobních údajů a o změně některých zákonů, v platném znění (dále jen „zákon o ochraně osobních údajů“), se zpracováním uživatelem poskytnutých osobních údajů a dalších dat.
Uživatel poskytuje Správci osobní údaje v rozsahu: jméno, příjmení, e-mailová adresa, telefonický kontakt a další data, a to z důvodu projeveného zájmu o nemovitost, kde prostřednictvím služby Serveru Správce osloví Uživatel inzerenta uvedeného v detailu
nemovitosti - RSQ CZ s.r.o. (IČ 07836619) se zájmem o jeho služby.
Uživatel tyto osobní údaje poskytuje dobrovolně a bere na vědomí, že součástí služeb Správce, které Správce Uživateli poskytuje, je vyhledání všech Uživateli vyhovujících (dle parametrů - cena, typ nemovitosti, lokalita atd.) nemovitostí. Správce za tímto účelem provozuje aplikace Hlídací pes a newsletter. Tyto služby je možné z každého zaslaného emailu odhlásit. Souhlas se zpracováním osobních údajů Uživatel poskytuje Správci na dobu neurčitou s tím, že svůj udělený souhlas může Uživatel kdykoliv na drese správce info@realitymix.cz odvolat. Správce garantuje Uživateli i další práva uvedené v ustanovení §11 a §21 zákoba č. 101/200 Sb. Ve znění pozdějších předpisů.
Více informací o zpracování údajů získáte zde (realitymix.cz/zasady-ochrany-osobnich-udaju)