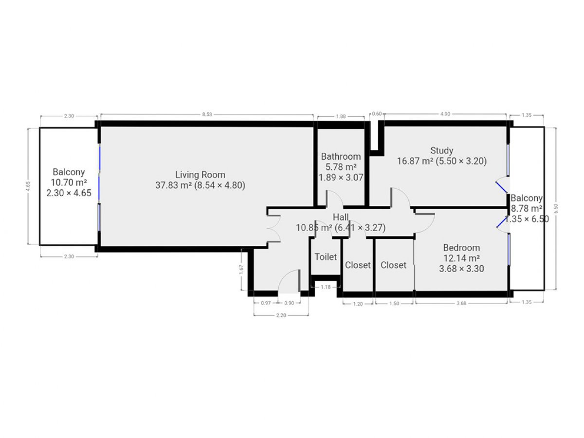
K dlouhodobému podnájmu nabízíme velmi pěkný byt o dispozici 3+kk v oblíbené lokalitě Praha - Holešovice. Byt o podlahové ploše 97 m2 a celkové výměře 117 m2 se nachází ve třetím patře cihlového domu s výtahem. K bytu patří dva prostorné balkony o výměře 9 m2 a 11 m2 zařízené posezením, taktéž sklep, což je samostatná zděná místnost, hned u parkovacího stání ve druhém patře podzemní garáže , kde se garážová vrata otevírají kamerovým systémem . Velkou výhodou bytu jsou venkovní elektrické žaluzie a vytápění podlahovými konvektory v obývacím pokoji a podlahové vytápění v koupelně.
Byt se nabízí plně vybaven. Podsvícená a moderní kuchyně na míru disponuje americkou lednicí s výrobníkem ledu, myčkou, elektrickou troubou, mikrovlnou troubou, indukční varná deskou, digestoří a jídelním stolem s židlemi. Prostorná obývací část je zařízená luxusní sedací soupravou, konferenčním stolkem , obývací stěnou a TV. V ložnici najdeme velkou šatní skříň, noční stolky, TV, police a šatní místnost. Druhý pokoj disponuje velkou šatní skříní se zrcadlem, policemi, sedačkou, pracovním stolem s židlí.
V první koupelně najdeme vanu, umyvadlo, toaletní skříňku, toaletu a sprchový kout. Ve druhé koupelně je toaleta, toaletní skříňka a umyvadlo. V komoře je pračka a police.
Prosvětlená předsíň bytu je vybavena taktéž vestavěnou skříní.
V okolí domu najdeme restaurace, kavárny, Kaufland, Fakultní nemocnice Bulovka, nábřeží řeky Vltavy a Thomayerovy sady. Dopravní dostupnost je zajištěna zastávkou Maniny, jen 3 minuty chůze od domu.
Byt je volný k nastěhování od 1. 4. 2026. Preferováni jsou zájemci bez domácích mazlíčků.
Byt pronajímá Ideální nájemce - služba, se kterou budete bydlet bezstarostně a za férových podmínek. Když se něco přihodí, k dispozici jsou správci, kteří s vámi vše vyřeší. Pomůžeme s veškerou administrativou, s nastavením plateb a zajistíme vám speciální pojištění. Pojďte bydlet s námi!
Cena:
39 900 Kč / (za měsíc)
Poznámka:
vratná jistota, náklady na bydlení 6724 Kč, poplatek za podnájem
Uživatel serveru RealityMIX.iprima.cz (dále jen „Server“) dostupného na internetové adrese (URL) https://realitymix.iprima.cz, který provozuje společnost DALTEN media s.r.o., se sídlem Na Harfě 916/9a, Praha 9, 190 00, IČO: 271 35 306 (dále jen „Správce“) jako provozovateli tohoto Serveru uděluje svůj výslovný souhlas v souladu s ustanovením § 5 zákona č. 101/2000 Sb. O ochraně osobních údajů a o změně některých zákonů, v platném znění (dále jen „zákon o ochraně osobních údajů“), se zpracováním uživatelem poskytnutých osobních údajů a dalších dat.
Uživatel poskytuje Správci osobní údaje v rozsahu: jméno, příjmení, e-mailová adresa, telefonický kontakt a další data, a to z důvodu projeveného zájmu o nemovitost, kde prostřednictvím služby Serveru Správce osloví Uživatel inzerenta uvedeného v detailu
nemovitosti - Ideální nájemce (IČ 29300631) se zájmem o jeho služby.
Uživatel tyto osobní údaje poskytuje dobrovolně a bere na vědomí, že součástí služeb Správce, které Správce Uživateli poskytuje, je vyhledání všech Uživateli vyhovujících (dle parametrů - cena, typ nemovitosti, lokalita atd.) nemovitostí. Správce za tímto účelem provozuje aplikace Hlídací pes a newsletter. Tyto služby je možné z každého zaslaného emailu odhlásit. Souhlas se zpracováním osobních údajů Uživatel poskytuje Správci na dobu neurčitou s tím, že svůj udělený souhlas může Uživatel kdykoliv na drese správce info@realitymix.cz odvolat. Správce garantuje Uživateli i další práva uvedené v ustanovení §11 a §21 zákoba č. 101/200 Sb. Ve znění pozdějších předpisů.
Více informací o zpracování údajů získáte zde (realitymix.cz/zasady-ochrany-osobnich-udaju)