Pronájem bytu 3+kk, Pastevců, Újezd u Průhonic, 68 m2
K dlouhodobému podnájmu Vám nabízíme krásný, kompletně zařízený byt o dispozici 3+kk, 68m2 se sklepem a balkonem.
Byt se nachází ve 3. NP cihlového domu ve velmi klidné lokalitě rezidenční čtvrti, nedaleko pražského Chodova.
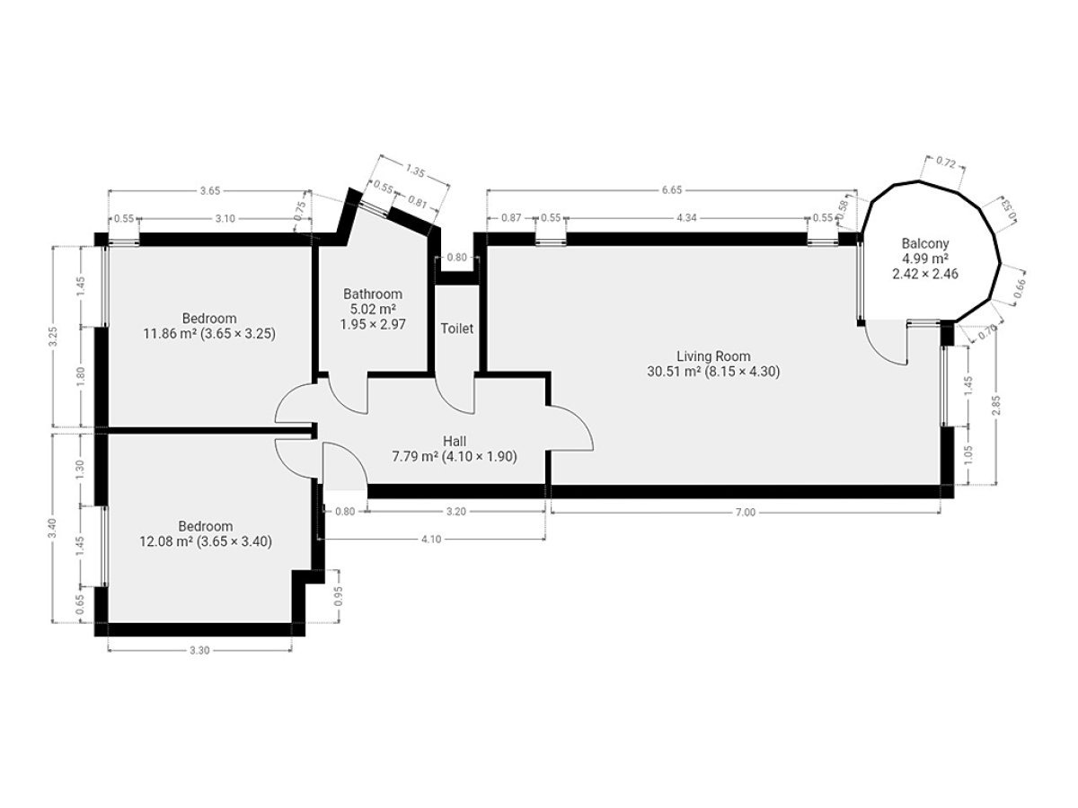
Skládá se z centrální vstupní chodby, dětského pokoje, ložnice, samostatné koupelny s vanou i sprchovým koutem, pračkou a umyvadlem, toalety a obývacího pokoje společného s kuchyňským koutem a vstupem na prostorný balkon. Velkou výhodou bytu jsou jeho úložné prostory v celkem 2 vestavné šatní skříně a sklep.
Dále se byt nabízí kompletně zařízený tak, jak vidíte na fotografií.
Dům se nachází v klidné části Prahy - lokalita Újezd u Průhonic. V širším okolí najdeme kompletní občanskou vybavenost - základní i mateřské školy, spojení MHD na Chodov nebo Opatov díky autobusové zastávce vzdálené od domu cca 3 minuty chůze. Pro sportovní nebo turistické vyžití můžete využít nedaleký Milíčkovský les. Od domu je výborné napojení na dálnici D1.
Byt je k dispozici k okamžitému, dlouhodobému bydlení.
Zálohové platby již obsahují zálohy na elektřinu a pojištění domácnosti.
Cena:
26 900 Kč / (za měsíc)
Poznámka:
vratná jistota, náklady na bydlení 6.000,-Kč vč. elektřiny, poplatek za podnájem
Dispozice/podlahová plocha:
3+kk/68 m²
Číslo zakázky:
REALITYMIX-7472
Podrobné informace
Dispozice bytu:3+kk
Číslo podlaží v domě:3
Počet podlaží objektu:3
Celková podlahová plocha:68 m²
Druh objektu:cihlová
Stav objektu:velmi dobrý
Vlastnictví:osobní
Vybaveno:ano
Doprava:vlak, dálnice, silnice, MHD, autobus
Občanská vybavenost:Škola, Školka, Zdravotnická zařízení, Pošta, Supermarket, Kompletní síť obchodů a služeb
Uživatel serveru RealityMIX.iprima.cz (dále jen „Server“) dostupného na internetové adrese (URL) https://realitymix.iprima.cz, který provozuje společnost DALTEN media s.r.o., se sídlem Na Harfě 916/9a, Praha 9, 190 00, IČO: 271 35 306 (dále jen „Správce“) jako provozovateli tohoto Serveru uděluje svůj výslovný souhlas v souladu s ustanovením § 5 zákona č. 101/2000 Sb. O ochraně osobních údajů a o změně některých zákonů, v platném znění (dále jen „zákon o ochraně osobních údajů“), se zpracováním uživatelem poskytnutých osobních údajů a dalších dat.
Uživatel poskytuje Správci osobní údaje v rozsahu: jméno, příjmení, e-mailová adresa, telefonický kontakt a další data, a to z důvodu projeveného zájmu o nemovitost, kde prostřednictvím služby Serveru Správce osloví Uživatel inzerenta uvedeného v detailu
nemovitosti - Ideální nájemce (IČ 29300631) se zájmem o jeho služby.
Uživatel tyto osobní údaje poskytuje dobrovolně a bere na vědomí, že součástí služeb Správce, které Správce Uživateli poskytuje, je vyhledání všech Uživateli vyhovujících (dle parametrů - cena, typ nemovitosti, lokalita atd.) nemovitostí. Správce za tímto účelem provozuje aplikace Hlídací pes a newsletter. Tyto služby je možné z každého zaslaného emailu odhlásit. Souhlas se zpracováním osobních údajů Uživatel poskytuje Správci na dobu neurčitou s tím, že svůj udělený souhlas může Uživatel kdykoliv na drese správce info@realitymix.cz odvolat. Správce garantuje Uživateli i další práva uvedené v ustanovení §11 a §21 zákoba č. 101/200 Sb. Ve znění pozdějších předpisů.
Více informací o zpracování údajů získáte zde (realitymix.cz/zasady-ochrany-osobnich-udaju)